Россия, Москва, Учетный № 52 (поселение Щаповское) кв-л, 2с1
179 999 999 Р 2 366 800 $ или 2 008 400

Информация о коттедже

1452 м2
Площадь
3
Этажность
3 cоток
Участок

Дополнительная информация

Дом продаётся вместе с участком
есть
Развернуть
Агент
+7 (985) 325-86-13
Начать чат с агентом

Дом в Москва Учетный № 52 (поселение Щаповское) кв-л, 2с1 (1452 м)

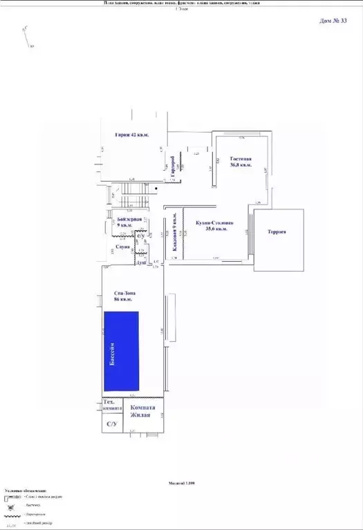
Id 386688. Уникальная усадьба Дом рыбака в Краснопахорском районе в живописном месте в окружении озер Представляем эксклюзивную вoзможность приобрести масштабное здание с собственным водоемом и развитой инфраструктурой. Этот дом не просто объект недвижимости, а готовое дело для частного отеля, медицинского центра реабилитации или косметологии,центра поддержания здоровья и жизни пожилых людей, эко-фермы или крупного семейного гнезда для жизни нескольких поколений. Капитальное кирпичное здание 1980 года постройки, капитально отремонтированное перестроенное в 2007г. возведенное на участке в 3 гектара, что гарантирует полную приватность и независимость.Трехэтажный особняк общей площадью 1452 м предлагает безграничные возможности для планировки. Здесь 9 спален, что идеально подходит для организации гостевого дома или большого семейного клана. Дизайнерский ремонт, полноценная меблировка и современная техническая начинка включают кондиционирование, автономное газовое отопление, все центральные коммуникации и систему безопасности. Вы сможете заселиться сразу после сделки, не вкладываясь в отделку и обустройство.Главной ценностью является уникальная инфраструктура участка. В вашем распоряжении собственная баня, гараж, бассейн и, что ключевое, выход к воде для истинных ценителей рыбалки и спокойного отдыха на природе. При этом вы не изолированы от города: всего 29 км по Киевскому шоссе и 14-16 минут на транспорте до станций метро позволяют легко добираться до центра Москвы.Это предложение для тех, кто ищет не стандартную загородную резиденцию, а готовый бизнес-актив или родовое гнездо с безупречной инфраструктурой. Цена обсуждается непосредственно с собственником. Свяжитесь с нами прямо сейчас, чтобы организовать приватный просмотр этого уникального поместья и обсудить все детали будущей сделки.Адрес объекта отсутствует на Яндекс картах, поэтому указан ближайший. Точный адрес: г. Москва, муниципальный округ Краснопахорский, квартал 52, дом 2, строение 1.

Читать полностью

    Для того, чтобы купить 3-этажный коттедж по адресу: Учетный № 52 (поселение Щаповское) кв-л, 2с1, позвоните по телефону +7 (985) 325-86-13. Торопитесь! Объявление №50016536220 о продаже трехэтажного коттеджа опубликовано Вчера.

    Позвонить Написать
    179 999 999 Р2 366 800 $ или 2 008 400
    Агент
    +7 (985) 325-86-13
    Начать чат с агентом
    Похожие предложения
    Продается дом в КП Изумрудная Долина - Фото 1
    Продается дом в КП Изумрудная Долина - Фото 2
    общая площадь 1238м², участок 40 соток

    ID 5857 В продаже коттедж 1238 кв.м в КП Изумрудная Долина в 26 км от МКАД по Калужскому шоссе Дом с чистовой отделкой и ремонтом, со всеми видами досуга: каминный зал, бильярдная комната, кинозал, дискозал, тренажерный зал, SPA-зона: бассейн с выходом...
    • 1 238 м²
    • 40 сот.
    175 000 000 Р
    Агент
    +7 (495) Показать номер
    Посмотреть контакты
    Дом в Москва № 35 кв-л,  (462 м) - Фото 1
    Дом в Москва № 35 кв-л,  (462 м) - Фото 2
    2 этажа, общая площадь 462м², участок 9 соток

    ID-10211Красивый большой дом 462 м2, продуманный до мелочей как внутри, так и снаружи. Располагается в окружении леса, на участке 10 соток.Ключевые особенности:Архитектура: плоская кровля, фасад из эксклюзивного ригельного кирпича с 3D-кладкой.Простор...
    • 2 эт.
    • 462 м²
    • 9 сот.
    180 000 000 Р
    Агент
    +7 (923) Показать номер
    Посмотреть контакты
    Дом в Москва Крекшино кп,  (353 м) - Фото 1
    Дом в Москва Крекшино кп,  (353 м) - Фото 2
    2 этажа, общая площадь 352м², участок 14 соток

    ID: 564890Продается дом 352,54 кв.м. на участке 14,32 сотки в КП Крекшино. 22 км от МКАД по Минскому или Киевскому шоссе. Рядом выезд на платную скоростную дорогу.Планировка:1 этаж: холл, гардеробная, кабинет/спальня, кухня-столовая-гостиная с камином...
    • 2 эт.
    • 352 м²
    • 14 сот.
    175 000 000 Р
    Агент
    +7 (985) Показать номер
    Посмотреть контакты
    Коттедж в Москва Крекшино кп, ул. Клубничная, 39 (352 м) - Фото 1
    Коттедж в Москва Крекшино кп, ул. Клубничная, 39 (352 м) - Фото 2
    2 этажа, общая площадь 352м², участок 14 соток

    КП Крекшино ул. Клубничная дом 76 Современный коттедж 352,5 кв. м. с отделкой на участке 14,5 соток в коттеджном поселке премиум-класса Крекшино , в 23 км от МКАД по Киевскому или Минскому шоссе, д. Крекшино. Москва.Ключевые особенности: ремонт в современном...
    • 2 эт.
    • 352 м²
    • 14 сот.
    175 000 000 Р
    Агент
    +7 (985) Показать номер
    Посмотреть контакты
    Дом в Москва д. Милюково, ул. Чистые Ключи, 33 (538 м) - Фото 1
    Дом в Москва д. Милюково, ул. Чистые Ключи, 33 (538 м) - Фото 2
    2 этажа, общая площадь 538м², участок 15 соток

    Арт.. СОВРЕМЕННЫЙ КИРПИЧНЫЙ КОТТЕДЖ С БАССЕЙНОМ и 4 СПАЛЬНЯМИ в КП Чистые Ключи Ваш идеальный семейный дом с бассейном: готов к жизни уже сегодняПродается просторный дом площадью 538 м на участке 15 соток. Внутри — абсолютно новый дизайнерский ремонт...
    • 2 эт.
    • 538 м²
    • 15 сот.
    183 500 000 Р
    Агент
    +7 (985) Показать номер
    Посмотреть контакты

    Не нашли подходящего объявления?

    Оставьте заявку, и наши риэлторы подберут купить дом в районе Москвы

    (0)