Россия, Москва, Европейская долина-2 ДНП, пер. 3-й Двинский, 9
11 990 000 Р 154 300 $ или 131 500

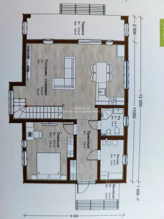
Информация о коттедже

113 м2
Площадь
1
Этажность
4 cоток
Участок

Дополнительная информация

Дом продаётся вместе с участком
есть
Развернуть
Агент
+7 (915) 418-72-86
Начать чат с агентом

Дом в Москва Европейская долина-2 ДНП, пер. 3-й Двинский, 9 (113 м)

НОВЫЙ ДОМ С МОСКОВСКОЙ ПРОПИСКОЙ ПОДХОДИТ ПОД СЕМЕЙНУЮ ИПОТЕКУ Отличная планировка:Просторная кухня-гостиная с выходом на террасу 3 комнаты - одна из них мастер-спальня с собственным санузлом и выходом на террасув доме 2 санузлабойлернаяМатериалы строительства:- фундамент свайный ж/б- фасады дома с отделкой под клинкерный кирпич- энергоэффективный теплый дом по индивидуальному проекту- утепление каменной ватой- кровля фальцевая серая матовая с водостоками и снегозадержателями;- стеклопакеты с энергоэффективными стеклами, профиль VEKA SL70 мм;- входная стальная дверь с остеклением и утеплением (терморазрыв);- отопление водяные теплые полы (по всей площади дома);- благоустройство участка (газоны);- забор по всему периметру участка;- пароизоляция премиум класса Finka Premium Plus- проклейка швов пароизоляции Finka (Made in Germany)- водоснабжение(скважина)- электричество 15 кВт,- канализация (септик)Прекрасная транспортная доступность:- 35 мин до метро Прокшино ;- Калужское и Варшавское направление;- 23 км по Калужскому шоссе до Мкад;- доступная инфраструктура района Щапово и Троицка, в 5 минутах езды ВкусВилл, С/маркет ДА ,в тч школа-сад 2075,школа Ника, парк-усадьба Щапово, конный клуб;- метро Прокшино, Теплый стан;- метро Троицк, открытие в 2027-28 г;- рядом ж/д станция Подольск;- автобусная остановка в шаговой доступности Дом прошел проверку аэродверью Очень теплый Качественный дом из премиум материалов Стоимость указана за комплектацию white boxЗаписывайтесь на просмотр, обсудим Ваши пожелания по внутренней отделке при встр Код пользователя: 170305Номер в базе:

Читать полностью

    Для того, чтобы купить 1-этажный коттедж по адресу: Европейская долина-2 ДНП, пер. 3-й Двинский, 9, позвоните по телефону +7 (915) 418-72-86. Торопитесь! Объявление №50016505271 о продаже одноэтажного коттеджа опубликовано 2 дня назад.

    Позвонить Написать
    11 990 000 Р154 300 $ или 131 500
    Агент
    +7 (915) 418-72-86
    Начать чат с агентом
    Похожие предложения
    Продается дом в пос. Щапово - Фото 1
    Продается дом в пос. Щапово - Фото 2
    общая площадь 228м², участок 11 соток

    Продается жилой дом в Новой Москве (московская прописка) для большой семьи. Дом полностью готов к эксплуатации. Можно заехать и жить. 4 жилых комнаты с большой гостиной, кухней и верандой. Подходит, как для круглогодичного проживания, так и для дачного...
    • 228 м²
    • 11 сот.
    12 900 000 Р
    Агент
    +7 (964) Показать номер
    Посмотреть контакты
    Продается дом в пос. Некрасовка - Фото 1
    Продается дом в пос. Некрасовка - Фото 2
    общая площадь 50м², участок 5 соток

    ЖИЛОЙ Дом с Участком ИЖС в Москве (ПМЖ/прописка - г. Москва). Метро Некрасовка в 10 минутах ходьбы, асфальт (идеальный подъезд), в 3 км до МКАД. Дом новый 58 кв.м. (с сараем) с отделкой (2012 г/п), с крыльцом/ с мансардным этажом /брус-150, утепл....
    • 50 м²
    • 5 сот.
    12 700 000 Р
    Агент
    +7 (926) Показать номер
    Посмотреть контакты
    Дом в Москва Овощевод СНТ, 26с2 (82 м) - Фото 1
    Дом в Москва Овощевод СНТ, 26с2 (82 м) - Фото 2
    2 этажа, общая площадь 82м², участок 7 соток

    Арт.В живописном месте Новой Москвы в деревне Бурцево продается дом-баня 82 кв м на участке 7 соток.Дом подходит для постоянного проживания. На первом этаже расположена кухня-гостиная, баня, санузел. На втором этаже спальня с балконом. Электричество,...
    • 2 эт.
    • 82 м²
    • 7 сот.
    11 000 000 Р
    Агент
    +7 (923) Показать номер
    Посмотреть контакты
    Дом в Москва № 109 кв-л,  (181 м) - Фото 1
    Дом в Москва № 109 кв-л,  (181 м) - Фото 2
    1 этаж, общая площадь 181м², участок 5 соток

    Арт.Продаётся дом.Этот стильный, уютный и функциональный дом, с тщательно продуманной планировкой, может стать вашим Дом новый, идёт окончательная отделка и подключение коммуникаций.Совершенно бесплатно для всех, кто обратится в нашу компанию:-организуем...
    • 1 эт.
    • 181 м²
    • 5 сот.
    11 990 000 Р
    Агент
    +7 (985) Показать номер
    Посмотреть контакты
    Дом в Москва д. Косовка,  (160 м) - Фото 1
    Дом в Москва д. Косовка,  (160 м) - Фото 2
    2 этажа, общая площадь 160м², участок 5 соток

    Арт.Продаётся дом.Этот стильный, уютный и функциональный дом, с тщательно продуманной планировкой, может стать вашим Дом новый, идёт окончательная отделка и подключение коммуникаций.Совершенно бесплатно для всех, кто обратится в нашу компанию:-организуем...
    • 2 эт.
    • 160 м²
    • 5 сот.
    11 990 000 Р
    Агент
    +7 (985) Показать номер
    Посмотреть контакты

    Не нашли подходящего объявления?

    Оставьте заявку, и наши риэлторы подберут купить дом в районе Москвы

    (0)