Россия, Москва, Монреаль кп
28 500 000 Р 363 300 $ или 308 200

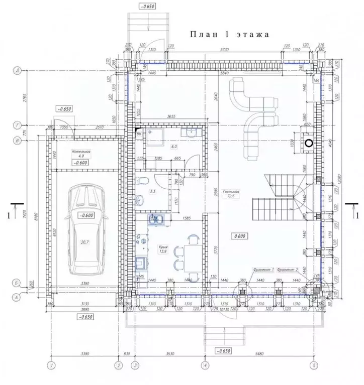
Информация о коттедже

220 м2
Площадь
2
Этажность
8 cоток
Участок

Дополнительная информация

Дом продаётся вместе с участком
есть
Развернуть
Агент
+7 (910) 084-10-63
Начать чат с агентом

Коттедж в Москва Монреаль кп, (220 м)

Готовый коттедж 220 кв.м. на участке 8 сот в жилом поселке бизнес-класса Монреаль . Построен из материалов высокого качества: монолитный фундамент; внешние стены - термоэффективный керамический блок, фасад выполнен из облицовочного кирпича Браер (Баварская кладка) с элементами штукатурки и декора; перегородки кирпич, крыша мягкая кровля, ламинированные стеклопакеты Rehau; залита монолитная лестница; установлена входная дверь с терморазрывом; высота потолков 1-го и 2-го этажа 3.5 м.; залита монолитная дорожка к дому . Коттедж подключен к центральным коммуникациям (газопровод, электроснабжение 15 кВт, водоснабжение, водоотведение, высокоскоростной интернет). Построен забор в едином стиле с калиткой и откатными воротами.В поселке: асфальтированные дороги с бордюрным камнем; тротуары, вымощенные брусчаткой; современная ливневая канализация; подземное электричество; видеонаблюдение; освещение улиц; охрана, пропускной режим; детская и спортивная площадки; прогулочная зона, а также детский сад на территории поселка. КП Монреаль это современный поселок на 135 домовладений с единой архитектурной концепцией, с двух сторон прилегает к лесу.В шаговой доступности: магазины, загородный клуб Лачи , конно-спортивный клуб, спортивный комплекс. Школа в 5 км от посёлка (ходит школьный автобус).ИЖС. Прописка г. Москва. Продажа от застройщика Ипотека

Читать полностью

    Для того, чтобы купить 2-этажный коттедж по адресу: м. Троицк, Монреаль кп, позвоните по телефону +7 (910) 084-10-63. Торопитесь! Объявление №50016503404 о продаже двухэтажного коттеджа опубликовано Вчера.

    Позвонить Написать
    28 500 000 Р363 300 $ или 308 200
    Агент
    +7 (910) 084-10-63
    Начать чат с агентом
    Похожие предложения в Москве
    Дом в Москва с. Былово, КП Русская усадьба, 63 (278 м) - Фото 1
    Дом в Москва с. Былово, КП Русская усадьба, 63 (278 м) - Фото 2
    3 этажа, общая площадь 278м², участок 5 соток

    Арт.О ДОМЕ: новый дом площадью 278 кв.м в коттеджном поселке бизнес класса Русская усадьба .На 1-м этаже находится, гостиная 72 кв.м. С камином, кухня 14 кв.м, спальня, холл, санузел. Второй свет в сочетании с большой площадью остекления дает много света...
    • 3 эт.
    • 278 м²
    • 5 сот.
    29 400 000 Р
    Агент
    +7 (933) Показать номер
    Посмотреть контакты
    Дом в Москва д. Жуковка, ул. Осенняя, 13 (152 м) - Фото 1
    Дом в Москва д. Жуковка, ул. Осенняя, 13 (152 м) - Фото 2
    1 этаж, общая площадь 152м², участок 5 соток

    Номер лота: нп-0023987. Дом подходит под семейную ипотеку В продаже 1- этажный дом с террасой для круглогодичного проживания в деревне Жуковка, прописка - Москва. Дом из качественных материалов с забором и откатными воротами. Участок - 5,59 соток,...
    • 1 эт.
    • 152 м²
    • 5 сот.
    28 900 000 Р
    Агент
    +7 (980) Показать номер
    Посмотреть контакты
    Дом в Москва с. Былово, Коттеджный поселок Русская усадьба,  (236 м) - Фото 1
    Дом в Москва с. Былово, Коттеджный поселок Русская усадьба,  (236 м) - Фото 2
    3 этажа, общая площадь 236м², участок 3 сотки

    Номер лота: нп-0023469.Всего в 24 км от Москвы по Калужскому шоссе, на берегу живописного озера и в окружении хвойного леса в известном коттеджном поселке бизнес-класса Русская усадьба продается готовый для проживания кирпичный, полностью меблированный...
    • 3 эт.
    • 236 м²
    • 3 сот.
    29 000 000 Р
    Агент
    +7 (989) Показать номер
    Посмотреть контакты
    Дом в Москва Лисья горка кп,  (211 м) - Фото 1
    Дом в Москва Лисья горка кп,  (211 м) - Фото 2
    2 этажа, общая площадь 211м², участок 6 соток

    Код объекта: 0811043• Современный проект предусматривает большое пространство зоны столовой-гостиной• Прекрасный вид из гостиной и спальни 2 этажа• Вход в дом по отпечатку пальца или электронному ключу• Интернет - оптоволокно• Участок с вековыми дубамиПланировка...
    • 2 эт.
    • 211 м²
    • 6 сот.
    29 500 000 Р
    Агент
    +7 (923) Показать номер
    Посмотреть контакты
    Коттедж в Москва с. Былово, 8 (210 м) - Фото 1
    Коттедж в Москва с. Былово, 8 (210 м) - Фото 2
    2 этажа, общая площадь 210м², участок 6 соток

    Арт.Продаю земельный участок 6 сот. ИЖС с 2-х этажным домом 210 кв.м с зимним садом. Адрес: г. Москва, пос. Краснопахорское, с.Былово, д.8, регистрация Москва. На 1-ом этаже спальня, гостиная, кухня-гостиная, бойлерная, санузел совмещен с ванной. На...
    • 2 эт.
    • 210 м²
    • 6 сот.
    30 000 000 Р
    Агент
    +7 (923) Показать номер
    Посмотреть контакты

    Не нашли подходящего объявления?

    Оставьте заявку, и наши риэлторы подберут купить дом в районе Москвы

    (0)