Россия, Москва, Академия Парк кп
26 210 000 Р 337 400 $ или 287 400

Информация о коттедже

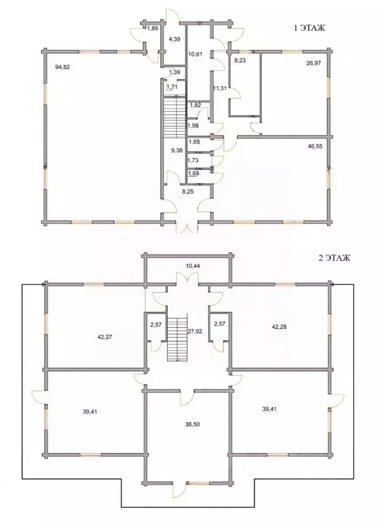
132 м2
Площадь
2
Этажность
4 cоток
Участок

Дополнительная информация

Дом продаётся вместе с участком
есть
Развернуть
Агент
+7 (985) 538-51-93
Начать чат с агентом

Коттедж в Москва Академия Парк кп, (132 м)

Продается новый коттедж 132 м2 от застройщика. Дом расположен на участке 4,8 сот. в современном охраняемом коттеджном поселке Академия Парк 2.0 в Новой Москве. О коттедже:- Площадь: 132 м2- Участок: 4,8 сот.- 2 этажа- Черновая отделка- Планировка:1 этаж: кухня-гостиная, спальня, гардероб, 1 с/у2 этаж: 3 спальни, гардероб, 2 с/у- 2 машиноместо на паркинге- Коммуникации: центральная канализация, водопровод, электричество, газ по границе участка, оптоволокно- Материалы: фундамент железобетонный, керамические блоки, железобетонные перекрытия, окна Rehau, кровля BRAAS Академия Парк 2.0 — новый коттеджный поселок в Новой Москве, где на благоустроенной и приватной территории построят 87 коттеджей площадью от 132 до 192 м2 на участках от 4 до 8 соток в едином архитектурном стиле. Преимущества коттеджного поселка Академия Парк 2.0 Эксклюзивная возможность: закажите строительство с нуля и выберите земельный участок, дизайн дома и цвет кирпича Индивидуальные парковочные места: навесы у каждого коттеджа и гостевая стоянка.Комфортная жизнь: собственная служба эксплуатации для жителей.Столичные привилегии: в коттеджном поселке Академия Парк 2.0 возможна московская прописка, что обеспечивает доступ к столичной инфраструктуре и услугам.Семейная атмосфера: в первой очереди Академии Парк постоянно проживают более 800 счастливых семей, которые вместе отмечают праздники, занимаются спортом и устраивают пикники. Инфраструктура:- Детский сад с углубленным английским языком- Площадки для футбола, стритбола, волейбола, бадминтона и тенниса- Парк-отель Империал с SPA-процедурами, бассейном и оздоровительными программами- Елизаровский пруд с пляжем, лежаками и беседками, местами для рыбалки- Теннисный и футбольный клубы для детей- Игровые комплексы для детей- Парковая зона с ландшафтным дизайном- Магазин и кофейня- Охрана и круглосуточное наблюдение Удобная транспортная доступность:24 км от МКАД по Киевскому шоссе20-25 минут на маршрутном такси от м. Юго-Западная и м. Саларьево Способы покупки:Ипотека: помощь в одобрении, сбор документов, сопровождение в день сделки в банке.Рассрочка от застройщика на индивидуальных условиях Звоните и записывайтесь на просмотр Наш эксперт отдела продаж встретит вас в поселке и покажет все варианты домов в наличии Номер объекта: 1/537691/22374

Читать полностью

    Для того, чтобы купить 2-этажный коттедж по адресу: Академия Парк кп, позвоните по телефону +7 (985) 538-51-93. Торопитесь! Объявление №50016095302 о продаже двухэтажного коттеджа опубликовано Вчера.

    Позвонить Написать
    26 210 000 Р337 400 $ или 287 400
    Агент
    +7 (985) 538-51-93
    Начать чат с агентом
    Похожие предложения в Москве
    Дом в Москва № 182 кв-л,  (150 м) - Фото 1
    Дом в Москва № 182 кв-л,  (150 м) - Фото 2
    1 этаж, общая площадь 150м², участок 9 соток

    Уникальное предложение Продается Дом в потрясающем красивом месте Общая площадь дома 150 кв. метров (Возможна финишная отделка).Кухня + гостиная 40кв.м.3 спальни.Подключено вода, канализация и электрика уже в доме.Сделан Вайт бокс ,Сделан забор , посажен...
    • 1 эт.
    • 150 м²
    • 9 сот.
    25 000 000 Р
    Агент
    +7 (985) Показать номер
    Посмотреть контакты
    Дом в Москва, Москва, Троицк ул. 7-я Вишневая, 33 (171 м) - Фото 1
    Дом в Москва, Москва, Троицк ул. 7-я Вишневая, 33 (171 м) - Фото 2
    2 этажа, общая площадь 171м², участок 6 соток

    Продаём 2-этажный дом, с участком, и гостевым домиком, с коммуникациями для постоянного проживания, местонахождение город Москва, город Троицк (18 км от МКАД по Калужскому шоссе). Закрытая территория со шлагбаумами, видеонаблюдением, освещением внутренних...
    • 2 эт.
    • 171 м²
    • 6 сот.
    26 900 000 Р
    Агент
    +7 (989) Показать номер
    Посмотреть контакты
    Дом в Москва Александровы Пруды кп, ул. 4-я Рыбацкая (188 м) - Фото 1
    Дом в Москва Александровы Пруды кп, ул. 4-я Рыбацкая (188 м) - Фото 2
    2 этажа, общая площадь 188м², участок 6 соток

    Дом мечтыПредлагаю новый современный дом 188 кв.м в охраняемом закрытом поселке АЕКСАНДРОВЫ ПРУДЫ . Прописка Москва. Дом под чистовую отделку.Установлен электро котел, сантехника.Есть возможность подключить газ, поселок газифицирован.Участок ровный -...
    • 2 эт.
    • 188 м²
    • 6 сот.
    25 700 000 Р
    Агент
    +7 (968) Показать номер
    Посмотреть контакты
    Дом в Москва № 42 кв-л, 1с1 (480 м) - Фото 1
    Дом в Москва № 42 кв-л, 1с1 (480 м) - Фото 2
    2 этажа, общая площадь 480м², участок 21 сотка

    Код объекта: 1858898.Уникальное расположение участок не граничит напрямую с соседними участками. Участок расположен у въезда в СНТ.Отопление от магистрального газа.Высота потолков -4 метра.Охрана, въезд через автоматические раздвижные ворота.Дорога...
    • 2 эт.
    • 480 м²
    • 21 сот.
    25 000 000 Р
    Агент
    +7 (923) Показать номер
    Посмотреть контакты
    Продается дом в д. Дудкино - Фото 1
    Продается дом в д. Дудкино - Фото 2
    общая площадь 120м², участок 5 соток

    Предлагается двухэтажный дом с качественным ремонтом, площадью 120 м2, со всеми центральными коммуникациями в Москве на юго-западе, который славится своим чистым воздухом и хвойными лесами, с участком 5 соток. Расположение очень удобное, с выездом на....
    • 120 м²
    • 5 сот.
    27 000 000 Р
    Агент
    +7 (925) Показать номер
    Посмотреть контакты

    Не нашли подходящего объявления?

    Оставьте заявку, и наши риэлторы подберут купить дом в районе Москвы

    (0)