Россия, Москва, Луч ВОГ СНТ, ул. Крестьянская, 23

Реализация объекта недвижимости приостановлена

Информация о коттедже

66.0 м2
Площадь
5.0 cоток
Участок

Дополнительная информация

Дом продаётся вместе с участком
есть
Развернуть

Дом в Москва Луч ВОГ СНТ, ул. Крестьянская, 23 (66 м)

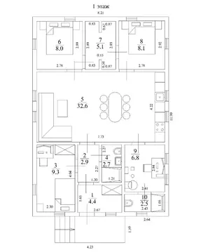
Код объекта: 1279943. Продаётся уютный дом в живописном районе Москвы Ищете идеальное место для жизни вдали от городской суеты? Тогда этот дом — то, что вам нужно Он расположен в СНТ Луч ВОГ, поселение Рязановское, Новомосковский административный округ.Дом теплый, построен в 2017 году из качественных материалов. Стены блок - 30 мм, утеплитель 50 мм, сайдинг. Перекрытия деревянные. Крыша покрыта прочным профнастилом. Дом подходит для круглогодичного проживания и оснащён всеми необходимыми коммуникациями: электричеством, водоснабжением (колодец с чистейшей водой) и канализацией (септик). Отопление электрическое.На участке площадью 5,7 соток есть всё необходимое для комфортной жизни: ухоженный сад, зона отдыха и гараж. Участок огорожен, подъезд к нему асфальтированный.Развитая инфраструктура: в шаговой доступности школы, детские сады, взрослые и детские поликлиники, сетевые магазины (Дикси, Пятерочка, Магнит, ФиксПрайс, ВкусВилл, Перекресток), пиццерии (скоро будет построен Вкусно и Точка), фитнесс-клубы, всевозможные секции для детей и взрослых, автосервисы, автобусные остановки, 10 минут пешком до МЦД Силикатная.Планировка дома включает три комнаты (12, 10,6 и 11,9 кв. м.), кухню (8,8 кв. м.) и другие помещения. Общая площадь составляет 66,4 кв. м., жилая — 34,5 кв. м. Высота потолков — 2,5 метра. В доме сделан косметический ремонт.Не упустите свой шанс стать обладателем этого уютного дома Мы гарантируем безопасность сделки и юридическую поддержку нашим клиентам. Поможем одобрить ипотеку с сниженной ставкой. ПОЗВОНИТЕ, Я ОТВЕЧУ НА ВСЕ ИНТЕРЕСУЮЩИЕ ВАС ВОПРОСЫ ОРГАНИЗУЮ ОПЕРАТИВНЫЙ ПОКАЗ

Читать полностью

    Реализация объекта недвижимости приостановлена

    Не нашли подходящего объявления?

    Оставьте заявку, и наши риэлторы подберут купить дом в районе Москвы

    (0)