Россия, Москва, 9-я Парковая ул., 41А
8 500 000 Р 109 400 $ или 93 200

Информация об комнате

28.4 м2
Комната
1
Этаж
8
Этажность

Состояние и оснащение

Лифт
есть

Дополнительная информация

Количество комнат
4
Количество продаваемых комнат
1
Лифт
Развернуть
Агент
+7 (915) 098-27-71
Начать чат с агентом

Комната Москва 9-я Парковая ул., 41А (28.4 м)

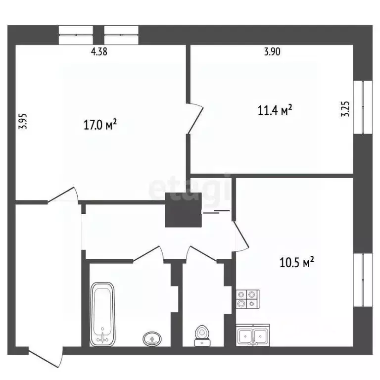
Номер в базе: 9681183. Отличное предложение Это нестандартный объект с своими сильными сторонами и важными нюансами.Продаются две смежно-изолированные комнаты (17 м и 11.4 м) в 4-комнатной коммунальной квартире. Комнаты имеют отдельный кадастровый номер и лицевой счет, то есть продаются не доля в праве на всю квартиру, а как самостоятельный объект (изолированная часть в коммуналке). Это ключевое преимущество.Детализация информацииО КОМНАТАХ И КВАРТИРЕ Площадь продаваемых комнат: 17.0 + 11.4 = 28.4 м. Общая площадь квартиры: 96.9 м. В эту площадь входят также 26.1 м мест общего пользования (коридор, кухня, санузлы), которые делятся между всеми соседями. Планировка: Комнаты смежно-изолированные. Это значит, что они находятся рядом и между ними есть дверь, но при этом каждая изолирована от общего коридора. Дверь между комнатами можно открыть, объединив пространство, или закрыть, получив две отдельные комнаты. Ремонт: В продаваемых комнатах сделан ремонт. Места общего пользования (кухня, санузлы, коридор) — без ремонта. Кухня: Площадь 10.5 м — это общая кухня для всей коммунальной квартиры. Окна: Вид во двор, на окнах решетки. Этаж: 1-й (высокий) из 8 этажей. Потолки: Высокие — 3 метра, что характерно для сталинских домов.ЮРИДИЧЕСКАЯ ИНФОРМАЦИЯ (самое важное) Статус: Не доля Это главное преимущество. Вы покупаете не долю в праве на всю квартиру, а конкретный объект — изолированные комнаты со своим кадастровым номером. Это значительно упрощает будущую продажу и избавляет от проблем, связанных с продажей долей (например, необходимость получать отказ от покупки от других совладельцев). Право собственности: У трех продавцов на основании приватизации 2008 года. Собственность более 15 лет. Прописка: Московская прописка (регистрация) предоставляется новому владельцу. Обременения: Отсутствуют. Никто не зарегистрирован (не прописан) в комнатах на момент продажи. Соседи: В квартире всего два собственника: один продает эти две комнаты, а второй владеет остальными двумя комнатами (одна семья).О ДОМЕ И ЛОКАЦИИ Дом: Сталинский кирпичный дом (индивидуальный проект) 1956 года постройки после капитального ремонта. Это добротный дом с хорошей звукоизоляцией. Инфраструктура в доме: мусоропровод, 1 пассажирский лифт. Район: ВАО, Измайлово, 9-я Парковая улица — тихий, зеленый, спокойный район. Метро: Очень выгодное расположение. Пешком до станций: Измайловская ~ 4 мин. Первомайская ~ 10 мин. Щёлковская ~ 11 мин. Инфраструктура: Рядом магазины, школа, детский сад.ВЫВОД Это одно из лучших предложений на рынке коммунальных комнат благодаря статусу не доля и отличному расположению. Оно идеально подойдет для тех, кто ищет возможность жить в Москве по относительно доступной цене (по сравнению с отдельной квартирой) и при этом готов к особенностям жизни в коммунальной квартире с одним соседом.Жду звонка, готовы организовать осмотр квартиры на месте Код пользователя: 176721

Читать полностью
    Позвонить Написать
    8 500 000 Р109 400 $ или 93 200
    Агент
    +7 (915) 098-27-71
    Начать чат с агентом
    Похожие предложения
    Комната Москва 9-я Парковая ул., 41А (28.4 м) - Фото 1
    Комната Москва 9-я Парковая ул., 41А (28.4 м) - Фото 2
    Номер в базе: 9681183. Отличное предложение Это нестандартный объект с своими сильными сторонами и важными нюансами.Продаются две смежно-изолированные комнаты (17 м и 11.4 м) в 4-комнатной коммунальной квартире. Комнаты имеют отдельный кадастровый номер...
    • 1 ком.
    • 1/8 эт.
    • 28.4 м²
    8 500 000 Р
    Агент
    +7 (915) Показать номер
    Посмотреть контакты
    Комната Москва Страстной бул., 4С3 (15.9 м) - Фото 1
    Комната Москва Страстной бул., 4С3 (15.9 м) - Фото 2
    Продается комната в 10-комнатной квартире, окна выходят во двор. Состояние квартиры жилое, чисто. Большая часть комнат сдается. Тихо. Хорошее состояние подъезда, делался ремонт. Лифт. Домофон. Лицевые счета разделены.ПЛАНИРОВКА:Общая площадь квартиры...
    • 1 ком.
    • 6/6 эт.
    • 15.9 м²
    8 500 000 Р
    Агент
    +7 (985) Показать номер
    Посмотреть контакты
    Комната Москва ул. Сергея Макеева, 1 - Фото 1
    Комната Москва ул. Сергея Макеева, 1 - Фото 2
    Предлагается студия в центре Москвы как арендный бизнес МАП. Расположение идеальное как для работы так и для отдыха. Рядом парк Красная Пресня ,современный и оснащенный парк, является объектом культурного наследия ,оборудован зоной отдыха с тремя бассейнами...
    • 1 ком.
    • 2/22 эт.
    8 500 000 Р
    Агент
    +7 (934) Показать номер
    Посмотреть контакты
    Комната Москва Шарикоподшипниковская ул., 6/14 (19.3 м) - Фото 1
    Комната Москва Шарикоподшипниковская ул., 6/14 (19.3 м) - Фото 2
    Номер лота: вт-0430281.Обратите внимание От метро Дубровка всего 5 минут пешком Продается светлая комната 19,3 кв.м. с застекленным балконом и видом в тихий двор. Потолки 3 метра создают дополнительное пространство. Комната правильной квадратной формы,...
    • 1 ком.
    • 7/8 эт.
    • 19.3 м²
    8 500 000 Р
    Агент
    +7 (980) Показать номер
    Посмотреть контакты
    Комната Москва просп. Андропова, 31 (28.2 м) - Фото 1
    Комната Москва просп. Андропова, 31 (28.2 м) - Фото 2
    Арт.На продажу представлены две большие комнаты в трехкомнатной квартире от одного собственника. (НЕ ДОЛЯ). Дом находится в двух минутах ходьбы от станции метро Коломенская . В шаговой доступности имеется вся необходимая для комфортной жизни инфраструктура:ТРЦ...
    • 1 ком.
    • 14/16 эт.
    • 28.2 м²
    8 500 000 Р
    Агент
    +7 (916) Показать номер
    Посмотреть контакты

    Не нашли подходящего объявления?

    Оставьте заявку, и наши риэлторы подберут комнату в районе Москвы

    (0)