6 300 000 Р 80 940 $ или 69 590

Информация о квартире

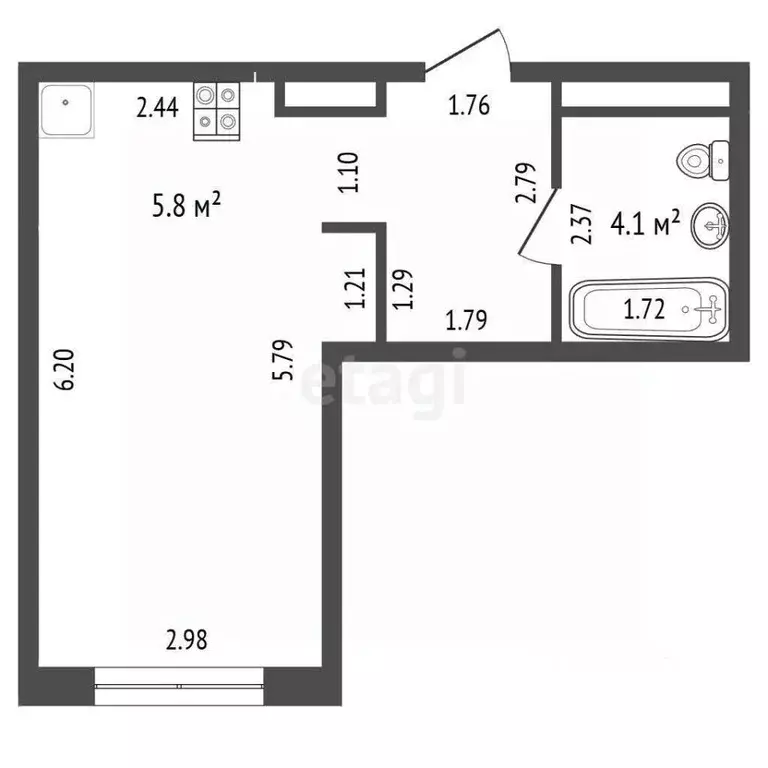
34 м2
Площадь
15 м2
Жилая
9 м2
Кухня
1
Комната
4
Этаж
5
Этажность
Развернуть
Агент
+7 (980) 149-82-35
Начать чат с агентом

1-к кв. Московская область, Люберцы городской округ, Малаховка пгт, ...

Номер лота: вт-0423892.Предлагается к продаже светлая уютная однокомнатная квартира с просторной лоджией. Рядом от МЦД Красково/Малахово. Монолит-кирпич, на первом этаже комната-кладовка для хранения вещей, велосипедов, колясок. Высота потолков 3м. Квартира в стадии ремонта, проведена вся электрика. Весь строительный материал в наличии ( керамогранит для укладки балкона, положена плитка из коридора до кухни. Так же полностью плитка для пола и стен в ванной канаты, куплена ванна смесители инсталляция. Подоконники.) Соседи все приличные. Ухоженный двор. На территории большое количество дет. Площадок. Развитая инфраструктура рядом школа. Детсады, поликлиника, магазины. Рестораны. Парковка наземная только для жителей комплекса. Один собственник. Обременений нет. Содействие в получении специальных условий и преференций по ипотеке.

Читать полностью

    Для того, чтобы купить однокомнатную квартиру по адресу: Малаховка, позвоните по телефону +7 (980) 149-82-35. Торопитесь! Объявление №30092225408 о продаже однокомнатной квартиры опубликовано 04 января 2026.

    Позвонить Написать
    6 300 000 Р80 940 $ или 69 590
    Агент
    +7 (980) 149-82-35
    Начать чат с агентом
    Похожие предложения
    Студия Московская область, Люберцы Зенино ЖК Самолет мкр, ул. Камова, ... - Фото 1
    Студия Московская область, Люберцы Зенино ЖК Самолет мкр, ул. Камова, ... - Фото 2
    студия, общая площадь 28м², кухня 5м²

    Номер в базе:. О КВАРТИРЕ:- Прописка МО- Студия 29 м2/жилая 13,3 м2 / кухня 5,8 м2- На 6 из 17- Окна смотрят во двор- Совмещённый санузел- Чистовая отделка от застройщика- Кухонного гарнитура НЕТ- В квартире остается мебель: диван, стеллаж под ТВ, шкаф-купеО...
    • 28 м²
    • студия-ком
    • 6/17 эт.
    6 200 000 Р
    Агент
    +7 (916) Показать номер
    Посмотреть контакты
    1-к кв. Московская область, Люберцы Зенино ЖК Самолет мкр, ул. Дружбы, ... - Фото 1
    1-к кв. Московская область, Люберцы Зенино ЖК Самолет мкр, ул. Дружбы, ... - Фото 2
    1-комнатная квартира, общая площадь 34м², жилая 15м², кухня 11м²

    Выгодное предложение Отличная, полноценная однокомнатная квартира в современном монолитно-кирпичном доме. Удачная планировка, по типуаспашонка , просторная кухня и комната на разные стороны, из кухни выход на лоджию. Площадь 34,4 кв. м. плюс лоджия....
    • 34 м²
    • 1-ком
    • 3/19 эт.
    6 250 000 Р
    Агент
    +7 (933) Показать номер
    Посмотреть контакты
    Студия Московская область, Люберцы Октябрьский просп., 403 (42.6 м) - Фото 1
    Студия Московская область, Люберцы Октябрьский просп., 403 (42.6 м) - Фото 2
    студия, общая площадь 42м², жилая 37м²

    БЫСТРАЯ СДЕЛКА Бесплатное сопровождение на всех этапах. НЕ ДОЛЯ, отдельный кадастр в ЕГРН.Рассрочка, лизинг, ипотека Лофт-квартал Октябрьский — это выбор для тех, кому важен комфорт, уют, стильные и современные решения.Тут каждый сможет найти пространство...
    • 42 м²
    • студия-ком
    • 3/4 эт.
    • кирпичный
    6 390 000 Р
    Агент
    +7 (923) Показать номер
    Посмотреть контакты
    1-к кв. Московская область, Люберцы Комсомольская ул., 9 (33.6 м) - Фото 1
    1-к кв. Московская область, Люберцы Комсомольская ул., 9 (33.6 м) - Фото 2
    1-комнатная квартира, общая площадь 33м², кухня 6м²

    Номер в базе:. О КВАРТИРЕ:- 1-ая квартира 33.6 кв.м.- квартира на 2 этаже из 4.-аздельный санузел.- под ремонт.- высокие потолки О ДОМЕ: - сталинский дом- чистый подъезд- отсутствуют неприятные запахи.- благоустроенный район. - зеленый двор.ОБ ИФРАСТРУКТУРЕ:-...
    • 33 м²
    • 1-ком
    • 2/4 эт.
    6 200 000 Р
    Агент
    +7 (923) Показать номер
    Посмотреть контакты
    1-к кв. Московская область, Люберцы городской округ, Мирный пгт ул. ... - Фото 1
    1-к кв. Московская область, Люберцы городской округ, Мирный пгт ул. ... - Фото 2
    1-комнатная квартира, общая площадь 30м², кухня 10м²

    Вашему вниманию предлагается на продажу 1а комнатная квартира. Один взрослый собственник. Никто не прописан. Дкп от застройщика. Без долгов. Без обременений. Без арестов. Без банкротства. Без маткапитала. Рядом остановка, 10 мин транспортная доступность...
    • 30 м²
    • 1-ком
    • 13/18 эт.
    • блочный
    6 300 000 Р
    Агент
    +7 (989) Показать номер
    Посмотреть контакты

    Не нашли подходящего объявления?

    Оставьте заявку, и наши риэлторы подберут квартиру в районе Малаховки

    (0)