54 441 000 Р 707 300 $ или 604 800

Информация об помещении

цоколь
Этаж

Состояние и оснащение

Количество этажей
17
Развернуть
Агент
+7 (938) 656-74-88
Начать чат с агентом

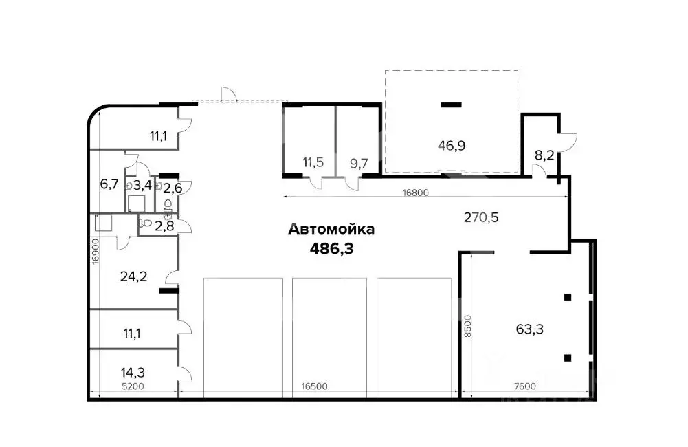
Торговая площадь в Московская область, Люберцы ул. Рождественская, 12 ...

1074717. Предлагаем к приобретению помещение под автомойку, площадью 473,4 кв. м., расположенное на -1 этаже жилого дома в ЖК 1-й Лермонтовский . Корпус 3.2. Без комиссии для покупателя. Преимущества объекта:-ЖК состоит из 5 многосекционных корпусов переменной этажности (от 22 до 25 этажей);-пешая доступность от станции МЦД-3 Люберцы (23 минуты пешком);-развитая инфраструктура в окружении;-отлично просматривается, находится в легком доступе для потенциальных клиентов;-гибкая планировка, позволяющая адаптировать пространство под различные нужды;-место для вывески;-стихийная парковка вдоль улицы. Технические параметры объекта:-отдельный вход с улицы;-высота потолков: 4 м. Свяжитесь с нами для получения дополнительной информации

Читать полностью
    Позвонить Написать
    54 441 000 Р707 300 $ или 604 800
    Агент
    +7 (938) 656-74-88
    Начать чат с агентом
    Похожие предложения в Люберцах
    Торговая площадь в Московская область, Люберцы ул. Рождественская, 12 ... - Фото 1
    Торговая площадь в Московская область, Люберцы ул. Рождественская, 12 ... - Фото 2
    1074717. Предлагаем к приобретению помещение под автомойку, площадью 473,4 кв. м., расположенное на -1 этаже жилого дома в ЖК 1-й Лермонтовский . Корпус 3.2. Без комиссии для покупателя. Преимущества объекта:-ЖК состоит из 5 многосекционных корпусов...
    • -1/17 эт.
    54 441 000 Р
    Агент
    +7 (938) Показать номер
    Посмотреть контакты
    Торговая площадь в Московская область, Люберцы ул. Рождественская, 12 ... - Фото 1
    Торговая площадь в Московская область, Люберцы ул. Рождественская, 12 ... - Фото 2
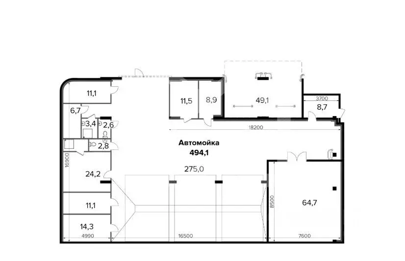
    1074713. Предлагаем к приобретению помещение под автомойку, площадью 487,7 кв. м., расположенное на -1 этаже жилого дома в ЖК 1-й Лермонтовский . Корпус 4.2. Без комиссии для покупателя. Преимущества объекта:-ЖК состоит из 5 многосекционных корпусов...
    • -1/17 эт.
    53 647 000 Р
    Агент
    +7 (938) Показать номер
    Посмотреть контакты
    Торговая площадь в Московская область, Люберцы ул. Рождественская, 12 ... - Фото 1
    Торговая площадь в Московская область, Люберцы ул. Рождественская, 12 ... - Фото 2
    1074713. Предлагаем к приобретению помещение под автомойку, площадью 487,7 кв. м., расположенное на -1 этаже жилого дома в ЖК 1-й Лермонтовский . Корпус 4.2. Без комиссии для покупателя. Преимущества объекта:-ЖК состоит из 5 многосекционных корпусов...
    • -1/17 эт.
    53 647 000 Р
    Агент
    +7 (938) Показать номер
    Посмотреть контакты
    Торговая площадь в Московская область, Люберцы ул. Рождественская, 12 ... - Фото 1
    Торговая площадь в Московская область, Люберцы ул. Рождественская, 12 ... - Фото 2
    1074717. Предлагаем к приобретению помещение под автомойку, площадью 473,4 кв. м., расположенное на -1 этаже жилого дома в ЖК 1-й Лермонтовский . Корпус 3.2. Без комиссии для покупателя. Преимущества объекта:-ЖК состоит из 5 многосекционных корпусов...
    • -1/17 эт.
    54 441 000 Р
    Агент
    +7 (938) Показать номер
    Посмотреть контакты
    Торговая площадь в Московская область, Люберцы ул. Рождественская, 12 ... - Фото 1
    Торговая площадь в Московская область, Люберцы ул. Рождественская, 12 ... - Фото 2
    1074713. Предлагаем к приобретению помещение под автомойку, площадью 487,7 кв. м., расположенное на -1 этаже жилого дома в ЖК 1-й Лермонтовский . Корпус 4.2. Без комиссии для покупателя. Преимущества объекта:-ЖК состоит из 5 многосекционных корпусов...
    • -1/17 эт.
    53 647 000 Р
    Агент
    +7 (938) Показать номер
    Посмотреть контакты

    Не нашли подходящего объявления?

    Оставьте заявку, и наши риэлторы подберут торговое помещение в районе Люберец

    (0)