53 647 000 Р 677 800 $ или 584 100

Информация об помещении

цоколь
Этаж

Состояние и оснащение

Количество этажей
17
Развернуть
Агент
+7 (938) 656-74-88
Начать чат с агентом

Торговая площадь в Московская область, Люберцы ул. Рождественская, 12 ...

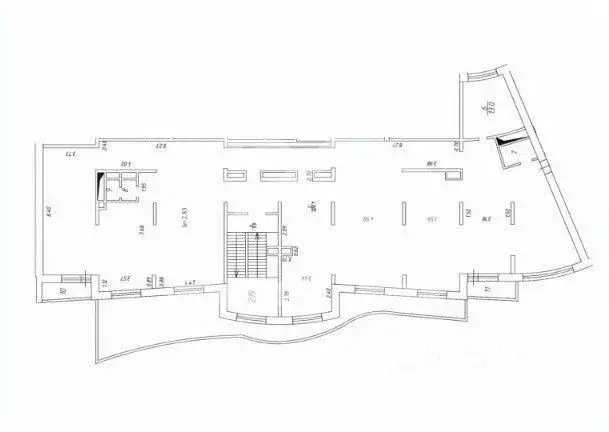
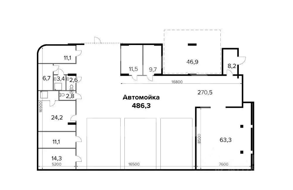
1074713. Предлагаем к приобретению помещение под автомойку, площадью 487,7 кв. м., расположенное на -1 этаже жилого дома в ЖК 1-й Лермонтовский . Корпус 4.2. Без комиссии для покупателя. Преимущества объекта:-ЖК состоит из 5 многосекционных корпусов переменной этажности (от 22 до 25 этажей);-пешая доступность от станции МЦД-3 Люберцы (23 минуты пешком);-развитая инфраструктура в окружении;-отлично просматривается, находится в легком доступе для потенциальных клиентов;-гибкая планировка, позволяющая адаптировать пространство под различные нужды;-место для вывески;-стихийная парковка вдоль улицы. Технические параметры объекта:-отдельный вход с улицы;-высота потолков: 4 м. Свяжитесь с нами для получения дополнительной информации

Читать полностью
    Позвонить Написать
    53 647 000 Р677 800 $ или 584 100
    Агент
    +7 (938) 656-74-88
    Начать чат с агентом
    Похожие предложения
    Торговая площадь в Московская область, Люберцы ул. Рождественская, 12 ... - Фото 1
    Торговая площадь в Московская область, Люберцы ул. Рождественская, 12 ... - Фото 2
    1074717. Предлагаем к приобретению помещение под автомойку, площадью 473,4 кв. м., расположенное на -1 этаже жилого дома в ЖК 1-й Лермонтовский . Корпус 3.2. Без комиссии для покупателя. Преимущества объекта:-ЖК состоит из 5 многосекционных корпусов...
    • -1/17 эт.
    54 441 000 Р
    Агент
    +7 (938) Показать номер
    Посмотреть контакты
    Торговая площадь в Московская область, Люберцы ул. Рождественская, 12 ... - Фото 1
    Торговая площадь в Московская область, Люберцы ул. Рождественская, 12 ... - Фото 2
    1074717. Предлагаем к приобретению помещение под автомойку, площадью 473,4 кв. м., расположенное на -1 этаже жилого дома в ЖК 1-й Лермонтовский . Корпус 3.2. Без комиссии для покупателя. Преимущества объекта:-ЖК состоит из 5 многосекционных корпусов...
    • -1/17 эт.
    54 441 000 Р
    Агент
    +7 (938) Показать номер
    Посмотреть контакты
    Продажа торгового помещения 272 м2 по адресу г. Балашиха, мкр. Железнодорожный, Саввинское шоссе, д.10. Помещение 272 м2, располагается на 1 этаже, открытая планировка, два отдельных входа, высота потолка 3 м, витринные окна по фасаду. Электрическая мощность...
    • 1/11 эт.
    55 000 000 Р
    Агент
    +7 (916) Показать номер
    Посмотреть контакты
    Торговая площадь в Московская область, Домодедово городской округ, с. ... - Фото 1
    Торговая площадь в Московская область, Домодедово городской округ, с. ... - Фото 2
    Арт.Продажа коммерческого помещения по адресу: улица Мезенцева, 23, село Ям, городской округ Домодедово, Московская областьХарактеристики помещения:общая площадь 144.49 м21 этаж жилого домаотдельный вход с торца домавитринные окнаэл. мощность 26 кВтЛокация:новый...
    • 1/18 эт.
    53 461 300 Р
    Агент
    +7 (980) Показать номер
    Посмотреть контакты
    Торговая площадь в Московская область, Красногорск бул. Павшинский, 34 ... - Фото 1
    Торговая площадь в Московская область, Красногорск бул. Павшинский, 34 ... - Фото 2
    692576. Предлагаем к приобретению двухуровневое помещение свободного назначения, площадью 510 кв. м., расположенное на первом этаже жилого дома в ЖК Красногорье делюкс . Без комиссии для покупателя.Преимущества объекта: -комплекс состоит из 10 корпусов...
    • 1/9 эт.
    55 000 000 Р
    Агент
    +7 (938) Показать номер
    Посмотреть контакты

    Не нашли подходящего объявления?

    Оставьте заявку, и наши риэлторы подберут торговое помещение в районе Люберец

    (0)