168 408 000 Р 2 214 300 $ или 1 879 000

Информация об помещении

1
Этаж

Состояние и оснащение

Количество этажей
1
Развернуть
Агент
+7 (938) 656-74-88
Начать чат с агентом

Помещение свободного назначения в Московская область, Люберцы ...

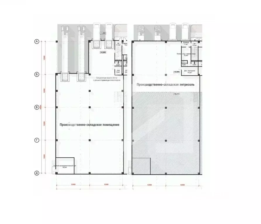
974720. Предлагается современный производственно-складской комплекс общей площадью 1 403.4 кв.м. на территории индустриального парка Завод , Люберцы.Преимущества: Центр крупной промышленной зоны. 6 минут пешком до станции МЦД-3 Панки , 10 минут до станции Люберцы . Развитая транспортная логистика: 8 км от МКАД (20 минут на авто) и 2 км от трассы М5 Урал . Инфраструктура: магазины, аптеки, кафе — всё в шаговой доступности. Собственная котельная, магистральный газ, центральные коммуникации.Для сотрудников: рядом жилой массив и транспортные узлы. Управляющая компания. Огороженная территория. Парковка.Технические характеристики:Площадь блока: 1 403.4 кв.м.Площадь первого этажа: 970.7 кв.м., площадь антресоли: 432.7 кв.м.Есть возможность адаптации под нужны заказчика.4 доковых узла: 2 — для фур, 2 — для малотоннажных и легковых авто.Высота потолков: 10 м + антресоль 4,5 м.Нагрузка на пол: 6 т/кв.м, в зоне мезонина: 1,5 т/кв.м.Выделенная мощность: 25 квт в каждом блоке.Готовность - 3 кв. 2026 г.Так как корректный адрес отсутствует на Яндекс.Картах, введен ориентировочный.

Читать полностью
    Позвонить Написать
    168 408 000 Р2 214 300 $ или 1 879 000
    Агент
    +7 (938) 656-74-88
    Начать чат с агентом
    Похожие предложения в Люберцах
    Помещение свободного назначения в Московская область, Люберцы ... - Фото 1
    Помещение свободного назначения в Московская область, Люберцы ... - Фото 2
    974742. Предлагается современный производственно-складской комплекс общей площадью 1 380.2 кв.м. на территории индустриального парка Завод , Люберцы.Преимущества: Центр крупной промышленной зоны. 6 минут пешком до станции МЦД-3 Панки , 10 минут до станции...
    • 1/1 эт.
    165 624 000 Р
    Агент
    +7 (938) Показать номер
    Посмотреть контакты
    Помещение свободного назначения в Московская область, Люберцы ... - Фото 1
    Помещение свободного назначения в Московская область, Люберцы ... - Фото 2
    974725. Предлагается современный производственно-складской комплекс общей площадью 1 484.8 кв.м. на территории индустриального парка Завод , Люберцы.Преимущества: Центр крупной промышленной зоны. 6 минут пешком до станции МЦД-3 Панки , 10 минут до станции...
    • 1/1 эт.
    178 176 000 Р
    Агент
    +7 (938) Показать номер
    Посмотреть контакты
    Помещение свободного назначения в Московская область, Люберцы ... - Фото 1
    Помещение свободного назначения в Московская область, Люберцы ... - Фото 2
    974738. Предлагается современный производственно-складской комплекс общей площадью 1 450.9 кв.м. на территории индустриального парка Завод , Люберцы.Преимущества: Центр крупной промышленной зоны. 6 минут пешком до станции МЦД-3 Панки , 10 минут до станции...
    • 1/1 эт.
    174 108 000 Р
    Агент
    +7 (938) Показать номер
    Посмотреть контакты
    Помещение свободного назначения в Московская область, Люберцы ... - Фото 1
    Помещение свободного назначения в Московская область, Люберцы ... - Фото 2
    974720. Предлагается современный производственно-складской комплекс общей площадью 1 403.4 кв.м. на территории индустриального парка Завод , Люберцы.Преимущества: Центр крупной промышленной зоны. 6 минут пешком до станции МЦД-3 Панки , 10 минут до станции...
    • 1/1 эт.
    168 408 000 Р
    Агент
    +7 (938) Показать номер
    Посмотреть контакты
    Помещение свободного назначения в Московская область, Люберцы ... - Фото 1
    Помещение свободного назначения в Московская область, Люберцы ... - Фото 2
    974746. Предлагается современный производственно-складской комплекс общей площадью 1 347.7 кв.м. на территории индустриального парка Завод , Люберцы.Преимущества: Центр крупной промышленной зоны. 6 минут пешком до станции МЦД-3 Панки , 10 минут до станции...
    • 1/1 эт.
    161 724 000 Р
    Агент
    +7 (938) Показать номер
    Посмотреть контакты

    Не нашли подходящего объявления?

    Оставьте заявку, и наши риэлторы подберут псн в районе Люберец

    (0)