81 000 000 Р 1 015 900 $ или 878 600

Информация об помещении

1
Этаж

Состояние и оснащение

Количество этажей
1
Развернуть
Агент
+7 (938) 656-74-88
Начать чат с агентом

Помещение свободного назначения в Московская область, Люберцы ...

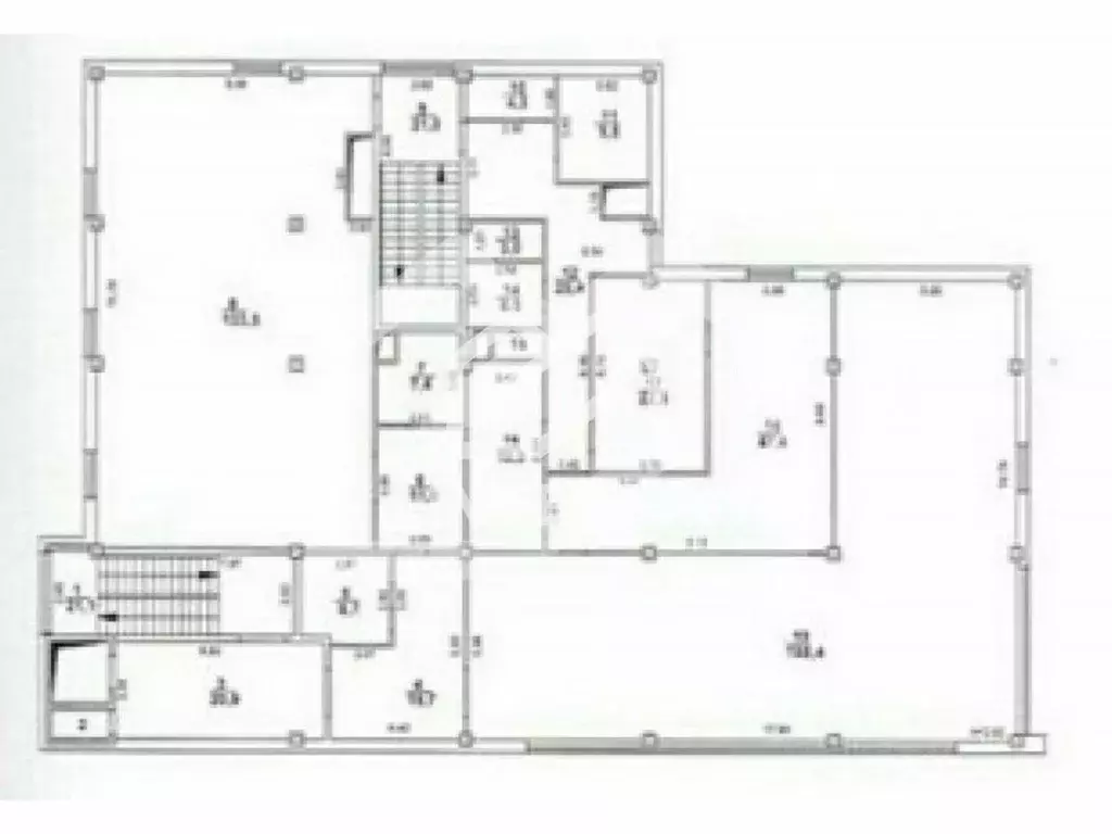
1157322. Предлагается производственно-складское помещение общей площадью 648 кв. м. в г. Люберцы.Преимущества:Современный складской комплекс на территории индустриального парка Завод , Люберцы. Центр крупной промышленной зоны. 6 минут пешком до станции МЦД-3 Панки , 10 минут до станции Люберцы . Развитая транспортная логистика: 8 км от МКАД (20 минут на авто) и 2 км от трассы М5 Урал . Инфраструктура: магазины, аптеки, кафе - всё в шаговой доступности. Для сотрудников: рядом жилой массив и транспортные узлы. Собственная управляющая компания. Огороженная территория. Парковка.Технические характеристики:Площадь блока: 648 кв. м.Площадь первого этажа: 432 кв. мПлощадь антресоли: 216 кв. м.Есть возможность адаптации под нужны заказчика.2 доковых узла: для фуры и для малотоннажного/легкового авто.Высота потолков: 10 метров, антресоль 4,5 м.Нагрузка на пол: 6 т/м, в зоне мезонина: 1,5 т/м.Выделенная мощность: 15 кВт.Собственная котельная, магистральный газ, все центральные коммуникации.

Читать полностью
    Позвонить Написать
    81 000 000 Р1 015 900 $ или 878 600
    Агент
    +7 (938) 656-74-88
    Начать чат с агентом
    Похожие предложения
    Помещение свободного назначения в Московская область, Люберцы ... - Фото 1
    Помещение свободного назначения в Московская область, Люберцы ... - Фото 2
    1157322. Предлагается производственно-складское помещение общей площадью 648 кв. м. в г. Люберцы.Преимущества:Современный складской комплекс на территории индустриального парка Завод , Люберцы. Центр крупной промышленной зоны. 6 минут пешком до станции...
    • 1/1 эт.
    81 000 000 Р
    Агент
    +7 (938) Показать номер
    Посмотреть контакты
    Помещение свободного назначения в Московская область, Люберцы ... - Фото 1
    Помещение свободного назначения в Московская область, Люберцы ... - Фото 2
    1157322. Предлагается производственно-складское помещение общей площадью 648 кв. м. в г. Люберцы.Преимущества:Современный складской комплекс на территории индустриального парка Завод , Люберцы. Центр крупной промышленной зоны. 6 минут пешком до станции...
    • 1/1 эт.
    81 000 000 Р
    Агент
    +7 (938) Показать номер
    Посмотреть контакты
    Помещение свободного назначения в Московская область, Лыткарино 3-й ... - Фото 1
    Помещение свободного назначения в Московская область, Лыткарино 3-й ... - Фото 2
    642933. Предлагаем отдельно стоящее торговое здание с якорным арендатором - супермаркетом Пятёрочка , площадью 750 кв. м. Без комиссии для покупателя.Преимущества объекта:-15 минут на автомобиле от станции метро Котельники;-объект отлично просматривается,...
    • 1/2 эт.
    80 000 000 Р
    Агент
    +7 (938) Показать номер
    Посмотреть контакты
    Помещение свободного назначения в Московская область, Солнечногорск ... - Фото 1
    Помещение свободного назначения в Московская область, Солнечногорск ... - Фото 2
    1119257. Предалается складское помещение общей площадью 553 кв. м. в индустриальном парке Есипово-4. Корпус: F.Преимущества:32 км. от МКАД по Ленинградскому шоссе, вблизи трассы А-107 и ЦКАД. Комплекс складских помещений. Развитая транспортная инфраструктура....
    • 1/2 эт.
    80 185 000 Р
    Агент
    +7 (938) Показать номер
    Посмотреть контакты
    979862. Предалается складское помещение общей площадью 553 кв. м. в индустриальном парке Есипово-5. Корпус: FПреимущества:32 км. от МКАД по Ленинградскому шоссе, вблизи трассы А-107 и ЦКАД. Комплекс складских помещений. Развитая транспортная инфраструктура....
    • 1/2 эт.
    80 974 936 Р
    Агент
    +7 (938) Показать номер
    Посмотреть контакты

    Не нашли подходящего объявления?

    Оставьте заявку, и наши риэлторы подберут псн в районе Люберец

    (0)