78 500 000 Р 925 300 $ или 810 000

Информация об помещении

1
Этаж

Состояние и оснащение

Количество этажей
1
Развернуть
Агент
+7 (938) 656-74-88
Начать чат с агентом

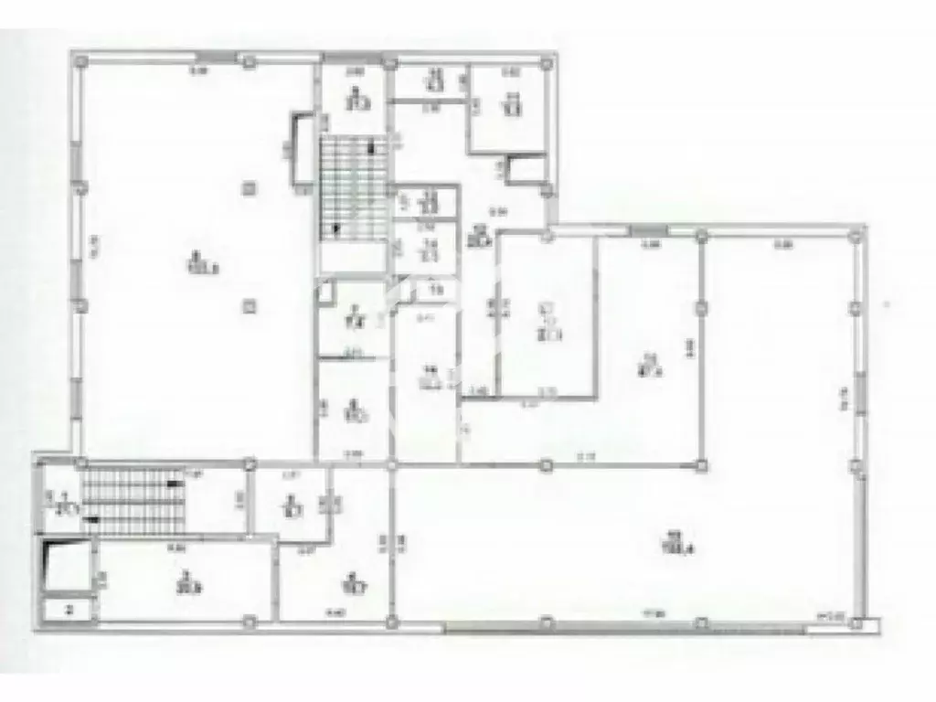
Помещение свободного назначения в Московская область, Люберцы Городок ...

1094214. Предлагаем отдельно стоящее здание с якорным арендатором супермаркет Магнит , площадью 294 кв. м., в г. Люберцы. Так как корректный адрес отсутствует на Яндекс.Картах, введен ближайший. Без комиссии для покупателя. Преимущества объекта:-20 минут пешком от станций метро Жулебино, Котельники и МЦД-3 Люберцы;-густонаселённый жилой массив;-развитая инфраструктура района;-поблизости парк Наташинские пруды , бизнес-центр Легион , спортшкола Звезда ;-стабильный автомобильный и пешеходный трафик;-объект отлично просматривается, находится в легком доступе для клиентов;-надежный сетевой арендатор;-витринное остекление;-место для вывески;-здание полностью обеспечено коммунальными ресурсами: водоснабжение (ХВС), водоотведение, индивидуальное отопление, объект газифицирован;-наземная парковка;-рядом остановки общественного транспорта;-площадь земельного участка 703 кв. м. (в собственности); -дополнительная возможность развития: строительство/установка павильона до 50 кв. м. Технические параметры объекта:-несколько входных групп;-электрическая мощность: 150 кВт. Информация об арендаторе: -арендатор: супермаркет Магнит ;-прибыль:/мес.;-окупаемость: 11,5 лет;-доходность: 8,73 . Свяжитесь с нами для получения дополнительной информации

Читать полностью
    Позвонить Написать
    78 500 000 Р925 300 $ или 810 000
    Агент
    +7 (938) 656-74-88
    Начать чат с агентом
    Похожие предложения
    Помещение свободного назначения в Московская область, Люберцы Городок ... - Фото 1
    Помещение свободного назначения в Московская область, Люберцы Городок ... - Фото 2
    1094214. Предлагаем отдельно стоящее здание с якорным арендатором супермаркет Магнит , площадью 294 кв. м., в г. Люберцы. Так как корректный адрес отсутствует на Яндекс.Картах, введен ближайший. Без комиссии для покупателя. Преимущества объекта:-20 минут...
    • 1/1 эт.
    78 500 000 Р
    Агент
    +7 (938) Показать номер
    Посмотреть контакты
    Производственная площадь в ИП Есипово - Фото 1
    Производственная площадь в ИП Есипово - Фото 2
    Производственная площадь в ИП Есипово - Фото 3
    Производственная площадь в ИП Есипово - Фото 4
    Производственная площадь в ИП Есипово - Фото 5
    Производственная площадь в ИП Есипово - Фото 6
    Производственная площадь в ИП Есипово - Фото 7
    Производственная площадь в ИП Есипово - Фото 8
    Производственная площадь в ИП Есипово - Фото 9
    Производственная площадь в ИП Есипово - Фото 10
    Производственная площадь в ИП Есипово - Фото 11
    Производственная площадь в ИП Есипово - Фото 12
    Производственная площадь в ИП Есипово - Фото 13
    полезная площадь 606.4м²

    Это уникальный, по своей концепции, формат индустриальной недвижимости, соответствующий всем международным стандартам качества. Отапливаемое здание под производство или склад Класса А+. Индустриальный Парк Есипово! Расстояние от МКАД - 31 км! Площадь 606,40...
    • 606.4 м²
    • 1/1 эт.
    78 832 000 Р
    Агент
    +7 (929) Показать номер
    Посмотреть контакты
    Помещение свободного назначения в Московская область, Солнечногорск ... - Фото 1
    Помещение свободного назначения в Московская область, Солнечногорск ... - Фото 2
    1131109. Предлагаем отдельно стоящее здание с арендатором супермаркет Магнит , ПВЗ Wildberries , площадью 629 кв. м. Без комиссии для покупателя.Преимущества объекта:-первая линия Таракановского шоссе;-10 минут на автомобиле от станции ж/д Подсолнечная...
    • 1/1 эт.
    79 000 000 Р
    Агент
    +7 (938) Показать номер
    Посмотреть контакты
    Помещение свободного назначения в Московская область, Лыткарино 3-й ... - Фото 1
    Помещение свободного назначения в Московская область, Лыткарино 3-й ... - Фото 2
    642933. Предлагаем отдельно стоящее торговое здание с якорным арендатором - супермаркетом Пятёрочка , площадью 750 кв. м. Без комиссии для покупателя.Преимущества объекта:-15 минут на автомобиле от станции метро Котельники;-объект отлично просматривается,...
    • 1/2 эт.
    80 000 000 Р
    Агент
    +7 (938) Показать номер
    Посмотреть контакты
    Помещение свободного назначения в Московская область, Красногорск ... - Фото 1
    Помещение свободного назначения в Московская область, Красногорск ... - Фото 2
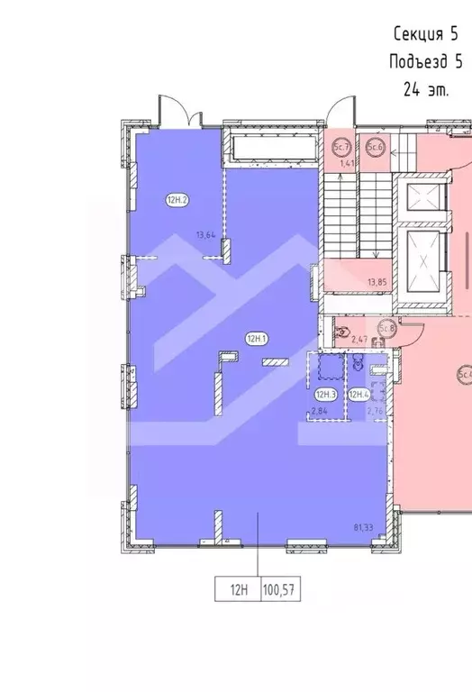
    1074539. Предлагаем к приобретению помещение свободного назначения в ЖК Квартал Строгино с арендатором кофейня Здрасте , площадью 100.57 кв. м, расположенное на первом этаже 24-этажного жилого дома. Без комиссии для покупателя. Преимущества объекта:-ЖК...
    • 1/24 эт.
    79 000 000 Р
    Агент
    +7 (938) Показать номер
    Посмотреть контакты

    Не нашли подходящего объявления?

    Оставьте заявку, и наши риэлторы подберут псн в районе Люберец

    (0)