35 200 000 Р 450 200 $ или 387 700

Информация об помещении

1
Этаж

Состояние и оснащение

Количество этажей
22
Развернуть
Агент
+7 (938) 656-74-88
Начать чат с агентом

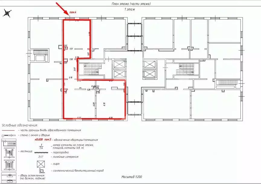
Помещение свободного назначения в Московская область, Люберцы ул. ...

1095472. Предлагаем к приобретению помещение свободного назначения с сетевым арендатором Самокат , площадью 159,8 кв. м., расположенное на первом этаже жилого дома в ЖК Люберецкий . Без комиссии для покупателя. Преимущества объекта:-комплекс состоит из 18 корпусов переменной этажности (от 9 до 25 этажей), рассчитан на 8 348 квартир;-12 минут пешком от станции метро Некрасовка;-удобный выезд на Косинское шоссе;-густонаселённый жилой массив;-развитая инфраструктура района;-стабильный автомобильный и пешеходный трафик;-объект отлично просматривается, находится в легком доступе для клиентов;-надёжный арендатор;-витринное остекление;-место для вывески;-наземная парковка около помещения;-рядом остановки общественного транспорта. Технические параметры объекта:-отдельный вход;-электрическая мощность: 32,6 кВт. Информация об арендаторе: -арендатор: Самокат , ДДА;-прибыль:/мес.;-окупаемость: 10,2 лет;-доходность: 9,81 .Свяжитесь с нами для получения дополнительной информации

Читать полностью
    Позвонить Написать
    35 200 000 Р450 200 $ или 387 700
    Агент
    +7 (938) 656-74-88
    Начать чат с агентом
    Похожие предложения
    Помещение свободного назначения в Московская область, Люберцы ул. ... - Фото 1
    Помещение свободного назначения в Московская область, Люберцы ул. ... - Фото 2
    1095472. Предлагаем к приобретению помещение свободного назначения с сетевым арендатором Самокат , площадью 159,8 кв. м., расположенное на первом этаже жилого дома в ЖК Люберецкий . Без комиссии для покупателя. Преимущества объекта:-комплекс состоит...
    • 1/22 эт.
    35 200 000 Р
    Агент
    +7 (938) Показать номер
    Посмотреть контакты
    Помещение свободного назначения в Московская область, Люберцы ул. ... - Фото 1
    Помещение свободного назначения в Московская область, Люберцы ул. ... - Фото 2
    1095472-gab . Предлагаем к приобретению помещение свободного назначения формата Street Retail с сетевым арендатором Самокат , площадью 159,8 кв. м., расположенное на первом этаже жилого дома в ЖК Люберецкий . Без комиссии для покупателя. Преимущества...
    • 1/22 эт.
    35 200 000 Р
    Агент
    +7 (938) Показать номер
    Посмотреть контакты
    Помещение свободного назначения в Московская область, Люберцы ... - Фото 1
    Помещение свободного назначения в Московская область, Люберцы ... - Фото 2
    Продаётся помещение свободного назначения.В шаговой доступности Люберецкие торговые ряды, ТЦ Лабиринт, ТЦ Фортуна, Наташинский парк, Люберецкий парк, множество магазинов, кафе, ресторанов и все необходимое для жизни. Местоположение комплекса характеризуется...
    • 1/25 эт.
    35 500 000 Р
    Агент
    +7 (985) Показать номер
    Посмотреть контакты
    Помещение свободного назначения в Московская область, Люберцы Городок ... - Фото 1
    Помещение свободного назначения в Московская область, Люберцы Городок ... - Фото 2
    Лот 969842 Предложение от Собственника Продается помещение свободного назначения общей площадью 574,6 кв.м, расположенное в цоколе многоярусного паркинга г.Люберцы гор.Б в 10 мин. пешком от метро Жулебино. Отдельно-стоящее 5-эт. здание. Помещение имеет...
    • -1/5 эт.
    36 000 000 Р
    Агент
    +7 (986) Показать номер
    Посмотреть контакты
    Помещение свободного назначения в Московская область, Люберцы ... - Фото 1
    Помещение свободного назначения в Московская область, Люберцы ... - Фото 2
    914679. Предлагаем помещение свободного назначения, площадью 104,9 кв. м, расположенное на первом этаже жилого дома в ЖК Томилино Парк . Без комиссии для покупателя. Предлагаем угловое помещение свободного назначения в ЖК Томилино Парк , площадью 104.9...
    • 1/17 эт.
    36 000 000 Р
    Агент
    +7 (938) Показать номер
    Посмотреть контакты

    Не нашли подходящего объявления?

    Оставьте заявку, и наши риэлторы подберут псн в районе Люберец

    (0)