822 080 000 Р 10 738 800 $ или 9 105 100

Информация об помещении

10276 м2
Площадь
1
Этаж

Состояние и оснащение

Общая площадь складского комплекса, м2
10276
Развернуть
Захарова Зинаида Владимировна
PRO
+7 (495) 532-41-14
Профессионал AFY.ru с 2021 г.
Начать чат с агентом

Продажа производственного помещения, Люберцы, Люберецкий район, ...

Арт.
Производственно-складское помещение общая площадь 10276кв.м. (есть возможность объединения и деления площадей).
Высота потолков 10,5 метров, полы антипыль с нагрузкой 6 тонн м.кв. Есть здания с высотой 9 м и 13 м.
Ворота докового типа 28 шт с докшелторами и доклевеллерами.
Электрическая мощность 210 квт с возможностью увеличения.
Инвестиционная привлекательность: Расчетная окупаемость: 6,4 лет. Доходность: 15,69 %.
Подключены городские сети канализации и водопровода, газовое отопление. Установлена пожарная сигнализация.
Современный складской комплекс с развитой внутренней инфраструктурой для комфортной работы. Широкие проезды между зданиями, удобные для маневрирования большегрузного транспорта. На территории предусмотрены места общественного питания, спортивный зал и площадки, помещения для проведения конференций и отдыха. Круглосуточные душевые общего пользования. Парковки для личного и грузового транспорта с зонами отдыха для водителей - 1.8 га. Собственная управляющая компания.
Производственно-складской комплекс формата "Light Industrial" на первой линии Новорязанского шоссе. 5 минут на автомобиле от ст. МЦД "Томилино" и 10 мин м. Котельники. Развитая транспортная логистика. 8 км от МКАД.
Возможны рассрочка, и различные варианты оплат.
Подробности по телефону.

Читать полностью

    Для того, чтобы купить производственное помещение площадью 10276 кв. метров по адресу: Люберцы, Октябрьская ул., 6, позвоните по телефону +7 (495) 532-41-14. Торопитесь! Объявление №901098308 о продаже производственного помещения площадью 10276 кв. метров опубликовано Сегодня.

    Позвонить Написать
    822 080 000 Р10 738 800 $ или 9 105 100
    Захарова Зинаида Владимировна
    PRO
    +7 (495) 532-41-14
    Профессионал AFY.ru с 2021 г.
    Начать чат с агентом
    Похожие предложения
    Производственное помещение в Московская область, Люберцы городской ... - Фото 1
    Производственное помещение в Московская область, Люберцы городской ... - Фото 2
    Арт.Производственно-складское помещение общая площадь 10276кв.м. (есть возможность объединения и деления площадей).Высота потолков 10,5 метров, полы антипыль с нагрузкой 6 тонн м.кв. Есть здания с высотой 9 м и 13 м.Ворота докового типа 28 шт с докшелторами...
    • 1/1 эт.
    822 080 000 Р
    Агент
    +7 (915) Показать номер
    Посмотреть контакты
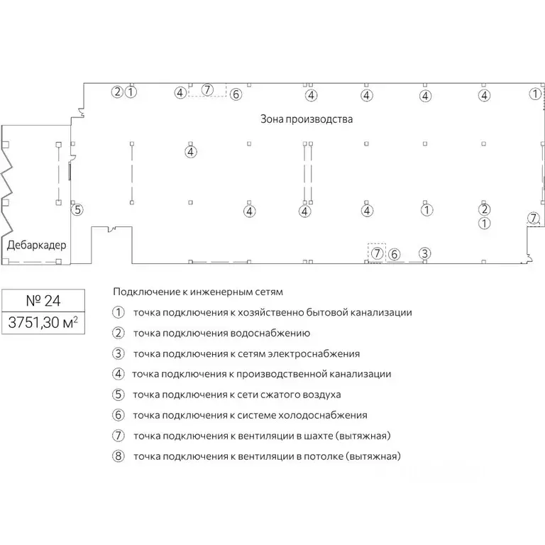
    Производственное помещение в Москва Рябиновая ул., 42АС10 (3751 м) - Фото 1
    Производственное помещение в Москва Рябиновая ул., 42АС10 (3751 м) - Фото 2
    Индустриальный парк Рябиновая 42 — современный производственно-логистический комплекс внутри МКАД, созданный для бизнеса пищевой и лёгкой промышленности. Удобное расположение рядом с ТТК, МКАД и федеральными трассами обеспечивает быстрый доступ из любой...
    • 2/4 эт.
    825 286 000 Р
    Агент
    +7 (986) Показать номер
    Посмотреть контакты
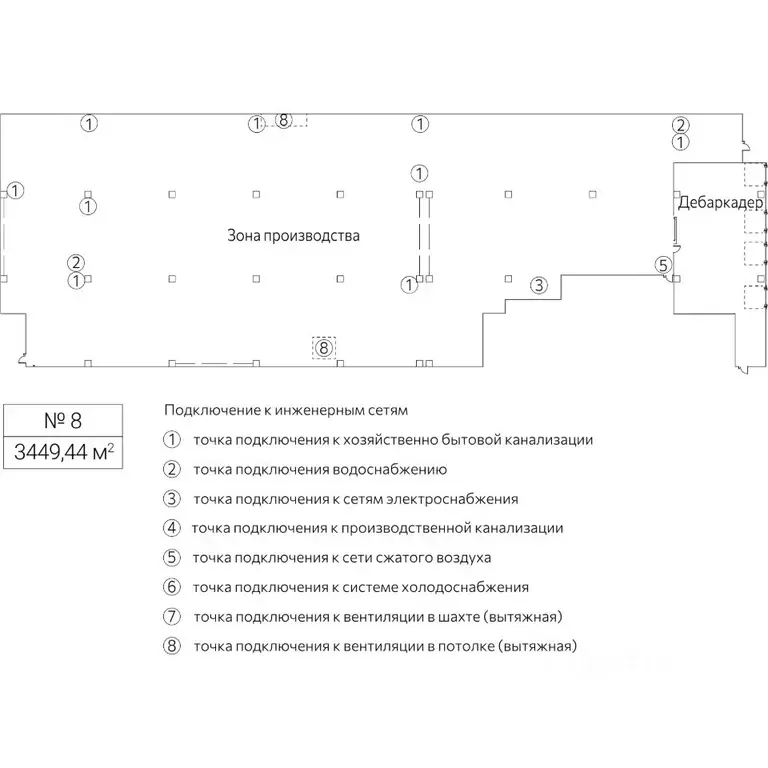
    Производственное помещение в Москва Рябиновая ул., 42АС10 (3449 м) - Фото 1
    Производственное помещение в Москва Рябиновая ул., 42АС10 (3449 м) - Фото 2
    Индустриальный парк Рябиновая 42 — современный производственно-логистический комплекс внутри МКАД, созданный для бизнеса пищевой и лёгкой промышленности. Удобное расположение рядом с ТТК, МКАД и федеральными трассами обеспечивает быстрый доступ из любой...
    • 1/4 эт.
    827 865 600 Р
    Агент
    +7 (986) Показать номер
    Посмотреть контакты
    Производственное помещение в Московская область, Солнечногорск ... - Фото 1
    Производственное помещение в Московская область, Солнечногорск ... - Фото 2
    Цифровой промышленный комплекс Industrial City - высококачественные производственно-складские помещения. Пятая очередь станет самым крупным комплексом в Есипово. Локация парка создает идеальную промышленную среду.Налоговая: 44. Лифты: Нет. Вентиляция:...
    • 1/1 эт.
    821 304 000 Р
    Агент
    +7 (933) Показать номер
    Посмотреть контакты

    Не нашли подходящего объявления?

    Оставьте заявку, и наши риэлторы подберут производственное помещение в районе Люберец

    (0)