168 408 000 Р 2 181 600 $ или 1 839 400

Информация об помещении

1
Этаж

Состояние и оснащение

Количество этажей
1
Развернуть
Агент
+7 (938) 656-74-88
Начать чат с агентом

Производственное помещение в Московская область, Люберцы ...

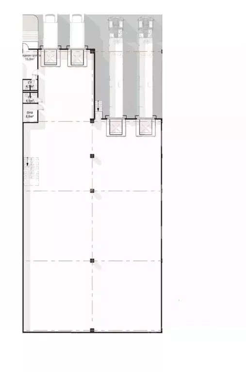
974720-wi . Современный складской комплекс на территории индустриального парка Завод , Люберцы. Центр крупной промышленной зоны. 6 минут пешком до станции МЦД-3 Панки , 10 минут до станции Люберцы . Развитая транспортная логистика: 8 км от МКАД (20 минут на авто) и 2 км от трассы М5 Урал . Инфраструктура: магазины, аптеки, кафе — всё в шаговой доступности. Для сотрудников: рядом жилой массив и транспортные узлы. Собственная управляющая компания. Огороженная территория. Парковка.Технические характеристики: Площадь блока: 1403.4 м2.Площадь первого этажа 970.7 м2, площадь антресоли 432.7 м2.Есть возможность адаптации под нужны заказчика.4 доковых узла: 2 — для фур, 2 — для малотоннажных и легковых авто.Высота потолков: 10 метров + антресоль 4,5 м.Нагрузка на пол: 6 тонн/м, в зоне мезонина: 1,5 т/м.Выделенная мощность: 25 кВт в каждом блоке.Собственная котельная, магистральный газ, центральные коммуникации.

Читать полностью
    Позвонить Написать
    168 408 000 Р2 181 600 $ или 1 839 400
    Агент
    +7 (938) 656-74-88
    Начать чат с агентом
    Похожие предложения в Люберцах
    Производственное помещение в Московская область, Люберцы ... - Фото 1
    Производственное помещение в Московская область, Люберцы ... - Фото 2
    974713-wi . Современный складской комплекс на территории индустриального парка Завод , Люберцы. Центр крупной промышленной зоны. 6 минут пешком до станции МЦД-3 Панки , 10 минут до станции Люберцы . Развитая транспортная логистика: 8 км от МКАД (20...
    • 1/1 эт.
    168 528 000 Р
    Агент
    +7 (938) Показать номер
    Посмотреть контакты
    Производственное помещение в Московская область, Люберцы ... - Фото 1
    Производственное помещение в Московская область, Люберцы ... - Фото 2
    974725-wi . Современный складской комплекс на территории индустриального парка Завод , Люберцы. Центр крупной промышленной зоны. 6 минут пешком до станции МЦД-3 Панки , 10 минут до станции Люберцы . Развитая транспортная логистика: 8 км от МКАД (20...
    • 1/1 эт.
    178 176 000 Р
    Агент
    +7 (938) Показать номер
    Посмотреть контакты
    Производственное помещение в Московская область, Люберцы ... - Фото 1
    Производственное помещение в Московская область, Люберцы ... - Фото 2
    974738-wi . Современный складской комплекс на территории индустриального парка Завод , Люберцы. Центр крупной промышленной зоны. 6 минут пешком до станции МЦД-3 Панки , 10 минут до станции Люберцы . Развитая транспортная логистика: 8 км от МКАД (20...
    • 1/1 эт.
    174 108 000 Р
    Агент
    +7 (938) Показать номер
    Посмотреть контакты
    Продажа производственного помещения, Люберцы, Люберецкий район, ул. ... - Фото 1
    Продажа производственного помещения, Люберцы, Люберецкий район, ул. ... - Фото 2
    Продажа производственного помещения, Люберцы, Люберецкий район, ул. ... - Фото 3
    Продажа производственного помещения, Люберцы, Люберецкий район, ул. ... - Фото 4
    Продажа производственного помещения, Люберцы, Люберецкий район, ул. ... - Фото 5
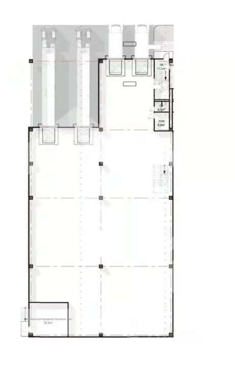
    общая площадь 1404.4м², полезная площадь 1404.4м²

    Арт. Современный складской комплекс на территории индустриального парка «Завод», Люберцы. Центр крупной промышленной зоны. 6 минут пешком до станции МЦД-3 «Панки», 10 минут до станции «Люберцы». Развитая транспортная логистика: 8 км от МКАД (20 минут...
    • 1 404.4 м²
    • 1-й эт.
    168 528 000 Р
    PRO
    +7 (495) Показать номер
    Агентство
    ИП Захарова
    Посмотреть контакты
    Производственное помещение в Московская область, Люберцы ... - Фото 1
    Производственное помещение в Московская область, Люберцы ... - Фото 2
    974725-wi . Современный складской комплекс на территории индустриального парка Завод , Люберцы. Центр крупной промышленной зоны. 6 минут пешком до станции МЦД-3 Панки , 10 минут до станции Люберцы . Развитая транспортная логистика: 8 км от МКАД (20...
    • 1/1 эт.
    178 176 000 Р
    Агент
    +7 (938) Показать номер
    Посмотреть контакты

    Не нашли подходящего объявления?

    Оставьте заявку, и наши риэлторы подберут производственное помещение в районе Люберец

    (0)