11 500 000 Р 151 600 $ или 128 800

Информация о квартире

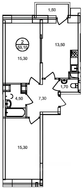
56.4 м2
Площадь
35 м2
Жилая
15 м2
Кухня
2
Комнаты
10
Этаж
18
Этажность
2018
Построен

Состояние и оснащение

Наличие балкона
лоджия
Вид из окон
во двор
Ремонт
евроремонт
Покрытие пола
ламинат
Мебель
современная
Количество санузлов
1
Тип санузла
раздельный
Лифт
есть
Парковка
есть
Мусоропровод
есть

Дополнительная информация

Тип дома
монолитно-кирпичный
Лифт
пассажирский и грузовой
Наличие парковки
гараж
Тип продажи
свободная
Собственников
1

Оснащённость

Телевизор
нет
Наличие интернета
подключен
Телефон
отсутствует
Консьерж
есть

Территория

Парковая зона
есть
Детская площадка
есть
Развернуть
Агент
Диана
+7 (939) 518-32-65
Начать чат с агентом

Продам 2-комн. квартиру 56.4 кв.м.

Продается 2-комн. квартира, площадью 56.4 кв. м.
Жилая площадь 35 кв. м, кухня 15 кв. м, внутри евро ремонт, комнаты изолированные, интернет. Раздельных санузлов - 1, совмещенных санузлов - нет.
На полу ламинат, балконов - нет, лоджий - 1, окна выходят во двор и на улицу.
Квартира располагается на 10 этаже 18-этажного монолитно-кирпичного дома в ЖК Самолет 2018 года постройки, высота потолков 2.7 м. Частично мебелерована. Вся встроенная мебель остается (шкафы, кухня).
Дом оборудован грузовым и пассажирским лифтом, есть мусоропровод, закрытая территория.
Парковка автомобилей - наземная, есть гостевые парковочные места, парковка охраняемая. Обеспечение безопасности: консьерж. Инфраструктура: школа, детский сад, поликлиника, детские площадки, спортивные площадки, места для отдыха, супермаркет.
2 собственника, срок владения более 5 лет. Прямая свободная продажа.

Читать полностью

    Для того, чтобы купить двухкомнатную квартиру по адресу: Люберцы, ул. Камова, 8к1, позвоните по телефону +7 (939) 518-32-65. Торопитесь! Объявление №345535637 о продаже двухкомнатной квартиры опубликовано Сегодня.

    Позвонить Написать
    11 500 000 Р151 600 $ или 128 800
    Агент
    Диана
    +7 (939) 518-32-65
    Начать чат с агентом
    Похожие предложения
    2-к кв. Московская область, Люберцы Зенино ЖК Самолет мкр, ул. Камова, ... - Фото 1
    2-к кв. Московская область, Люберцы Зенино ЖК Самолет мкр, ул. Камова, ... - Фото 2
    2-комнатная квартира, общая площадь 56м², жилая 35м², кухня 15м²

    Продается 2-комн. квартира, площадью 56.4 кв. м. Жилая площадь 35 кв. м, кухня 15 кв. м, внутри евро ремонт, комнаты изолированные, интернет. Раздельных санузлов - 1, совмещенных санузлов - нет. На полу ламинат, балконов - нет, лоджий - 1, окна выходят...
    • 56 м²
    • 2-ком
    • 10/18 эт.
    11 500 000 Р
    Агент
    +7 (980) Показать номер
    Посмотреть контакты
    2-комнатная квартира: Люберцы, микрорайон Зенино ЖК Самолёт, улица ... - Фото 1
    2-комнатная квартира: Люберцы, микрорайон Зенино ЖК Самолёт, улица ... - Фото 2
    2-комнатная квартира, общая площадь 56м², жилая 35м², кухня 15м²

    Продается 2-комн. квартира, площадью 56.4 кв. м. Жилая площадь 35 кв. м, кухня 15 кв. м, внутри евро ремонт, комнаты изолированные, интернет. Раздельных санузлов - 1, совмещенных санузлов - нет. На полу ламинат, балконов - нет, лоджий - 1, окна выходят...
    • 56 м²
    • 2-ком
    • 10/17 эт.
    11 500 000 Р
    Агент
    +7 (932) Показать номер
    Посмотреть контакты
    Квартира, 2 комнаты, 60 м - Фото 1
    2-комнатная квартира, общая площадь 60м², кухня 15м²

    Ждем Вас на просмотр Продаётся уютная, тёплая и светлая двухкомнатная квартира распашонка с качественным ремонтом в ЖК Самолёт Люберцы Ремонт выполнен из качественных и дорогостоящих материалов. Если мы посмотрим из окна, то насладимся спокойным видом...
    • 60 м²
    • 2-ком
    • 4/17 эт.
    12 400 000 Р
    Агент
    +7 (916) Показать номер
    Посмотреть контакты
    2-к кв. Московская область, Люберцы Зенино ЖК Самолет мкр, ул. Камова, ... - Фото 1
    2-к кв. Московская область, Люберцы Зенино ЖК Самолет мкр, ул. Камова, ... - Фото 2
    2-комнатная квартира, общая площадь 41м², жилая 24м², кухня 9м²

    Номер лота: вт-0432587.ЖК Люберцы 2020 . Предлагается к покупке уютная светлая квартира. Кухня-гостиная и спальня. Продумано всё до мелочей, грамотно распланировано пространство. Кухонный гарнитур со встроенной техникой, включая посудомоечную машину....
    • 41 м²
    • 2-ком
    • 9/17 эт.
    • монолит
    12 500 000 Р
    Агент
    +7 (980) Показать номер
    Посмотреть контакты
    2-комнатная квартира: Люберцы, микрорайон Зенино ЖК Самолёт, улица ... - Фото 1
    2-комнатная квартира: Люберцы, микрорайон Зенино ЖК Самолёт, улица ... - Фото 2
    2-комнатная квартира, общая площадь 41м², жилая 24м², кухня 9м²

    Номер лота: вт-0432587.ЖК Люберцы 2020 . Предлагается к покупке уютная светлая квартира. Кухня-гостиная и спальня. Продумано всё до мелочей, грамотно распланировано пространство. Кухонный гарнитур со встроенной техникой, включая посудомоечную машину....
    • 41 м²
    • 2-ком
    • 9/17 эт.
    12 500 000 Р
    Агент
    +7 (966) Показать номер
    Посмотреть контакты

    Не нашли подходящего объявления?

    Оставьте заявку, и наши риэлторы подберут квартиру в районе Люберец

    (0)