6 900 000 Р 91 360 $ или 78 160

Информация о квартире

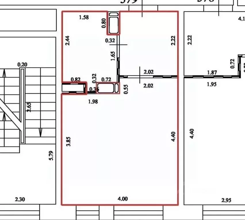
30 м2
Площадь
7 м2
Кухня
1
Комната
5
Этаж
5
Этажность

Дополнительная информация

Тип дома
кирпичный
Развернуть
Агент
+7 (933) 936-84-72
Начать чат с агентом

1-к кв. Московская область, Люберцы Красногорская ул., 21к3 (30.4 м)

Александр. Предлагается к продаже 1-комнатная квартира в центре города Люберцы. Адрес: Московская область, г. Люберцы, ул. Красногорская, дом 21, корпус 3Кирпичный дом 1963 года постройки. Дом после капитального ремонта, в подъезде сухо.Общая площадь квартиры: 30.4 кв.м., 5/5 этаж. Балкона нет.Тёплая, уютная квартира в хорошем состоянии. Большая жилая комната и среднего размера кухня. Полы в хорошем состоянии, натяжной потолок.Придомовая территория у дома с парковочными местами для автомобиля, вблизи дома всегда есть парковочное место. Рядом с домом школы, детские сады, торговые центры, магазины, рестораны, МЦД-3 станция Люберцы. До станции - 14 минут пешком. Удобный и быстрый выезд и заезд на МКАД.В квартире два собственника. Готовы быстро выйти на сделку.Более подробная информация и просмотр, по телефону. Звоните

Читать полностью

    Для того, чтобы купить однокомнатную квартиру по адресу: Люберцы, ул. Красногорская, 21к3, позвоните по телефону +7 (933) 936-84-72. Торопитесь! Объявление №30095075488 о продаже однокомнатной квартиры опубликовано 20 апреля 2026.

    Позвонить Написать
    6 900 000 Р91 360 $ или 78 160
    Агент
    +7 (933) 936-84-72
    Начать чат с агентом
    Похожие предложения
    Квартира, 1 комната, 30.4 м - Фото 1
    1-комнатная квартира, общая площадь 30м², кухня 7м²

    Александр. Предлагается к продаже 1-комнатная квартира в центре города Люберцы. Адрес: Московская область, г. Люберцы, ул. Красногорская, дом 21, корпус 3Кирпичный дом 1963 года постройки. Дом после капитального ремонта, в подъезде сухо.Общая площадь...
    • 30 м²
    • 1-ком
    • 5/5 эт.
    • кирпичный
    6 900 000 Р
    Агент
    +7 (933) Показать номер
    Посмотреть контакты
    Студия Московская область, Люберцы ул. Солнечная, 2 (26.0 м) - Фото 1
    Студия Московская область, Люберцы ул. Солнечная, 2 (26.0 м) - Фото 2
    студия, общая площадь 26м²

    Продается шикарная Студия с дизайнерским ремонтом стиле NeoClassical styleУДОБНО можно въехать и жить без вложений взять с собой только личные вещиКоммунальные услуги 4000 в месяц включая воду и светНалог в год 5000 за апартаментСтудия идеально расположена...
    • 26 м²
    • студия-ком
    • 2/11 эт.
    6 950 000 Р
    Агент
    +7 (985) Показать номер
    Посмотреть контакты
    Студия Московская область, Люберцы ул. Солнечная, 6 (25.5 м) - Фото 1
    Студия Московская область, Люберцы ул. Солнечная, 6 (25.5 м) - Фото 2
    студия, общая площадь 25м², жилая 15м², кухня 3м²

    Арт.Квартира-студия в ЖК Облака 2.0 — ключи на руках, свободная продажа.Продаю студию в современном монолитном доме комфорт-класса. Право собственности оформлено, ключи получены — можно начинать ремонт хоть завтра. Не ДДУ, не переуступка.О КВАРТИРЕ...
    • 25 м²
    • студия-ком
    • 12/25 эт.
    • монолит
    6 950 000 Р
    Агент
    +7 (985) Показать номер
    Посмотреть контакты
    Продается 1-комнатная квартира - Фото 1
    Продается 1-комнатная квартира - Фото 2
    1-комнатная квартира, общая площадь 30м², жилая 20м², кухня 6м²

    Арт.Продается отличная однокомнатная квартира Квартира уютная и светлая, окна выходят во двор. Функциональная кухня. Балкон. Санузел совмещен. Квартира продается с мебелью и техникой. Чистый подъезд. Интеллигентные соседи. Дом в хорошем состоянии, регулярно...
    • 30 м²
    • 1-ком
    • 4/5 эт.
    6 990 000 Р
    Агент
    +7 (903) Показать номер
    Посмотреть контакты
    Квартира, студия, 26 м - Фото 1
    студия, общая площадь 26м²

    Продается шикарная Студия с дизайнерским ремонтом стиле NeoClassical styleУДОБНО можно въехать и жить без вложений взять с собой только личные вещиКоммунальные услуги 4000 в месяц включая воду и светНалог в год 5000 за апартаментСтудия идеально расположена...
    • 26 м²
    • студия-ком
    • 2/11 эт.
    6 950 000 Р
    Агент
    +7 (985) Показать номер
    Посмотреть контакты

    Не нашли подходящего объявления?

    Оставьте заявку, и наши риэлторы подберут квартиру в районе Люберец

    (0)