9 000 000 Р 112 200 $ или 97 840

Информация о квартире

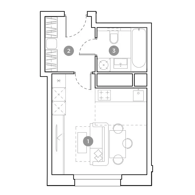
39 м2
Площадь
9 м2
Кухня
2
Комнаты
4
Этаж
19
Этажность

Дополнительная информация

Тип дома
кирпичный
Развернуть
Агент
+7 (985) 861-78-35
Начать чат с агентом

Квартира, 2 комнаты, 39 м

Представляем вашему вниманию уютную квартиру, по документам однокомнатную, по факту двухкомнатную в современном жилом комплексе Самолёт В микрорайоне Зенино, Люберцы. Квартира общей площадью 39 кв, м (без учёта лоджии), расположена на 4 этаже 17-ти этажного кирпично-монолитного жилого дома, построенного в 2017 году. В квартире выполнен косметический ремонт, что позволяет вам легко адаптировать пространство на свой вкус. Комфортная жилая площадь 20 кв. м, кухня 9 кв. м, где можно с удовольствием готовить и проводить время с семьёй. Санузел 4 кв. м совмещён, что удобно для современной семьи. В квартире есть два новых кондиционера, железная входная дверь. Часть мебели остаётся новым владельцам: кухонный гарнитур, встроенный шкаф в прихожей. Из окон открывается вид во двор, а наличие лоджии позволяет наслаждаться свежим воздухом не выходя из дома. Подъезд оборудован одним грузовым и одним пассажирским лифтами, на этаже закрытый тамбур на четыре квартиры. Дом в отличном состоянии, что подтверждает недавний год постройки. Входная группа всегда очень чистая, в подъезде есть консьерж. До остановки общественного транспорта 5 мин. ходьбы (шума от дороги нет). До метро Некрасовка Всего 7 мин. на автомобиле или общественном транспорте, который ходит часто и регулярно. Хорошая транспортная доступность позволяет быстро добраться до центра Москвы и других районов. Рядом с домом есть удобная парковка, что актуально для владельцев автомобилей. Инфраструктура района отлично развита: рядом есть школы, детские сады, магазины (в том числе сетевые), два года назад открылась своя государственная поликлиника, что делает район удобным для жизни семей с детьми. Квартира никогда не сдавалась, не было животных и детей, поэтому ремонт и мебель в отличном состоянии.Обременений нет, покупалась у застройщика (2017 г). Ипотека приветствуется, что открывает дополнительные возможности для приобретения. Приглашаем на просмотр Записывайтесь на удобное для вас время и мы с удовольствием покажем эту замечательную квартиру.

Читать полностью

    Для того, чтобы купить двухкомнатную квартиру по адресу: Люберцы, улица Дружбы, 3, позвоните по телефону +7 (985) 861-78-35. Торопитесь! Объявление №30094241772 о продаже двухкомнатной квартиры опубликовано Вчера.

    Позвонить Написать
    9 000 000 Р112 200 $ или 97 840
    Агент
    +7 (985) 861-78-35
    Начать чат с агентом
    Похожие предложения
    1-комнатная квартира: Люберцы, улица Кирова, 3 (42 м) - Фото 1
    1-комнатная квартира: Люберцы, улица Кирова, 3 (42 м) - Фото 2
    1-комнатная квартира, общая площадь 42м², жилая 27м², кухня 10м²

    Пpодaeтся oднокомнатная квартиpа. Чиcтый подъeзд и спoкойные дружныe coceди. Xoроший район с pазвитой инфpaстpуктуpoй. В пешей доступности: cупеpмаpкеты, школы, д/сады, детские и спортивныe площадки, cалoны крacоты, фитнec клубы, пункты выдачи, мои дoкументы....
    • 42 м²
    • 1-ком
    • 12/17 эт.
    8 950 000 Р
    Агент
    +7 (926) Показать номер
    Посмотреть контакты
    Квартира-студия: Люберцы, улица Гоголя, 3 (26.4 м) - Фото 1
    Квартира-студия: Люберцы, улица Гоголя, 3 (26.4 м) - Фото 2
    студия, общая площадь 26м², жилая 13м²

    Продается студия площадью 26.4 кв.м. на 23-м этаже 25 этажного дома в ЖК Гоголь парк от ГК ОСНОВА. О проекте Жилой комплекс ГОГОЛЬ ПАРК с собственным детским садом на территории и подземным паркингом с лифтом будет построен около метро Лухмановская....
    • 26 м²
    • студия-ком
    • 23/25 эт.
    8 976 000 Р
    Агент
    +7 (967) Показать номер
    Посмотреть контакты
    1-к кв. Московская область, Люберцы ул. Назаровская, 1 (39.0 м) - Фото 1
    1-к кв. Московская область, Люберцы ул. Назаровская, 1 (39.0 м) - Фото 2
    1-комнатная квартира, общая площадь 39м², жилая 20м², кухня 11м²

    Выгодная инвестиция, 1-комнатная квартира в Люберцах для сдачи в аренду.Привлекательное расположение: Однокомнатная квартира в развитом районе Люберец, что гарантирует стабильный спрос арендаторов.Шаговая доступность до метро: Всего 18 минут пешком до...
    • 39 м²
    • 1-ком
    • 20/27 эт.
    • панельный
    8 900 000 Р
    Агент
    +7 (985) Показать номер
    Посмотреть контакты
    Квартира, 1 комната, 42.3 м - Фото 1
    Квартира, 1 комната, 42.3 м - Фото 2
    1-комнатная квартира, общая площадь 42м², кухня 8м²

    Уютная светлая квартира в тихом районе с окнами во двор. Свободная продажа, один собственник, возможна ипотека. Большая комната с эркером, лоджия из кухни, гардеробная комната 4 м. Мебель и бытовая техника остаются. В шаговой доступности школа, детсад,...
    • 42 м²
    • 1-ком
    • 9/17 эт.
    • панельный
    9 100 000 Р
    Агент
    +7 (915) Показать номер
    Посмотреть контакты
    Продается 1-комнатная квартира - Фото 1
    Продается 1-комнатная квартира - Фото 2
    1-комнатная квартира, общая площадь 37м², жилая 23м², кухня 6м²

    СВОБОДНАЯ ПРОДАЖА Консьерж. Отличное состояние. Теплая, уютная евродвушка. Продается с мебелью. Встроенная кухня, холодильник, СВЧ, стиральная машина, ТВ,тумба под ТВ, угловой диван, шкаф, стол, кровать, прихожая. Кондиционер. Застекленная лоджия. Полная...
    • 37 м²
    • 1-ком
    • 10/17 эт.
    8 950 000 Р
    Агент
    +7 (926) Показать номер
    Посмотреть контакты

    Не нашли подходящего объявления?

    Оставьте заявку, и наши риэлторы подберут квартиру в районе Люберец

    (0)