Россия, Подмосковье, Лыткарино, Детский городок ЗИЛ тер., 61
238 124 000 Р 3 152 800 $ или 2 697 300

Информация об помещении

1
Этаж

Состояние и оснащение

Количество этажей
2
Развернуть
Агент
+7 (938) 656-74-88
Начать чат с агентом

Помещение свободного назначения в Московская область, Лыткарино ...

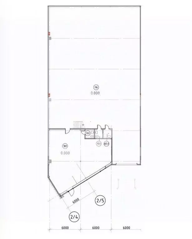
728863. Предлагается производственно - складской комплекс класса А общей площадью 2018 кв. м. в Лыткарино. 1, 2 этаж. Преимущества: Выезд на Новорязанское шоссе, 25 минут от МКАД.Напротив жилой массив с развитой инфраструктурой. Сложившееся промышленное окружение.Ворота 3,5х4,5 с электроприводом. Бетонный пол с антипылевым покрытием. Стены обшиты сэндвич-панелями толщиной 120 мм. Утепленная кровля 150 мм минватой с ПВХ мембраной и внутренним водостоком. Перекрытия из металлических ферм толщиной 18 мм. ЖБ колонны с металлоконструкциями. Возможно деление на блоки. Закрытая территория. Рядом остановки общественного транспорта. Ввод в эксплуатацию в апреле 2026 г.Технические характеристики:Площадь блока: 2018 кв. м.Нагрузка на пол: 7,5 т/кв.м.Высота потолков: 9 м.Электрическая мощность: 120 кВт.

Читать полностью
    Позвонить Написать
    238 124 000 Р3 152 800 $ или 2 697 300
    Агент
    +7 (938) 656-74-88
    Начать чат с агентом
    Похожие предложения
    Помещение свободного назначения в Московская область, Химки ул. ... - Фото 1
    Помещение свободного назначения в Московская область, Химки ул. ... - Фото 2
    Лот 889278 Предложение от Собственника Предлагается на продажу помещение под офис площадью 1178.00 м2. Помещение расположено у г Химки. 7 этаж. Система кондиционирования. Пропускная система. Есть круглосуточный доступ. Планировка - открытая. Есть лифт....
    • 7/22 эт.
    247 000 000 Р
    Агент
    +7 (986) Показать номер
    Посмотреть контакты
    Помещение свободного назначения в Московская область, Ленинский ... - Фото 1
    Помещение свободного назначения в Московская область, Ленинский ... - Фото 2
    1000621. Предлагается складское помещение общей площадью 1 426.52 кв. м. в индустриальном парке Титан Ленинский. Блок A. Боксы 6 и 7.Преимущества:1 км от трассы М-4 и рядом с г. Видное.5 мин. на автобусе до пл. Расторгуево, 10 км от МКАД, 30 км от ЦКАД.Готовая...
    • 1/2 эт.
    234 662 425 Р
    Агент
    +7 (938) Показать номер
    Посмотреть контакты
    Помещение свободного назначения в Московская область, Домодедово ... - Фото 1
    Помещение свободного назначения в Московская область, Домодедово ... - Фото 2
    1134609. Предлагается склад общей площадью 2 160 кв. м в Домодедово. 1 этаж + антресоль ОСЗ. Преимущества: Парк расположен в черте города. Возможность эффективно выстроить логистику и поиск трудовых ресурсов для ведения бизнеса.Два независимых КПП.Прямой...
    • 1/2 эт.
    237 600 000 Р
    Агент
    +7 (938) Показать номер
    Посмотреть контакты
    Помещение свободного назначения в Московская область, Талдомский ... - Фото 1
    Помещение свободного назначения в Московская область, Талдомский ... - Фото 2
    1100190. Предлагается просторная сельско-хозяйственная ферма общей площадью 8 185 кв. м. в д. Кутачи.Преимущества:Удобная траyспортная доступность: 10 км до Дмитровского шоссе и ж/д остановки, 68 км до ЦКАД.Комплекс строений расположен на двух больший...
    • 1/1 эт.
    250 000 000 Р
    Агент
    +7 (938) Показать номер
    Посмотреть контакты
    Помещение свободного назначения в Московская область, Химки Юбилейный ... - Фото 1
    Помещение свободного назначения в Московская область, Химки Юбилейный ... - Фото 2
    1058129. Предлагаем отдельно стоящее административное здание с надёжными арендаторами Fix Price , ресторан Река море , Винлаб и кальянная, площадью 762.3 кв. м. Без комиссии для покупателя.Преимущества объекта:-первая линия Юбилейного проспекта;-8...
    • 1/3 эт.
    230 000 000 Р
    Агент
    +7 (938) Показать номер
    Посмотреть контакты

    Не нашли подходящего объявления?

    Оставьте заявку, и наши риэлторы подберут псн в районе Лыткарино

    (0)