Россия, Подмосковье, Луховицкий район, Беляево, коттеджный посёлок Беляевская Слобода

Реализация объекта недвижимости приостановлена

Информация о коттедже

210.0 м2
Площадь
3
Этажность
30.0 cоток
Участок
Развернуть

Коттедж в Московская область, Чехов муниципальный округ, д. Беляево, ...

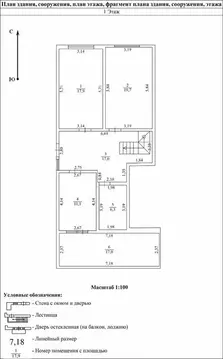
Сдается уютный дом 210 м, 2018 года постройки, материал стен керамзитобетон. Дом полностью готов к проживанию, есть все необходимое для комфортной жизни: бытовая техника, постельное белье, посуда. В доме городские удобства, собственная котельная, магистральный газ, теплые полы. Участок 30 соток с обустроенной зоной барбекю в охраняемом коттеджном поселке Беляевская Слобода , д. Беляево Чеховского района, 60 км от МКАД. На первом этаже располагаются гостиная-столовая, кухня, бойлерная, раздельный санузел с душевой, спальня с двухспальной кроватью и гардеробной комнатой. На втором этаже спальня с большой кроватью, кабинет с диваном и мансардными окнами, две детские комнаты для разновозрастных детей, 2 санузла, один с ванной, прачечная. На мансардном этаже: комната отдыха с диваном, санузел, гардеробная. За участком протекает речка Никажель, где можно порыбачить, рядом с поселком есть озеро, школа верховой езды, магазин. Срок аренды желательно от года, но на меньший срок тоже рассмотрят, минимум от 4х месяцев, всё обсуждается. Строго без животных. Звоните.

Читать полностью

    Реализация объекта недвижимости приостановлена

    Не нашли подходящего объявления?

    Оставьте заявку, и наши риэлторы подберут снять дом в районе Беляево

    (0)