200 000 Р 2 480 $ или 2 120

Информация об помещении

1
Этаж

Состояние и оснащение

Количество этажей
2
Развернуть
Агент
+7 (919) 726-89-46
Начать чат с агентом

Помещение свободного назначения в Московская область, Лотошино пгт ул. ...

Сдаются помещения в Торговом центре в Лотошино. Помещения с отдельным входом, хороший ремонт, все коммуникации, мощность по запросу. На первом этаже оборудованные помещения под общепит и торговлю, на втором этаже помещения от 20 до 200 кв.м. Зальная планировка, рекламный потенциал. Прямая аренда от собственника, в ставку включен НДС. Оперативный показ.

Читать полностью
    Позвонить Написать
    200 000 Р2 480 $ или 2 120
    Агент
    +7 (919) 726-89-46
    Начать чат с агентом
    Похожие предложения
    Помещение свободного назначения в Московская область, Химки Юбилейный ... - Фото 1
    Помещение свободного назначения в Московская область, Химки Юбилейный ... - Фото 2
    Вашему вниманию предлагается удобное помещение на 1-ом этаже известного здания бизнес-центра в г. Химки, на Юбилейном проспекте д.73.В ЗДАНИИ РАСПОЛОЖЕН КРУПНЫЙ МЕДИЦИНСКИЙ ЦЕНТР и отделение СБЕРБАНКА, обеспечивающие высокую проходимость.Также, в здании...
    • 1/7 эт.
    200 000 Р
    Агент
    +7 (994) Показать номер
    Посмотреть контакты
    Помещение свободного назначения в Московская область, Жуковский ул. ... - Фото 1
    Помещение свободного назначения в Московская область, Жуковский ул. ... - Фото 2
    Арт.. Прямая аренда от собственника, цоколь. отдельный вход 250 м . высота потолка 3 м, со своим грузовым лифтом, место под разгрузку, доступ курглосуточный, подходит склад, даркстор, требует ремонта на что дадим каникул. электро мощность 25 кВт. Центр...
    • -1/1 эт.
    200 000 Р
    Агент
    +7 (985) Показать номер
    Посмотреть контакты
    Помещение свободного назначения в Московская область, Наро-Фоминский ... - Фото 1
    Помещение свободного назначения в Московская область, Наро-Фоминский ... - Фото 2
    ВАШЕМУ ВНИМАНИЮ ПРЕДСТАВЛЯЕТСЯ ЧАСТЬ ПОМЕЩЕНИЯ СВОБОДНОГО НАЗНАЧЕНИЯ В АРЕНДУ В Д. ВОЛЧЕНКИ НАРО-ФОМИНСКОГО РАЙОНА Возможность частичной аренды.Характеристики объекта:Одноэтажное отдельно стоящее здание;Общая площадь - 1400 кв.м;Личный сан/узел;Высота...
    • 1/1 эт.
    203 000 Р
    Агент
    +7 (933) Показать номер
    Посмотреть контакты
    Помещение свободного назначения в Московская область, Люберцы ... - Фото 1
    Помещение свободного назначения в Московская область, Люберцы ... - Фото 2
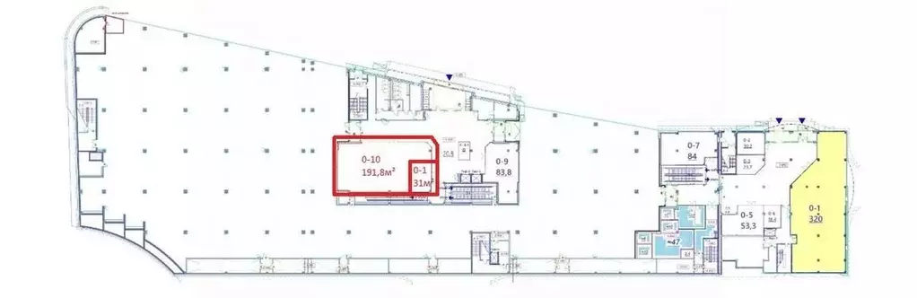
    Номер лота: 13037 ТЦ МОЙ МОЛ Россия, Московская область, городской округ Люберцы, деревня Островцы, Подмосковная улица, Шоссе: Рязанское Общая площадь: 191.80 м.кв. АРЕНДА ОТ СОБСТВЕННИКА ТОРГОВОГО ПОМЕЩЕНИЯ В СОВРЕМЕННОМ ТОРГОВОМ ЦЕНТРЕ...
    • 1/3 эт.
    191 800 Р
    Агент
    +7 (985) Показать номер
    Посмотреть контакты
    Помещение свободного назначения в Московская область, Серпухов ... - Фото 1
    Помещение свободного назначения в Московская область, Серпухов ... - Фото 2
    Сдается в аренду нежилое помещение 401.3 м2 в г. Серпухов, ул. Весенняя, д. 59. Расположено на цокольном этаже (весь этаж), 4 этажного реконструированного жилого дома.Помещение сдается под любой вид бизнеса. В настоящее время оборудовано под общепит....
    • -1/4 эт.
    200 000 Р
    Агент
    +7 (994) Показать номер
    Посмотреть контакты

    Не нашли подходящего объявления?

    Оставьте заявку, и наши риэлторы подберут псн в районе Лотошино

    (0)