50 008 537 Р 634 700 $ или 543 800

Информация об помещении

1
Этаж

Состояние и оснащение

Количество этажей
1
Развернуть
Агент
+7 (915) 030-49-16
Начать чат с агентом

Склад в Московская область, Лобня ул. Комиссара Агапова, 15 (28935 м)

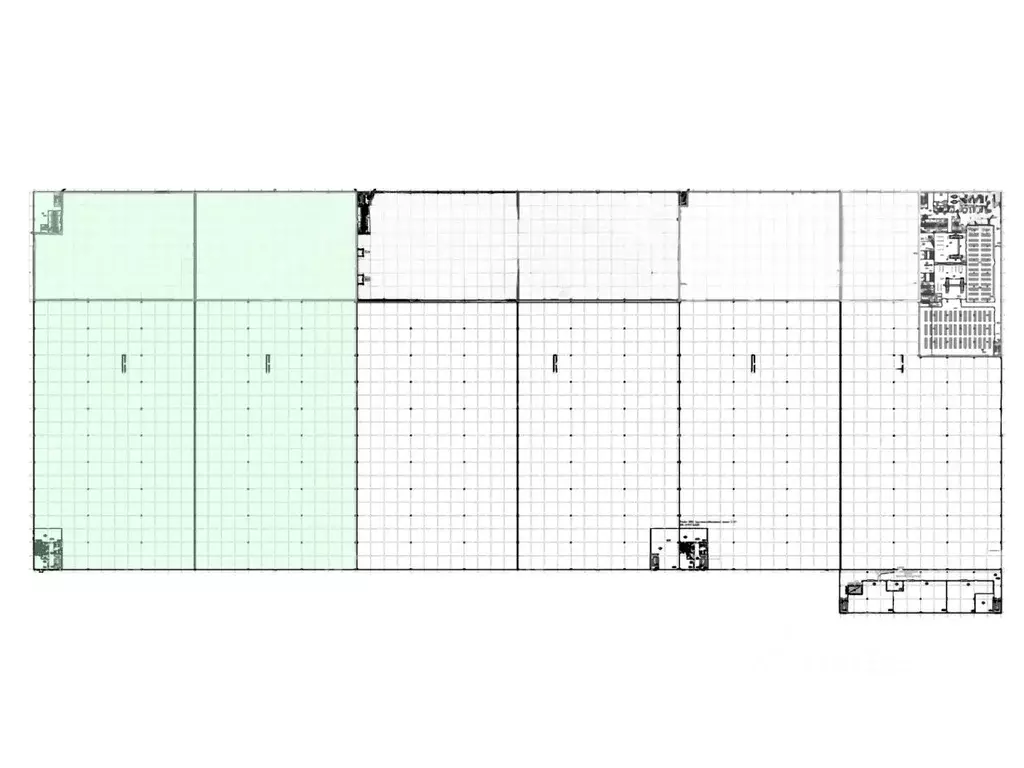
Отапливаемый склад в аренду от собственника без комиссии. Класс A+. Объявление актуально. Охраняемая территория. 14 км от МКАД. Никаких скрытых платежей. Открыты к диалогу по условиям аренды. >ID объекта 2614. Добавьте в избранное, чтобы не потерять 14 км от МКАД по Дмитровскому шоссеПарковка для грузового и легкового транспортаТехнические характеристики:Нагрузка на пол: 8 т/кв. мКоличество ворот: 35 шт. (Докового типа, Кросс док) (с возможностью увеличения)Температурный режим: Отапливаемый складМощность: 2 500 кВт (на блок)Высота потолка: 12 мПол: Бетон-АнтипыльСтроится1 этап - готов к аренде2 этап - доступ с 01.09.2026 (блок 3 и блок 4)Оптоволоконные коммуникации связиПропускная системаОхранная и пожарная сигнализацииКоммерческие условия:Арендная ставка:/кв. м/год с НДСЭксплуатационные расходы: ВключеныВарианты реализации:Аренда блока площадью 2 900 кв. м ( блока 4):Склад: 2 521 кв. мОфис: 192 кв. мМезонин: 225.5 кв. мКоличество ворот: 7 доковСтроится, доступ с 01.09.2026Коммерческие условия:Арендная ставка:/кв. м/год с НДСЭксплуатационные расходы: ВключеныАренда блока площадью 5 424.6 кв. м ( блока 2):Склад: 4 591.1 кв. мОфис: 377.1 кв. мМезонин: 456.4 кв. мКоличество ворот: 7 доковГотов к арендеКоммерческие условия:Арендная ставка:/кв. м/год с НДСЭксплуатационные расходы: ВключеныАренда блока площадью 11 301.6 кв. м ( блока 2 и блока 3):Склад: 9 633.1 кв. мОфис: 761.1 кв. м Мезонин: 907.4 кв. мКоличество ворот: 14 доков1 этап - готов к аренде2 этап - доступ с 01.09.2026 (блок 3)Коммерческие условия:Арендная ставка:/кв. м/год с НДСЭксплуатационные расходы: ВключеныАренда блока площадью 17 179.6 кв. м ( блока 2 и блок 3):Склад: 14 675.1 кв. мОфис: 1 145.1 кв. мМезонин: 1 358.4 кв. мКоличество ворот: 21 доков1 этап - готов к аренде2 этап - доступ с 01.09.2026 (блок 3)Коммерческие условия:Арендная ставка:/кв. м/год с НДСЭксплуатационные расходы: ВключеныАренда блока площадью 23 056.6 кв. м ( блока 2, блок 3 и блока 4):Склад: 19 717.1 кв. мОфис: 1 529.1 кв. м Мезонин: 1 809.4 кв. мКоличество ворот: 28 доковСтроится1 этап - готов к аренде2 этап - доступ с 01.09.2026 (блок 3 и блок 4)Коммерческие условия:Арендная ставка:/кв. м/год с НДСЭксплуатационные расходы: ВключеныАренда блока площадью 28 934.6 кв. м ( блока 2, блок 3 и блок 4):Склад: 24 759.1 кв. мОфис: 1 913.1 кв. мМезонин: 2 260.4 кв. мКоличество ворот: 35 доковСтроится1 этап - готов к аренде2 этап - доступ с 01.09.2026 (блок 3 и блок 4)Коммерческие условия:Арендная ставка:/кв. м/год с НДСЭксплуатационные расходы: Включены

Читать полностью
    Позвонить Написать
    50 008 537 Р634 700 $ или 543 800
    Агент
    +7 (915) 030-49-16
    Начать чат с агентом
    Похожие предложения
    Склад в Московская область, Лобня ул. Комиссара Агапова, 15 (28935 м) - Фото 1
    Склад в Московская область, Лобня ул. Комиссара Агапова, 15 (28935 м) - Фото 2
    Отапливаемый склад в аренду от собственника без комиссии. Класс A+. Объявление актуально. Охраняемая территория. 14 км от МКАД. Никаких скрытых платежей. Открыты к диалогу по условиям аренды. ID объекта 3195. Добавьте в избранное, чтобы не потерять ...
    • 1/1 эт.
    50 008 537 Р
    Агент
    +7 (982) Показать номер
    Посмотреть контакты
    Склад в Московская область, Богородский городской округ, Обухово пгт, ... - Фото 1
    Склад в Московская область, Богородский городской округ, Обухово пгт, ... - Фото 2
    Складское помещение 38 804 кв. м в А2 Обухово .Направление: Восток. Шоссе: Горьковское. Расстояние от МКАД: 29 км. Характеристики:- Класс: A; - Ворота: Доки; - Тип склада: Сухой склад; - Высота потолков: 12 м, 13 м; - Нагрузка на пол: 8 т/ кв.м; - Система...
    • 1/1 эт.
    50 445 200 Р
    Агент
    +7 (915) Показать номер
    Посмотреть контакты
    Склад в Московская область, Раменский муниципальный округ, ... - Фото 1
    Склад в Московская область, Раменский муниципальный округ, ... - Фото 2
    Отапливаемый склад в аренду от собственника без комиссии. Класс A. Объявление актуально. Охраняемая территория. 26.8 км от МКАД. Никаких скрытых платежей. Открыты к диалогу по условиям аренды. ID объекта 2102. Добавьте в избранное, чтобы не потерять...
    • 1/1 эт.
    49 922 400 Р
    Агент
    +7 (982) Показать номер
    Посмотреть контакты
    Склад в Московская область, Наро-Фоминский городской округ, д. Свитино ... - Фото 1
    Склад в Московская область, Наро-Фоминский городской округ, д. Свитино ... - Фото 2
    Складское помещение 32 346.3 кв. м в Меридиан Свитино .Направление: Юго-Запад. Шоссе: Киевское. Расстояние от МКАД: 35 км. Характеристики:- Класс: A; - Ворота: Ворота, Доки; - Тип склада: Сухой склад; - Высота потолков: 14.5 м; - Нагрузка на пол: 8...
    • 1/1 эт.
    49 004 600 Р
    Агент
    +7 (915) Показать номер
    Посмотреть контакты
    Склад в Санкт-Петербург Московское ш., 21к2 (150 м) - Фото 1
    Склад в Санкт-Петербург Московское ш., 21к2 (150 м) - Фото 2
    ID: 832149 Здравствуйте, предлагается в субаренду часть складского помещения. Общая площадь склада 270 м2. В субаренду предлагается 150м2. Верхняя часть склада - тент. Отличное решение для Вашего склада:- Закрытая территория под охраной;-...
    • 1/1 эт.
    50 000 000 Р
    Агент
    +7 (981) Показать номер
    Посмотреть контакты

    Не нашли подходящего объявления?

    Оставьте заявку, и наши риэлторы подберут склад в районе Лобни

    (0)