18 500 000 Р 228 000 $ или 198 000

Информация об помещении

1
Этаж

Состояние и оснащение

Количество этажей
17
Развернуть
Агент
+7 (986) 254-08-07
Начать чат с агентом

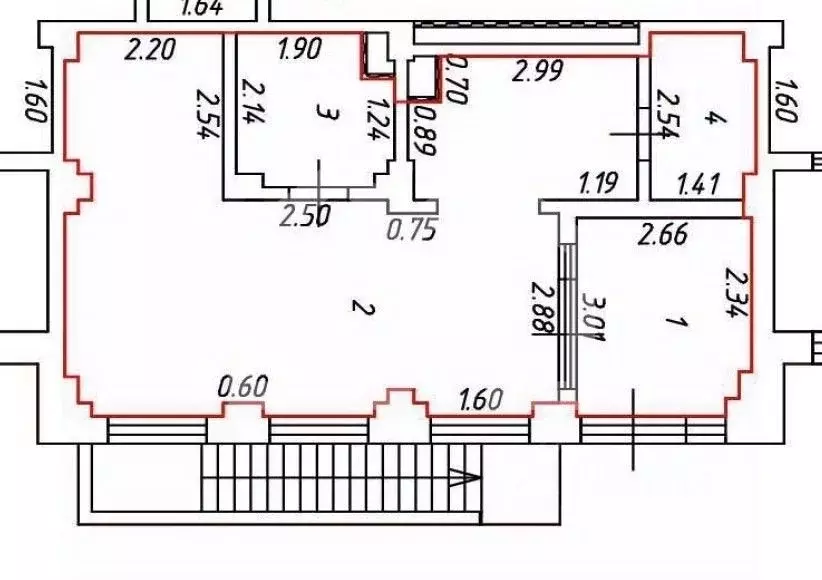
Помещение свободного назначения в Московская область, Лобня ул. ...

Собственность. Более 5 лет. Полная цена в договоре. 2 взрослых собственника. В помещении 2 отдельных входа со двора и с улицы (можно как раз разделить помещение на две части и присвоить отдельные кадастровые) и будет как два полноценных помещения. В помещении 3 санузла. Сделан качественный ремонт, на полу плитка, потолки грильято, стены краска. Выполнена охранно-пожарная сигнализация, вентиляция, есть решётки на окнах. Помещение в аренде. Разумный торг при быстром выходе на сделку готовы обсуджать.

Читать полностью
    Позвонить Написать
    18 500 000 Р228 000 $ или 198 000
    Агент
    +7 (986) 254-08-07
    Начать чат с агентом
    Похожие предложения
    Помещение свободного назначения в Московская область, Одинцовский ... - Фото 1
    Помещение свободного назначения в Московская область, Одинцовский ... - Фото 2
    642785. Предлагаем к приобретению помещение свободного назначения в ЖК Равновесие , площадью 65.5 кв. м., расположенное на первом этаже 6-этажного жилого дома. Корпус: 5. Без комиссии для покупателя.Преимущества объекта: -первая линия;-ЖК состоит из...
    • 1/6 эт.
    19 000 000 Р
    Агент
    +7 (938) Показать номер
    Посмотреть контакты
    Помещение свободного назначения в Московская область, Солнечногорск ... - Фото 1
    Помещение свободного назначения в Московская область, Солнечногорск ... - Фото 2
    751348. Предлагаем к приобретению помещение свободного назначения, площадью 126,2 кв. м., расположенное на первом этаже жилого дома в ЖК Первый Зеленоградский . Корпус 2. Без комиссии для покупателя.Преимущества объекта: -ЖК состоит из 16 корпусов переменной...
    • 1/18 эт.
    18 900 000 Р
    Агент
    +7 (938) Показать номер
    Посмотреть контакты
    Помещение свободного назначения в Московская область, Балашиха ... - Фото 1
    Помещение свободного назначения в Московская область, Балашиха ... - Фото 2
    Продажа нежилого помещения 63.21 кв.м в проекте Квартал Авиаторов в строящемся корпусе 2.
    • 1/17 эт.
    18 606 321 Р
    Агент
    +7 (985) Показать номер
    Посмотреть контакты
    Помещение свободного назначения в Московская область, Люберцы ... - Фото 1
    Помещение свободного назначения в Московская область, Люберцы ... - Фото 2
    Продажа нежилого помещения 110.5 кв.м в проекте Томилино Парк в готовом доме.
    • 1/17 эт.
    19 678 498 Р
    Агент
    +7 (986) Показать номер
    Посмотреть контакты
    Помещение свободного назначения в Московская область, Ленинский ... - Фото 1
    Помещение свободного назначения в Московская область, Ленинский ... - Фото 2
    1111986. Предлагаем помещение свободного назначения с арендатором Шаурма, площадью 53,6 кв. м., расположенное на первом этаже жилого дома в ЖК комфорт-класса Южная Битца . Без комиссии для покупателя.Преимущества объекта:-комплекс состоит из 12 монолитно-панельных...
    • 1/24 эт.
    18 000 000 Р
    Агент
    +7 (938) Показать номер
    Посмотреть контакты

    Не нашли подходящего объявления?

    Оставьте заявку, и наши риэлторы подберут псн в районе Лобни

    (0)