110 000 000 Р 1 423 500 $ или 1 204 900

Информация об помещении

1
Этаж

Состояние и оснащение

Количество этажей
1
Развернуть
Агент
+7 (938) 656-74-88
Начать чат с агентом

Помещение свободного назначения в Московская область, Лобня ул. ...

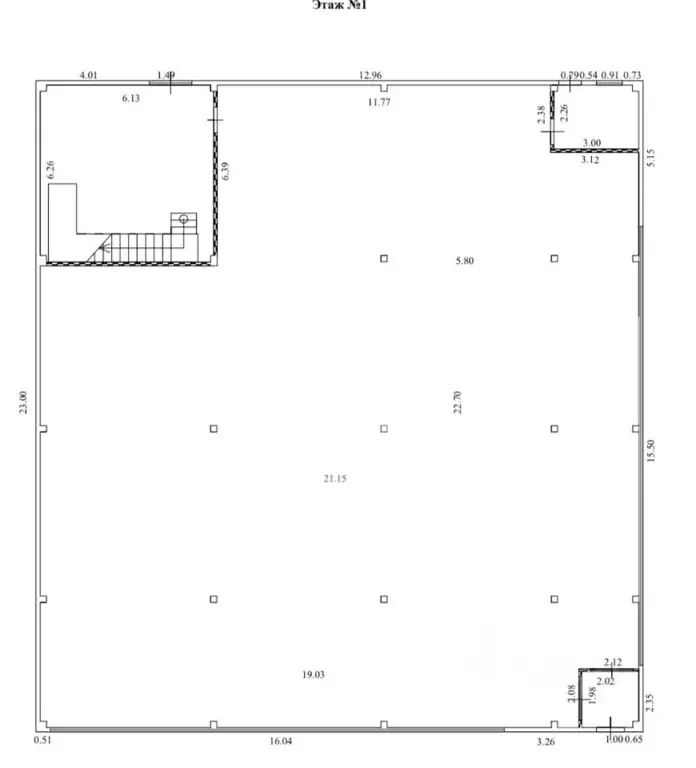
1070447-gab . Предлагаем отдельно стоящее одноэтажное здание с арендаторами супермаркет Пятёрочка , Кофейня , Магазин игрушек , Магазин по продаже овощей , площадью 602,5 кв. м. Без комиссии для покупателя.Преимущества объекта:-5 минут пешком от станции МЦД-1 Лобня;-густонаселенный спальный район;-развитая инфраструктура;-рядом находятся: администрация округа, Лобненский ОВД, оздоровительноспортивный комплекс Южный , школа искусств, школа иностранных языков, почтовое отделение;-активный автомобильный и пешеходный трафик;-объект отлично просматривается, находится в легком доступе для клиентов;-надежные арендаторы;-новое здание, 2025 г. постройки;-открытая планировка;-витринное остекление;-место для вывески;-зона разгрузки/погрузки;-обеспечено коммунальными ресурсами: водоснабжение (ХВС), водоотведение;-наземная парковка;-рядом остановки общественного транспорта.Технические параметры объекта:-несколько входных групп;-электрическая мощность: 150 кВт;-высота потолков: 4,5 м.Информация об арендаторах: -арендаторы: супермаркет Пятёрочка , Кофейня , Магазин игрушек , Магазин по продаже овощей ;-прибыль:/мес.Предложение включает в себя приобретение коммерческого здания (магазина) и земельного участка под ним (с организованными парковочными местами).Свяжитесь с нами для получения дополнительной информации

Читать полностью
    Позвонить Написать
    110 000 000 Р1 423 500 $ или 1 204 900
    Агент
    +7 (938) 656-74-88
    Начать чат с агентом
    Похожие предложения
    Помещение свободного назначения в Московская область, Лобня ул. ... - Фото 1
    Помещение свободного назначения в Московская область, Лобня ул. ... - Фото 2
    1070447-gab . Предлагаем отдельно стоящее одноэтажное здание с арендаторами супермаркет Пятёрочка , Кофейня , Магазин игрушек , Магазин по продаже овощей , площадью 602,5 кв. м. Без комиссии для покупателя.Преимущества объекта:-5 минут пешком от станции...
    • 1/1 эт.
    110 000 000 Р
    Агент
    +7 (938) Показать номер
    Посмотреть контакты
    Помещение свободного назначения в Московская область, Лобня ул. ... - Фото 1
    Помещение свободного назначения в Московская область, Лобня ул. ... - Фото 2
    918922. Предлагается тёплый склад общей площадью 1 300 кв. м. в Лобне.Преимущества:Первая линия.Развитая транспортная доступность: 20 минут пешком от станции МЦД-1 Лобня, выезд на Рогачёвское, Дмитровское шоссе.Развитая инфраструктура.1 этаж.Отопление...
    • 1/1 эт.
    120 000 000 Р
    Агент
    +7 (938) Показать номер
    Посмотреть контакты
    Помещение свободного назначения в Московская область, Лобня ул. ... - Фото 1
    Помещение свободного назначения в Московская область, Лобня ул. ... - Фото 2
    918922-wf . Предлагается тёплый склад общей площадью 1 300 кв. м. в Лобне.Преимущества:Первая линия.Развитая транспортная доступность: 20 минут пешком от станции МЦД-1 Лобня, выезд на Рогачёвское, Дмитровское шоссе.Развитая инфраструктура.1 этаж.Отопление...
    • 1/1 эт.
    120 000 000 Р
    Агент
    +7 (938) Показать номер
    Посмотреть контакты
    Помещение свободного назначения в Московская область, Раменский ... - Фото 1
    Помещение свободного назначения в Московская область, Раменский ... - Фото 2
    994064-gab . Предлагаем отдельно стоящее здание с арендатором Пятёрочка , площадью 607.2 кв. м. Без комиссии для покупателя.Преимущества объекта:-первая линия ул. Школьная;-6 минут на автомобиле от станции МЦД-3 Отдых ;-удобная транспортная доступность:...
    • 1/1 эт.
    100 000 000 Р
    Агент
    +7 (938) Показать номер
    Посмотреть контакты
    Помещение свободного назначения в Московская область, Раменский ... - Фото 1
    Помещение свободного назначения в Московская область, Раменский ... - Фото 2
    829465-gab . Предлагаем отдельно стоящее двухэтажное административное здание с арендатором Чижик , площадью 1000 кв. м. Без комиссии для покупателя.Преимущества объекта:-первая линия;-8 минут на автомобиле от станции МЦД-3 Быково ;-удобная транспортная...
    • 1/2 эт.
    100 000 000 Р
    Агент
    +7 (938) Показать номер
    Посмотреть контакты

    Не нашли подходящего объявления?

    Оставьте заявку, и наши риэлторы подберут псн в районе Лобни

    (0)