120 000 000 Р 1 505 100 $ или 1 301 600

Информация об помещении

1
Этаж

Состояние и оснащение

Количество этажей
1
Развернуть
Агент
+7 (938) 656-74-88
Начать чат с агентом

Производственное помещение в Московская область, Лобня ул. Чкалова, 20 ...

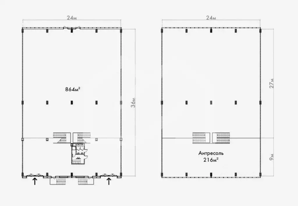
918922. Предлагается тёплый склад общей площадью 1 300 кв. м. в Лобне.Преимущества:Первая линия.Развитая транспортная доступность: 20 минут пешком от станции МЦД-1 Лобня, выезд на Рогачёвское, Дмитровское шоссе.Развитая инфраструктура.1 этаж.Отопление газовое.Мокрая точка заведена.Парковка.Напротив остановка общественного транспорта.Характеристики:Общая площадь: 1 300 кв. м.Электрическая мощность: 150 кВт.Рабочая высота потолков: 6,5 м.Нагрузка на пол: 8 т/м2.Трое ворот под 0.Пол антипыль.Земельный участок: 22 сотки.Так как корректный адрес отсутствует на Яндекс.Картах, введен ближайший.

Читать полностью
    Позвонить Написать
    120 000 000 Р1 505 100 $ или 1 301 600
    Агент
    +7 (938) 656-74-88
    Начать чат с агентом
    Похожие предложения
    Производственное помещение в Московская область, Лобня ул. Чкалова, 20 ... - Фото 1
    Производственное помещение в Московская область, Лобня ул. Чкалова, 20 ... - Фото 2
    918922. Предлагается тёплый склад общей площадью 1 300 кв. м. в Лобне.Преимущества:Первая линия.Развитая транспортная доступность: 20 минут пешком от станции МЦД-1 Лобня, выезд на Рогачёвское, Дмитровское шоссе.Развитая инфраструктура.1 этаж.Отопление...
    • 1/1 эт.
    120 000 000 Р
    Агент
    +7 (938) Показать номер
    Посмотреть контакты
    Производственное помещение в Московская область, Ступино городской ... - Фото 1
    Производственное помещение в Московская область, Ступино городской ... - Фото 2
    Арт.Предложение от собственника Производственно-складское помещение площадью -1 500 м2 Участок промназначения площадью - 0,5 Га.ВРИ - производственная деятельность.Капитальное строение.Коммуникации:-эл. мощности - 150 кВт;-газгольдер;-септик;-скважина.2...
    • 1/1 эт.
    110 000 000 Р
    Агент
    +7 (915) Показать номер
    Посмотреть контакты
    Производственное помещение в Московская область, Домодедово ... - Фото 1
    Производственное помещение в Московская область, Домодедово ... - Фото 2
    1134573. Предлагается склад общей площадью 1 080 кв. м в Домодедово. 1 этаж + антресоль ОСЗ. Преимущества: Парк расположен в черте города. Возможность эффективно выстроить логистику и поиск трудовых ресурсов для ведения бизнеса.Два независимых КПП.Прямой...
    • 1/2 эт.
    118 800 000 Р
    Агент
    +7 (938) Показать номер
    Посмотреть контакты
    Производственное помещение в Московская область, Дмитровский ... - Фото 1
    Производственное помещение в Московская область, Дмитровский ... - Фото 2
    1121237. Предлагается помещение в производственно-складском комплексе Лайт Индастриал общей площадью 855 кв. м. в д. Глазово, Московская область. Очередь 1. Преимущества:Вблизи аэропорта Шереметьево. Развитая транспортная инфраструктура: выезд на ЦКАД,...
    • 1/1 эт.
    111 150 000 Р
    Агент
    +7 (938) Показать номер
    Посмотреть контакты
    Производственное помещение в Московская область, Раменский ... - Фото 1
    Производственное помещение в Московская область, Раменский ... - Фото 2
    1095570. Предлагаем современное производственно-складское здание формата Лайт Индастриал общей площадью 1 498 кв. м, в районе д. Торопово, Раменский МО.Преимущества:Популярное логистическое и производственное направление в Московском регионе.В пешей доступности...
    • 1/1 эт.
    127 330 000 Р
    Агент
    +7 (938) Показать номер
    Посмотреть контакты

    Не нашли подходящего объявления?

    Оставьте заявку, и наши риэлторы подберут производственное помещение в районе Лобни

    (0)