Россия, Подмосковье, Лобня, жилой комплекс -Сити

Реализация объекта недвижимости приостановлена

Информация о квартире

52.0 м2
Площадь
30.0 м2
Жилая
10.0 м2
Кухня
2
Комнаты
10
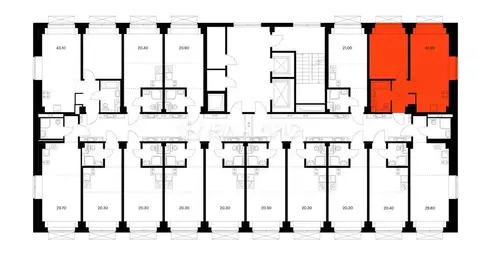
Этаж
17
Этажность
Развернуть

2-комнатная квартира: Лобня, жилой комплекс Лобня-Сити (52.6 м)

Лот №47265332. В жилом комплексе Лобня-Сити , что в подмосковной Лобне, выставлена на продажу уютная двухкомнатная квартира, идеально подходящая для молодой семьи. Эта квартира-распашонка расположена на десятом этаже семнадцатиэтажного дома. Общая площадь квартиры 52,6 квадратных метра, при этом жилая зона составляет 30,4 кв. м, а кухня – 10 кв. м. Окна выходят во внутренний двор, гарантируя тишину и спокойствие.Квартира предлагается с качественной отделкой white box, что позволит вам реализовать собственные дизайнерские решения, создать индивидуальный интерьер и сэкономить средства. Просторный балкон площадью 8,6 кв.м объединяет кухню и основную комнату.В доме предусмотрены пассажирский и грузовой лифты, а также пандус, обеспечивающий комфорт для всех жильцов. Дом завершает застройку района, который уже обжит. Наземная парковка всегда предоставит место для вашего автомобиля.В Лобня-Ситиазвитая инфраструктура: в непосредственной близости находятся современная школа «Авиатика , детский сад, медицинские учреждения и магазины. Прекрасная транспортная доступность: станция МЦД Лобня находится всего в 5-10 минутах езды. Один взрослый собственник. Квартира без каких-либо обременений, возможна ипотека. Полный пакет документов готов к сделке. Агент Соловьев Анатолий Николаевич, НДВ-Супермаркет недвижимости

Читать полностью

    Реализация объекта недвижимости приостановлена

    Не нашли подходящего объявления?

    Оставьте заявку, и наши риэлторы подберут квартиру в районе Лобни

    (0)