218 179 200 Р 2 756 500 $ или 2 375 700

Информация об помещении

1363.6 м2
Площадь
1
Этаж

Состояние и оснащение

Общая площадь складского комплекса, м2
1363.6
Развернуть
Захарова Зинаида Владимировна
PRO
+7 (495) 532-41-14
Профессионал AFY.ru с 2021 г.
Начать чат с агентом

Продажа производственного помещения, Ленинский район

Арт.
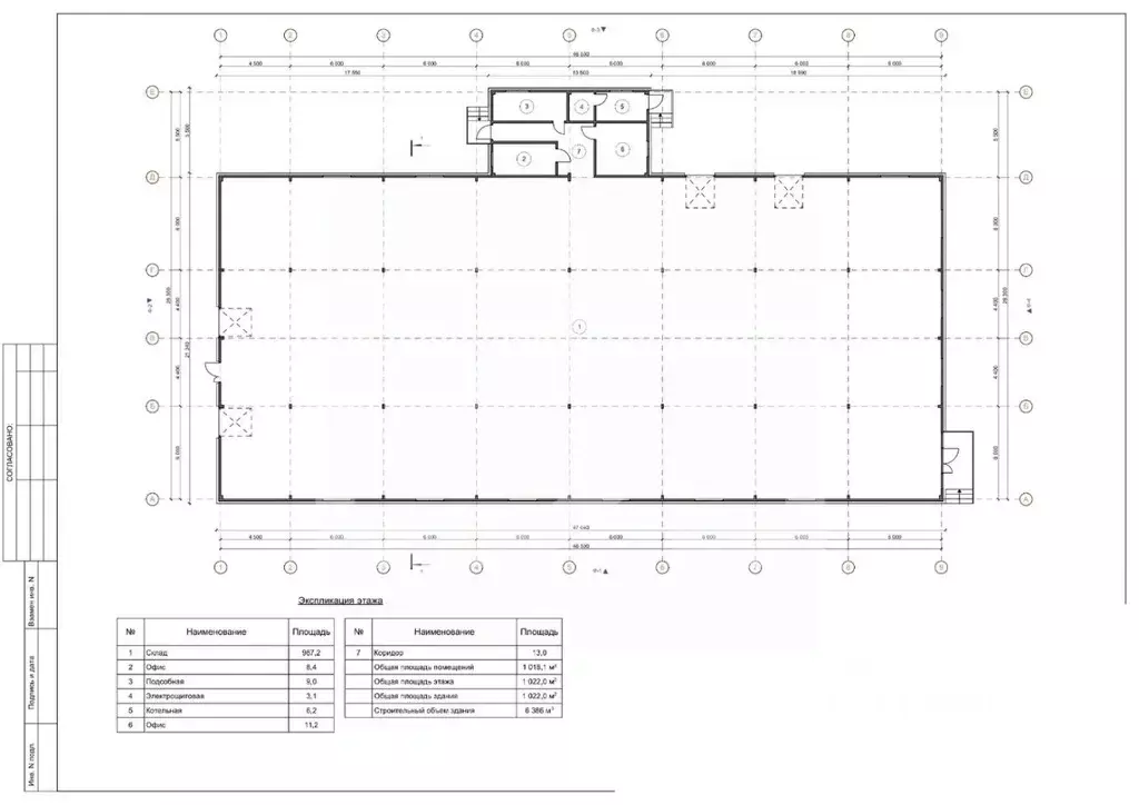
Продается производственно-складское помещение общей площадью: 1363.62 кв.м, из них офисно-торговая площадь: 165,60 кв.м. Возможно увеличение площадей.
Высота потолков: 8 м.
Пол антипыль, с нагрузкой на пол: 5 тонн т/м2.
Шаг колонн: 12х18 м.
Тип ворот: доки +1.2 и ворота 0.0.
Отопление: автономное.
Эл. мощность 60 кВт. (возможно увеличение).
Все коммуникации.
Консьерж сервис. Клининговая компания.
Расположен на территории индустриального парка.
Это обеспечивает резидентам не только престижный статус, но и максимальную близость к МКАД, МСД и ключевой строящейся магистрали — Южно-Лыткаринской автодороге, что обеспечивает мгновенный выезд на кольцевую дорогу и доступ ко всем направлениям.
На территории парка соседствуют проекты крупнейших российских компаний, включая РОСАТОМ, АКВАРИУС, GS GROUP, ВТБ, ЕКС. Это способствует повышению статуса резидентов - укрепляет доверие со стороны контрагентов, инвесторов и финансовых институтов.
Также на территории имеется следующая инфраструктура: автомойка, зарядка электромобилей, лаунж-бар, кафе, кейтеринг, спортивные площадки и многое другое.
Расстояние до МКАД: 10 км / 9 мин; Расстояние до ЦКАД: 30 км / 25 мин; Расстояние до МСД: 7 км / 6 мин; Расстояние до центра Москвы: 29 км / 22 мин.
Общественный транспорт: Ж/д станция «Расторгуево» (Павелецкое направление): 5 мин/2,5 км;
Метро «Анино»: 15 мин/12 км.
Подробности по телефону, оперативный показ.

Читать полностью

    Для того, чтобы купить производственное помещение площадью 1363 кв. метра по адресу: , позвоните по телефону +7 (495) 532-41-14. Торопитесь! Объявление №901101603 о продаже производственного помещения площадью 1363 кв. метра опубликовано 06 марта 2026.

    Позвонить Написать
    218 179 200 Р2 756 500 $ или 2 375 700
    Захарова Зинаида Владимировна
    PRO
    +7 (495) 532-41-14
    Профессионал AFY.ru с 2021 г.
    Начать чат с агентом
    Похожие предложения
    Производственное помещение в Московская область, Ленинский городской ... - Фото 1
    Производственное помещение в Московская область, Ленинский городской ... - Фото 2
    Арт.Продается производственно-складское помещение общей площадью: 1329.53 кв.м, из них офисно-торговая площадь: 165,60 кв.м. Возможно увеличение площадей.Высота потолков: 8 мм.Пол антипыль, с нагрузкой на пол: 5 тонн т/м2.Шаг колонн: 12х18 м.Тип ворот:...
    • 1/1 эт.
    212 724 800 Р
    Агент
    +7 (915) Показать номер
    Посмотреть контакты
    Производственное помещение в Московская область, Ленинский городской ... - Фото 1
    Производственное помещение в Московская область, Ленинский городской ... - Фото 2
    Арт.Продается производственно-складское помещение общей площадью: 1363.62 кв.м, из них офисно-торговая площадь: 165,60 кв.м. Возможно увеличение площадей.Высота потолков: 8 м. Пол антипыль, с нагрузкой на пол: 5 тонн т/м2.Шаг колонн: 12х18 м.Тип ворот:...
    • 1/1 эт.
    218 179 200 Р
    Агент
    +7 (915) Показать номер
    Посмотреть контакты
    Производственное помещение в Московская область, Ленинский городской ... - Фото 1
    Производственное помещение в Московская область, Ленинский городской ... - Фото 2
    Уникальный номер помещения.Строительство современного производственно-складского комплекса класса А формата light industrialУдобное расположение: 6 км. до МКАД.Добавьте объявление в избранное, чтобы не упустить выгодное предложение Высота потолка 8 м....
    • 1/2 эт.
    212 206 500 Р
    Агент
    +7 (980) Показать номер
    Посмотреть контакты
    Производственное помещение в Московская область, Апрелевка ... - Фото 1
    Производственное помещение в Московская область, Апрелевка ... - Фото 2
    1099653. Предлагаем в продажу современный теплый склад общей площадью 1 018 кв. м. в Апрелевке.Преимущества:Удобная транспортная доступность 28 км от МКАД по Киевскому шоссе.Близость к ЦКАД и Новой Москве.Локация: Апрелевка, удобный подъезд с Киевского...
    • 1/1 эт.
    220 000 000 Р
    Агент
    +7 (938) Показать номер
    Посмотреть контакты
    Производственное помещение в Московская область, Пушкинский городской ... - Фото 1
    Производственное помещение в Московская область, Пушкинский городской ... - Фото 2
    Арт.Продаются два новых отдельно стоящих, производственно-складских здания общей площадью - 2980 кв.м. кв. м. на отдельном участке.Два готовых к въезду здания по 1490 кв.м. расположены друг напротив друга на земельном участке общей площадью - 0,73 Га.Здания...
    • 1/1 эт.
    220 000 000 Р
    Агент
    +7 (915) Показать номер
    Посмотреть контакты

    Не нашли подходящего объявления?

    Оставьте заявку, и наши риэлторы подберут производственное помещение в районе Ленинского района

    (0)