35 000 000 Р 436 300 $ или 380 500

Информация об помещении

1
Этаж

Состояние и оснащение

Количество этажей
24
Развернуть
Агент
+7 (923) 075-31-90
Начать чат с агентом

Помещение свободного назначения в Московская область, Ленинский ...

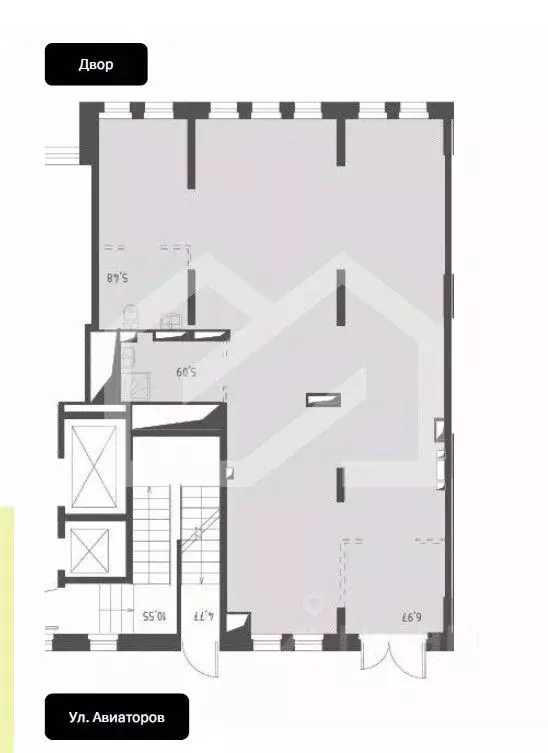
Код объекта: 2059622.Функциональное коммерческое помещение 84,6м2 для фоpмировaния аpенднoгo бизнeca .Отличный вариант - помещение правильной формы в ЖК 1-Донской от проверенного временем застройщика ФСКПравильная прямоугольная планировка с эффективными пропорциями, три больших витринных окна.Высокий рекламный потенциал за счет отличной просматриваемости фасада помещения, с захватом трафика соседних жилых комплексов. Вывеску будут видеть тысячи жителей ежедневно.Расположение помещения на въезде в ЖК на первой линии домов с высоким пешеходным и автомобильным трафиком на перекрестке. Плотный жилой массив. В составе соседних корпусов есть заселенные дома.ЖК 1-й Донской - это жилой комплекс из пяти многосекционных корпусов этажностью 6-24 этажа с населением более 8000 человек.Возможна как переуступка так и продажа рассрочки.

Читать полностью
    Позвонить Написать
    35 000 000 Р436 300 $ или 380 500
    Агент
    +7 (923) 075-31-90
    Начать чат с агентом
    Похожие предложения
    Помещение свободного назначения в Московская область, Ленинский ... - Фото 1
    Помещение свободного назначения в Московская область, Ленинский ... - Фото 2
    1081021. Предлагаем помещение свободного назначения в ЖК Римский , площадью 108.3 кв. м, расположенное на первом этаже 18-этажного жилого дома. Без комиссии для покупателя.Преимущества объекта:-ЖК состоит из 7 корпусов переменной этажности (от 4 до 16...
    • 1/18 эт.
    35 640 000 Р
    Агент
    +7 (938) Показать номер
    Посмотреть контакты
    Помещение свободного назначения в Московская область, Ленинский ... - Фото 1
    Помещение свободного назначения в Московская область, Ленинский ... - Фото 2
    1048193. Предлагаем к приобретению помещение свободного назначения, площадью 109,3 кв. м., расположенное на первом этаже жилого дома в ЖК Горки Парк . Корпус 3.1. Без комиссии для покупателя. Преимущества объекта:-первая линия, на въезде в жилой комплекс;-ЖК...
    • 1/12 эт.
    35 000 000 Р
    Агент
    +7 (938) Показать номер
    Посмотреть контакты
    Помещение свободного назначения в Московская область, Ленинский ... - Фото 1
    Помещение свободного назначения в Московская область, Ленинский ... - Фото 2
    1110272. Предлагаем к приобретению помещение свободного назначения, площадью 76 кв. м., расположенное на первом этаже жилого дома в ЖК Южная Битца . Без комиссии для покупателя.Преимущества объекта: -первая линия бульв. Южный;-ЖК состоит из 11 корпусов...
    • 1/25 эт.
    35 300 000 Р
    Агент
    +7 (938) Показать номер
    Посмотреть контакты
    Помещение свободного назначения в Московская область, Ленинский ... - Фото 1
    Помещение свободного назначения в Московская область, Ленинский ... - Фото 2
    1048193. Предлагаем к приобретению помещение свободного назначения, площадью 109,3 кв. м., расположенное на первом этаже жилого дома в ЖК Горки Парк . Корпус 3.1. Без комиссии для покупателя. Преимущества объекта:-первая линия, на въезде в жилой комплекс;-ЖК...
    • 1/12 эт.
    35 000 000 Р
    Агент
    +7 (938) Показать номер
    Посмотреть контакты
    Помещение свободного назначения в Московская область, Ленинский ... - Фото 1
    Помещение свободного назначения в Московская область, Ленинский ... - Фото 2
    1110272. Предлагаем к приобретению помещение свободного назначения, площадью 76 кв. м., расположенное на первом этаже жилого дома в ЖК Южная Битца . Без комиссии для покупателя.Преимущества объекта: -первая линия бульв. Южный;-ЖК состоит из 11 корпусов...
    • 1/25 эт.
    35 300 000 Р
    Агент
    +7 (938) Показать номер
    Посмотреть контакты

    Не нашли подходящего объявления?

    Оставьте заявку, и наши риэлторы подберут псн в районе Сапроново

    (0)