Реализация объекта недвижимости приостановлена

Информация о квартире

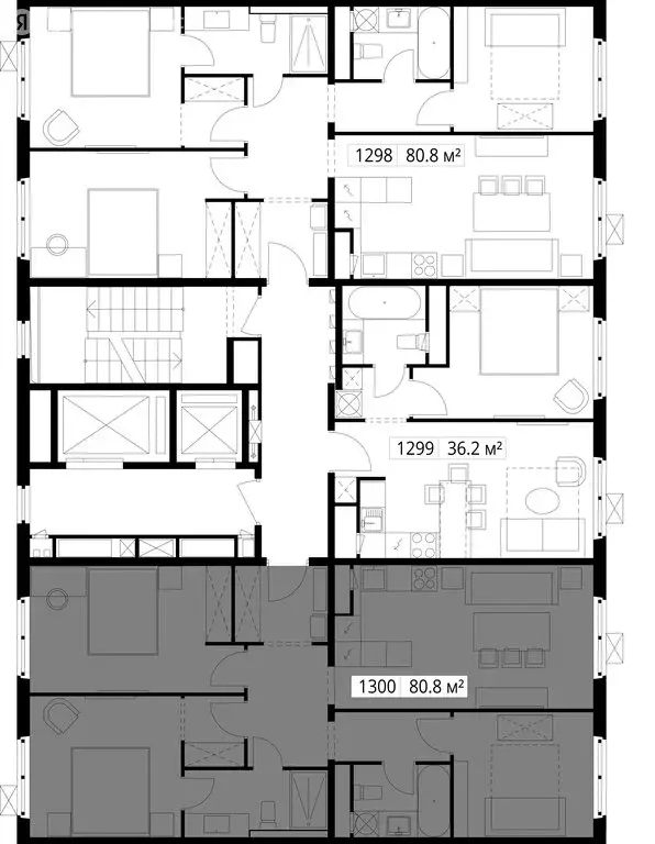
80.0 м2
Площадь
74.0 м2
Жилая
3
Комнаты
16
Этаж
17
Этажность
Развернуть

3-комнатная квартира: Сапроново, микрорайон Купелинка, 4 (80.8 м)

Прямая продажа от застройщика. Продаётся 3-к квартира общей площадью 80.80 кв. м с предчистовой отделкой в ЖК «У реки. Эко Видное 2.0 на 16-м этаже 17 этажного корпуса Нестеров. Все корпуса введены в эксплуатацию. Выдача ключей - I кв. 2025г. Жилой комплекс «У реки - уникальный проект комфорт-класса, в котором применяются стандарты строительства и сервиса MR Group, характерные для проектов девелопера бизнес и премиум-классов. 17-этажный корпус «Нестеровасположится на живописном берегу реки Купелинка. Из его квартир откроются захватывающие виды на реку и лес на её противоположном берегу. Благоустройство корпуса «Нестеровазработано «Бюро Чехарда . Акцент во дворе сделан на озеленение - сады, аллеи и рощи, в которых буквально растворяются площадки отдыха и активности. Так у жителей квартала появится свой “домашний” лес, доступный для безопасной прогулки в любое время суток. Функционально двор наполнен более тихими пространствами - зоны сцены, открытой экспозиции, ленд-арт парк и активности для детей гармонично вписываются в природное наполнение мегадвора-парка. На территории отсутствуют парковки и дорога для машин. В самом дворе появляются площадки для размещения объектов ленд-арта и других видов искусства. О проекте: • 5 корпусов переменной этажности; • 7 км от МКАД, 20 минут до метро «Домодедовская , в 2025 года запланировано открытие станции МЦД-5 (дорога до Павелецкого вокзала займёт 30 минут); • Безопасные дворы с детскими и спортивными площадками для разных возрастов; • Набережная с променадом, местами для пикников и рыбалки; • Два детских сада и школа на территории; • Развитая инфраструктура района; • Отделка MR Base (white box). Компания MR Group предлагает своим клиентам специальные условия приобретения квартир в рамках программ ипотечного кредитования от банков-партнеров.

Читать полностью

    Реализация объекта недвижимости приостановлена

    Не нашли подходящего объявления?

    Оставьте заявку, и наши риэлторы подберут квартиру в районе Сапроново

    (0)