9 391 340 Р 118 800 $ или 103 700

Информация о квартире

25 м2
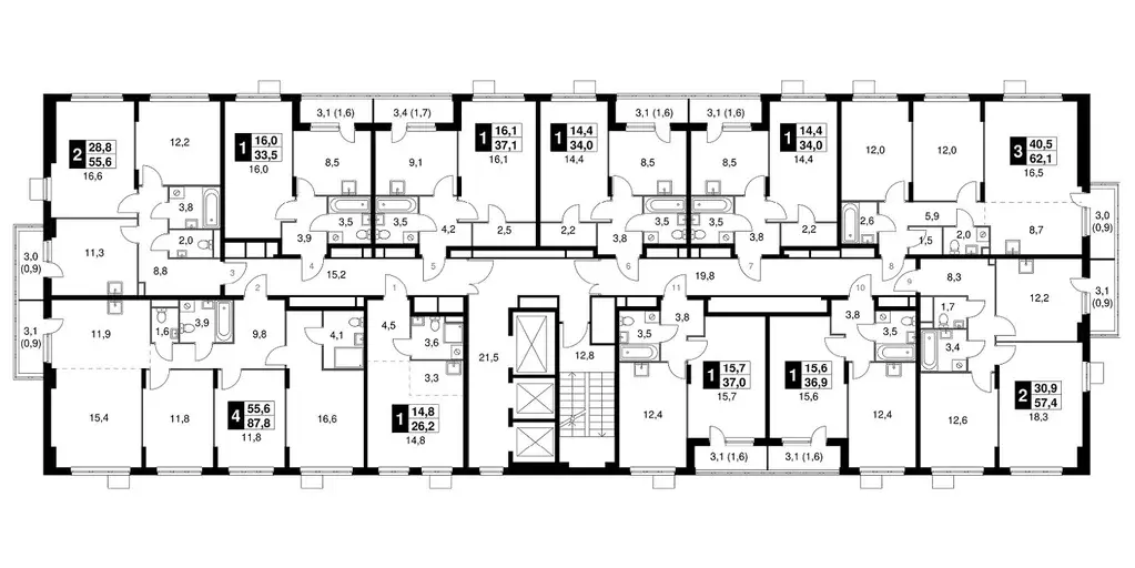
Площадь
11 м2
Жилая
7 м2
Кухня
студия
Комнат
23
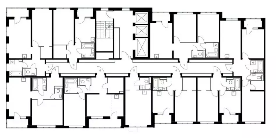
Этаж
24
Этажность
Развернуть
Агент
+7 (923) 071-83-91
Начать чат с агентом

Студия Московская область, Ленинский городской округ, д. Сапроново 1-й ...

Прямая продажа от застройщика Жилой Комплекс класса Комфорт Плюс. Продаётся квартира-студия номер 219 общей площадью 25.9 кв.м. на 23-м этаже 24 этажного здания. Чистовая отделка. Особенности квартиры: - МЦД-5 в пешей доступности - Квартал с собственной набережной - Свои 2 детских сада и школа - Линейная планировка - максимальная функциональность и удобство. - Ниша под шкаф - компактное и удобное место для вещей. Информация о комплексе: Комплекс 1-й Донской расположен в 7 км от МКАД по трассе М-4 Дон. В нем сочетаются все плюсы комфортной городской среды и природного окружения. В проекте достаточно большой процент квартир, выходящих на 2-3 стороны света. Секции-маяки формируют у зданий визуальную L-форму, что придает застройке структуру и ритмику объемов. На ощущение динамики работает и разная этажность зданий. Теплая цветовая палитра фасадов отражает природу Дона. Вечерами дома преображаются благодаря архитектурной подсветке, выгодно выделяясь на городском фоне. Природа оказывает положительное влияние на человека на всех уровнях восприятия: через зрение, запахи, звуки, тактильные ощущения. Неподалеку от ЖК Первый Донской: Ермолинский парк, Видновский лесопарк, Жуковский парк Транспортная доступность: Комплекс удобно расположен в 7 км от МКАД по трассе М-4 Дон (через Видное). Расстояние до Каширского шоссе составляет 12 км. Добраться до метро и центра Москвы позволяет развитая сеть маршрутов общественного наземного транспорта. Действующая ж/д станция Калинина Павелецкого направления в 15-17 минутах ходьбы (МЦД-5 вгг). Внутренняя инфраструктура: Проект 1-й Донской соседствует с бурно развивающимся районом, основная инфраструктура которого уже сложилась. В строительстве современных жилых комплексов в округе есть свои плюсы: здесь формируется продуманная и комфортная городская среда. Что касается внутренней инфраструктуры, на территории квартала будут расположены собственные муниципальные 2 детских садика и школа, которые помогут совместить приятное с полезным. Территория комплекса пронизана целой сетью живописных пешеходных маршрутов, позволяющих попасть в любой уголок района. Основные пути, как водится, торговые . Они проходят вдоль магазинов, кафе и других представителей коммерции и отделяются от проезжей части зеленой фито - стеной. Среди крупных социальных объектов предусмотрены своя поликлиника и торговый центр с примыкающей площадью для общественных мероприятий. Уют начинается с продуманного подъезда. Сквозные подъезды наполнены светом благодаря сплошному остеклению. Вход в них есть и с улицы, и со двора.

Читать полностью
    Позвонить Написать
    9 391 340 Р118 800 $ или 103 700
    Агент
    +7 (923) 071-83-91
    Начать чат с агентом
    Похожие предложения в Сапроново
    1-к кв. Московская область, Ленинский городской округ, д. Сапроново ... - Фото 1
    1-к кв. Московская область, Ленинский городской округ, д. Сапроново ... - Фото 2
    1-комнатная квартира, общая площадь 34м², жилая 14м², кухня 8м²

    Прямая продажа от застройщика Жилой Комплекс класса Комфорт Плюс. Продаётся 1-к квартира номер 94 общей площадью 34 кв.м. на 10-м этаже 24 этажного здания. Без отделки. Особенности квартиры: - МЦД-5 в пешей доступности - Квартал с собственной набережной...
    • 34 м²
    • 1-ком
    • 10/24 эт.
    9 309 200 Р
    Агент
    +7 (923) Показать номер
    Посмотреть контакты
    Студия Московская область, Ленинский городской округ, д. Сапроново, ... - Фото 1
    Студия Московская область, Ленинский городской округ, д. Сапроново, ... - Фото 2
    студия, общая площадь 19м²

    Продаётся студия в строящемся доме (Корпус 1.5), срок сдачи: II-кв. 2027, общей площадью 19.9 кв.м., на 5 этаже. Многоэтажные дома, с открытыми внутренними дворами вписаны в общую зеленую зону и объединены с существующим ландшафтным окружением в единый...
    • 19 м²
    • студия-ком
    • 5/21 эт.
    9 437 376 Р
    Агент
    +7 (930) Показать номер
    Посмотреть контакты
    1-к кв. Московская область, Ленинский городской округ, д. Сапроново ... - Фото 1
    1-комнатная квартира, общая площадь 34м², жилая 12м², кухня 9м²

    Прямая продажа от застройщика Жилой Комплекс класса Комфорт Плюс. Продаётся 1-к квартира номер 928 общей площадью 34.2 кв.м. на 23-м этаже 24 этажного здания. Отделка Whitebox. Особенности квартиры: - МЦД-5 в пешей доступности - Квартал с собственной...
    • 34 м²
    • 1-ком
    • 23/24 эт.
    9 442 620 Р
    Агент
    +7 (923) Показать номер
    Посмотреть контакты
    1-к кв. Московская область, Ленинский городской округ, д. Сапроново ... - Фото 1
    1-комнатная квартира, общая площадь 34м², жилая 14м², кухня 9м²

    Прямая продажа от застройщика Жилой Комплекс класса Комфорт Плюс. Продаётся 1-к квартира номер 163 общей площадью 34.4 кв.м. на 16-м этаже 24 этажного здания. Отделка Whitebox. Особенности квартиры: - МЦД-5 в пешей доступности - Квартал с собственной...
    • 34 м²
    • 1-ком
    • 16/24 эт.
    9 456 560 Р
    Агент
    +7 (923) Показать номер
    Посмотреть контакты
    1-к кв. Московская область, Ленинский городской округ, д. Сапроново ... - Фото 1
    1-комнатная квартира, общая площадь 33м², жилая 14м², кухня 9м²

    Прямая продажа от застройщика Жилой Комплекс класса Комфорт Плюс. Продаётся 1-к квартира номер 249 общей площадью 33.6 кв.м. на 24-м этаже 24 этажного здания. Отделка Whitebox. Особенности квартиры: - МЦД-5 в пешей доступности - Квартал с собственной...
    • 33 м²
    • 1-ком
    • 24/24 эт.
    9 404 640 Р
    Агент
    +7 (923) Показать номер
    Посмотреть контакты

    Не нашли подходящего объявления?

    Оставьте заявку, и наши риэлторы подберут квартиру в новостройке в районе Сапроново

    (0)