4 883 844 Р 61 850 $ или 53 690

Информация об помещении

1
Этаж

Состояние и оснащение

Количество этажей
1
Развернуть
Агент
+7 (982) 088-13-79
Начать чат с агентом

Склад в Московская область, Ленинский городской округ, д. Петрушино ...

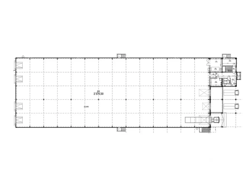
Отапливаемый склад в аренду от собственника без комиссии. Класс B+. Объявление актуально. Охраняемая территория. 5 км от МКАД. Никаких скрытых платежей. Открыты к диалогу по условиям аренды. ID объекта 2920. Добавьте в избранное, чтобы не потерять Площадь: 2 663.92 кв. мСклад: 2 332.72 кв. мОфис: 331.2 кв. м5 км от МКАД по трассе М-4 Дон .Технические характеристики:Нагрузка на пол: 5 т/кв. мКоличество ворот: 4 шт. (Докового типа)Температурный режим: Отапливаемый складМощность: 50 кВтВысота потолка: 8 мПол: Бетон-АнтипыльСтроится, готовность 01.10.2026Оптоволоконные коммуникации связиПропускная системаОхранная и пожарная сигнализацииКоммерческие условия:Арендная ставка:/кв. м/год с НДСЭксплуатационные расходы: Включены ID объекта - 2920

Читать полностью
    Позвонить Написать
    4 883 844 Р61 850 $ или 53 690
    Агент
    +7 (982) 088-13-79
    Начать чат с агентом
    Похожие предложения
    Склад в Московская область, Одинцово ул. Маковского, 21 (3200 м) - Фото 1
    Склад в Московская область, Одинцово ул. Маковского, 21 (3200 м) - Фото 2
    ПОКАЗ В УДОБНЫЙ ДЕНЬ И ЧАС. Агентам оплатим вознаграждение за клиента. Складской комплекс расположен в г. Одинцово. Недалеко от станции Одинцово, Внуково, Баковка.Налоговая: 32. Лифты: Нет. Вентиляция: Приточно-вытяжная. Кондиционирование: . Безопасность:...
    • 1/2 эт.
    4 800 000 Р
    Агент
    +7 (933) Показать номер
    Посмотреть контакты
    Склад в Московская область, Лобня Индустриальная ул., 1 (2980 м) - Фото 1
    Склад в Московская область, Лобня Индустриальная ул., 1 (2980 м) - Фото 2
    Складское помещение 2 980 кв. м в Техномаш от собственника.Направление: Север. Шоссе: Рогачевское, Дмитровское. Расстояние от МКАД: 21 км. Характеристики:- Класс: A; - Ограничения по электроэнергии: 630 кВт; - Тип склада: Сухой склад; - Высота потолков:...
    • 1/3 эт.
    4 842 500 Р
    Агент
    +7 (915) Показать номер
    Посмотреть контакты
    Склад в Московская область, Подольск городской округ, д. Макарово с13 ... - Фото 1
    Склад в Московская область, Подольск городской округ, д. Макарово с13 ... - Фото 2
    В современном складском комплексе сдаются помещения 3000 кв м (по запросу доступны иные площади). Системы круглосуточного контроля доступа, охрана, видеонаблюдение. 12 х 24 м шаг колонн, 8 м потолок, Бетонный пол с антипылевым покрытием, 6 т на кв м -...
    • 1/2 эт.
    4 860 000 Р
    Агент
    +7 (916) Показать номер
    Посмотреть контакты
    Склад в Московская область, Люберцы городской округ, Томилино пгт, ... - Фото 1
    Склад в Московская область, Люберцы городской округ, Томилино пгт, ... - Фото 2
    Услуги ответственного хранения.Уникальный номер помещения.Помещение находится на огороженной и охраняемой территории; Склад ответственного хранения класса А.Удобное расположение: 9 км. до МКАД.Добавьте объявление в избранное, чтобы не упустить выгодное...
    • 1/2 эт.
    4 920 000 Р
    Агент
    +7 (980) Показать номер
    Посмотреть контакты
    Склад в Московская область, Сергиев Посад Московское ш., 9 (3200 м) - Фото 1
    Склад в Московская область, Сергиев Посад Московское ш., 9 (3200 м) - Фото 2
    Уникальный номер помещения.Аренда помещения от собственника (без комиссии);Арендные каникулы, скидки и индивидуальные улучшения - все обсуждается;Помещение находится на огороженной и охраняемой территории;Транспортная доступность: Ярославское (М-8) ш.Удаленность...
    • 1/2 эт.
    4 800 000 Р
    Агент
    +7 (980) Показать номер
    Посмотреть контакты

    Не нашли подходящего объявления?

    Оставьте заявку, и наши риэлторы подберут склад в районе Петрушино

    (0)