425 280 000 Р 5 464 000 $ или 4 697 300

Информация об помещении

1
Этаж

Состояние и оснащение

Количество этажей
2
Развернуть
Агент
+7 (923) 072-03-94
Начать чат с агентом

Помещение свободного назначения в Московская область, Ленинский ...

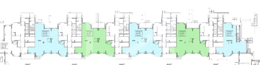
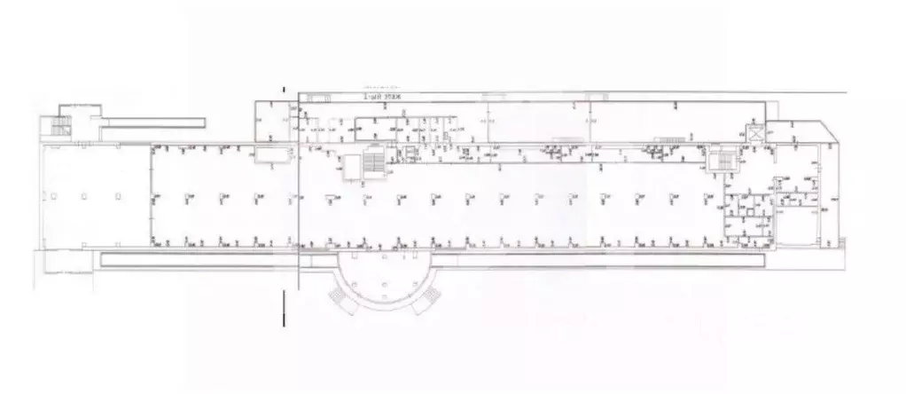
Продажа производственно складского помещения 2658 м в 10 км от Москвы. Нагрузка на пол: 4 т/кв.мРабочая высота: 8 мСрок сдачи 4 квартал 2026ВАЖНОПрямая продажа от собственникаОСНОВНЫЕ ХАРАКТЕРИСТИКИ- Площадь: 2658 м- Температура: Сухой- Шаг колонн: 12 x 24- Ворота на отметке 1.2- Возможность высотного хранения- Тип пола: Бетон с антипылевым покрытиемПРЕИМУЩЕСТВА- Планировка позволяет увеличивать площадь, объединяя боксы- В каждом блоке - собственный офис- Парковочные места- Огороженная и охраняемая территория, КПП- Автономные блоки с индивидуальными приборами учета электричества, водоснабжения и водоотведения- Управляющая компания- Консьерж сервис - информационная поддержка и помощь в решении различных задач для резидентов паркаРАСПОЛОЖЕНИЕ- 10 км до МКАД- Близлежащие шоссе/трассы: М-4 (Дон)Почему стоит обратиться к нам?- Самая большая и актуальная база складской недвижимости- Подбор оптимального предложения с учетом задач вашей компании- Консультация и сопровождение на всех этапах сделки- Организация просмотров в любое удобное время- Возможность виртуального тураНомер объекта: 1/538352/20317

Читать полностью
    Позвонить Написать
    425 280 000 Р5 464 000 $ или 4 697 300
    Агент
    +7 (923) 072-03-94
    Начать чат с агентом
    Похожие предложения
    Помещение свободного назначения в Москва с. Ознобишино, 195 (3016 м) - Фото 1
    Помещение свободного назначения в Москва с. Ознобишино, 195 (3016 м) - Фото 2
    1006772 . Эксклюзивное предложение Складской блок в производственно-складском торговом комплексе формата Light industrial в Новой Москве. Первая линия Варшавского шоссе. 23 км от МКАД, 2 км до ЦКАД. 13 км до Калужского шоссе, 15 км до М-2. 10 км до МЦД-2...
    • 1/1 эт.
    422 240 000 Р
    Агент
    +7 (938) Показать номер
    Посмотреть контакты
    Помещение свободного назначения в Новосибирская область, Новосибирск ... - Фото 1
    Помещение свободного назначения в Новосибирская область, Новосибирск ... - Фото 2
    Для статусного бизнеса предлагаются к продаже универсальные площади, состоящие из шести частей в ЖК Берлин . Можно соединить, можно использовать отдельно. Два помещения площадью 288 м2 под самоотделку, четыре помещения площадью 568 м2 с арендаторами....
    • 1/15 эт.
    428 000 000 Р
    Агент
    +7 (913) Показать номер
    Посмотреть контакты
    Помещение свободного назначения в Тюменская область, Тюмень ул. ... - Фото 1
    Помещение свободного назначения в Тюменская область, Тюмень ул. ... - Фото 2
    Арт.. Продается торгово-офисное помещение в центре города, под любой вид деятельности и любого направления .Помещение состоит из площадей свободного назначения, которые находятся на цокольном, первом и втором этажах, и офисного помещения с отдельным входом.полуцоколь)...
    • -1/3 эт.
    420 000 000 Р
    Агент
    +7 (919) Показать номер
    Посмотреть контакты
    Помещение свободного назначения в Калининградская область, Калининград ... - Фото 1
    Помещение свободного назначения в Калининградская область, Калининград ... - Фото 2
    Арт.Продаётся комплекс зданий: Комплекс зданий расположен на территории площадью 3,6 ГА, земельный участок в аренде на 49 лет. Стоимость указана при продаже юрлица на балансе которого находится данный комплекс. Возможно продажа как объекта недвижимости.1....
    • 1/4 эт.
    430 000 000 Р
    Агент
    +7 (911) Показать номер
    Посмотреть контакты
    Помещение свободного назначения в Москва Холодильный пер., 3к1 (1052 ... - Фото 1
    Помещение свободного назначения в Москва Холодильный пер., 3к1 (1052 ... - Фото 2
    968829 . Предлагаем офисное помещение площадью 1 051 кв. м, расположенное на 2 этаже БЦ Башня Рябов Преимущества объекта:- Бизнес-центр класса А- Шаговая доступность от станции метро Тульская (1 минута пешком)- Этаж: 2- Помещение предлагается в состоянии...
    • 2/13 эт.
    431 115 000 Р
    Агент
    +7 (938) Показать номер
    Посмотреть контакты

    Не нашли подходящего объявления?

    Оставьте заявку, и наши риэлторы подберут псн в районе Петрушино

    (0)