130 000 Р 1 590 $ или 1 350

Информация об помещении

1
Этаж

Состояние и оснащение

Количество этажей
17
Развернуть
Агент
Отдел продаж INVEST 7 (INVEST7)
+7 (916) 957-70-06
Начать чат с агентом

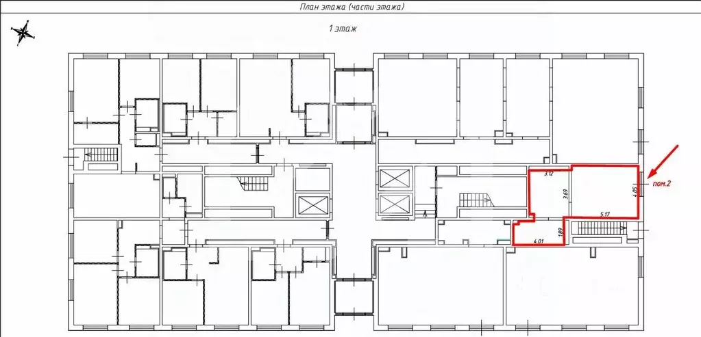
Помещение свободного назначения в Московская область, Ленинский ...

984539 . Предлагаем помещение свободного назначения формата street-retail в ЖК Бутово парк 2 , площадью 40 кв. м, расположенное на первом этаже 17-этажного жилого дома. Преимущества объекта:-ЖК состоит из 68 корпусов переменной этажности (от 12 до 25 этажей), рассчитанных на 24 771 квартиру;-7 минут на автомобиле от станции МЦД-2 Щербинка ;-удобная транспортная доступность: 1.5 км до Варшавского шоссе, 2.6 км до Симферопольского шоссе;-плотный жилой массив;-развитая инфраструктура района;-высокий автомобильный и пешеходный трафик;-отлично просматривается, находится в легком доступе для потенциальных клиентов;-гибкая планировка, позволяющая адаптировать пространство под различные нужды;-мокрая точка;-витринное остекление;-возможность размещения вывески;-наземная парковка;-рядом остановка общественного транспорта.Технические параметры объекта:-отдельный вход с улицы.-высота потолков: 4 м.Свяжитесь с нами для получения дополнительной информации

Читать полностью
    Позвонить Написать
    130 000 Р1 590 $ или 1 350
    Агент
    Отдел продаж INVEST 7 (INVEST7)
    +7 (916) 957-70-06
    Начать чат с агентом
    Похожие предложения
    Помещение свободного назначения в Московская область, Ленинский ... - Фото 1
    Помещение свободного назначения в Московская область, Ленинский ... - Фото 2
    Код объекта: 1621729. Предлагаем в аренду помещение 74,1 м2, расположенное по адресу: МО, поселок Развилка, 52к1. ЖК Миловидное- Площадь: 74,1 м2.- Первый этаж.- Высокие рекламные возможности - помещение располагается на первой линии, рядом с проезжей...
    • 1/17 эт.
    135 000 Р
    Агент
    +7 (915) Показать номер
    Посмотреть контакты
    Помещение свободного назначения в Московская область, Ленинский ... - Фото 1
    Помещение свободного назначения в Московская область, Ленинский ... - Фото 2
    Аренда торговой площади 69,9 м в ЖК Миловидное Ключевые параметрыПлощадь: 69,9 мСтоимость аренды:/мес.Высота потолков: 3,5 мЭлектрическая мощность: 20,97 кВт (0,3 кВт/м)Статус: Ключи на руках, собственность оформляется в мае 2025 г.Преимущества локацииПроходное...
    • 1/17 эт.
    140 000 Р
    Агент
    +7 (923) Показать номер
    Посмотреть контакты
    Помещение свободного назначения. В собственности. Помещение находится в самом удачном месте, на въезде в ЖК Горки парк с Каширского шоссе. Удачное расположение. Оживленный трафик заезда и выезда жильцов. Напротив помещения находится авто паркинг для жильцов...
    • 1/1 эт.
    130 000 Р
    Агент
    +7 (986) Показать номер
    Посмотреть контакты
    Помещение свободного назначения в Московская область, Люберцы Зенино ... - Фото 1
    Помещение свободного назначения в Московская область, Люберцы Зенино ... - Фото 2
    Номер в базе: 9633069.В аренду предлагается помещение площадью 84 м, расположенное на первом этаже жилого комплекса Люберцы от застройщика Самолет . Объект находится на въезде в ЖК, выходя фасадом на главную улицу квартала, что обеспечивает высокую...
    • 1/17 эт.
    140 000 Р
    Агент
    +7 (916) Показать номер
    Посмотреть контакты
    Помещение свободного назначения в Московская область, Королев ... - Фото 1
    Помещение свободного назначения в Московская область, Королев ... - Фото 2
    Лот 445316 Предложение от Собственника Сдаю помещение 600 кв.м. Возможно деление 63, 75, 120, 180 кв м. Второй этаж действующего торгового центра. Густонаселенный район. Кабинетная планировка. Идеально под учебный центр, офис продаж. Возможно разместить...
    • 2/2 эт.
    135 000 Р
    Агент
    +7 (986) Показать номер
    Посмотреть контакты

    Не нашли подходящего объявления?

    Оставьте заявку, и наши риэлторы подберут псн в районе Дрожжино

    (0)