9 500 Р 127 $ или 108

Информация о гараже

15 м2
Площадь

Территория

СТО
рядом
Автомойка
рядом
Развернуть
Агент
+7 (985) 516-30-47
Начать чат с агентом

Гараж в Московская область, Ленинский городской округ, пос. Битца ...

Сдам в долгосрочную аренду удобное машиноместо на -1 этаже, прям возле секции 4, рядом так же секции 3 и 5.Коммунальные платежи входят в стоимость.Доступно будет с 15.04

Читать полностью

    Для того, чтобы снять гараж площадью 15 кв. метров по адресу: Битца, Ботаническая улица, 12, позвоните по телефону +7 (985) 516-30-47. Торопитесь! Объявление №40003201443 об аренде гаража площадью 15 кв. метров опубликовано 26 апреля 2026.

    Позвонить Написать
    9 500 Р127 $ или 108
    Агент
    +7 (985) 516-30-47
    Начать чат с агентом
    Похожие предложения
    Гараж в Ленинградская область, Кудрово г. Всеволожский район, ... - Фото 1
    Гараж в Ленинградская область, Кудрово г. Всеволожский район, ... - Фото 2
    общая площадь 13м²

    Сдам на длительный срок парковочное место жк Вернисаж , пражская улица 7
    • 13 м²
    9 500 Р
    Агент
    +7 (981) Показать номер
    Посмотреть контакты
    Гараж в Оренбургская область, пос. Новосергиевка ул. Луначарского, 7 ... - Фото 1
    Гараж в Оренбургская область, пос. Новосергиевка ул. Луначарского, 7 ... - Фото 2
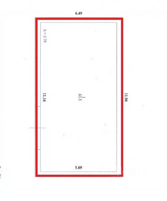
    общая площадь 63м²

    B аренду сдаётся гараж - склад площадью 63,5 кв. м по адресу: п. Новосергиевка, ул. Луначарского, д. 7. Обеспечен электроснабжением. Расположен во дворе здания в центре посёлка. Хорошая транспортная доступность, подъезд по асфальтированной дороге. Отлично...
    • 63 м²
    9 450 Р
    Агент
    +7 (986) Показать номер
    Посмотреть контакты

    Не нашли подходящего объявления?

    Оставьте заявку, и наши риэлторы подберут гараж в районе Битцы

    (0)