23 000 000 Р 298 800 $ или 255 500

Информация об помещении

1
Этаж

Состояние и оснащение

Количество этажей
18
Развернуть
Агент
+7 (985) 862-10-25
Начать чат с агентом

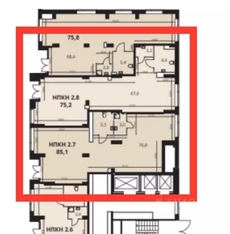
Помещение свободного назначения в Московская область, Ленинский ...

Продается помещение свободного назначения с готовым бизнесом в новом жилом микрорайоне Южная Битца. В помещении сквозной проход (улица -двор) хорошая доступность с дороги, витринное остекление,рядом остановка, вход в подъезд три изолированные комнаты, холл 10,5 м2, витринные окна. Оперативный показ.

Читать полностью
    Позвонить Написать
    23 000 000 Р298 800 $ или 255 500
    Агент
    +7 (985) 862-10-25
    Начать чат с агентом
    Похожие предложения
    Помещение свободного назначения (83.8 м) - Фото 1
    Помещение свободного назначения (83.8 м) - Фото 2
    Продается помещение свободного назначения с готовым бизнесом в новом жилом микрорайоне Южная Битца. В помещении сквозной проход (улица -двор) хорошая доступность с дороги, витринное остекление,рядом остановка, вход в подъезд три изолированные комнаты,...
    • 1/24 эт.
    23 000 000 Р
    Агент
    +7 (966) Показать номер
    Посмотреть контакты
    Помещение свободного назначения в Московская область, Ленинский ... - Фото 1
    Помещение свободного назначения в Московская область, Ленинский ... - Фото 2
    1150292. Предлагаем к приобретению помещение свободного назначения в ЖК Южная Битца , площадью 82 кв. м., расположенное на первом этаже 25-этажного жилого дома. Без комиссии для покупателя.Преимущества объекта: -первая линия ул. Парковая;-ЖК состоит...
    • 1/25 эт.
    22 500 000 Р
    Агент
    +7 (938) Показать номер
    Посмотреть контакты
    Помещение свободного назначения в Московская область, Ленинский ... - Фото 1
    Помещение свободного назначения в Московская область, Ленинский ... - Фото 2
    Лот. Сдам коммерческое помещение на 1 этаже.Ленинский городской округ, деревня Сапроново.Ключевое преимущество — помещение находится в активно развивающемся новом районе с растущим потоком жителей.Выходит фасадом на основную дорогу — отличная видимость...
    • 1/24 эт.
    22 000 000 Р
    Агент
    +7 (985) Показать номер
    Посмотреть контакты
    Прямая продажа от застройщика - Фото 1
    Прямая продажа от застройщика - Фото 2
    Прямая продажа от застройщика - Фото 3
    Прямая продажа от застройщика - Фото 4
    Прямая продажа от застройщика - Фото 5
    Прямая продажа от застройщика - Фото 6
    Прямая продажа от застройщика - Фото 7
    Прямая продажа от застройщика - Фото 8
    Прямая продажа от застройщика - Фото 9
    Прямая продажа от застройщика - Фото 10
    Прямая продажа от застройщика - Фото 11
    Прямая продажа от застройщика - Фото 12
    Прямая продажа от застройщика - Фото 13
    Прямая продажа от застройщика - Фото 14
    Прямая продажа от застройщика - Фото 15
    Прямая продажа от застройщика - Фото 16
    Прямая продажа от застройщика - Фото 17
    Прямая продажа от застройщика - Фото 18
    Прямая продажа от застройщика - Фото 19
    Прямая продажа от застройщика - Фото 20
    полезная площадь 85.3м²

    Предлагается в продажу помещение свободного назначения, расположенное в ЖК 1-й Донской площадью 85.3 кв.м. Располагается на 1 этаже 24-этажного корпуса. Помещение идеально подойдет для магазина, кафе, офиса или другого бизнеса благодаря функциональной...
    • 85.3 м²
    • 1/24 эт.
    22 539 490 Р
    Агент
    +7 (495) Показать номер
    Посмотреть контакты
    Прямая продажа от застройщика - Фото 1
    Прямая продажа от застройщика - Фото 2
    Прямая продажа от застройщика - Фото 3
    Прямая продажа от застройщика - Фото 4
    Прямая продажа от застройщика - Фото 5
    Прямая продажа от застройщика - Фото 6
    Прямая продажа от застройщика - Фото 7
    Прямая продажа от застройщика - Фото 8
    Прямая продажа от застройщика - Фото 9
    Прямая продажа от застройщика - Фото 10
    Прямая продажа от застройщика - Фото 11
    Прямая продажа от застройщика - Фото 12
    Прямая продажа от застройщика - Фото 13
    Прямая продажа от застройщика - Фото 14
    Прямая продажа от застройщика - Фото 15
    Прямая продажа от застройщика - Фото 16
    Прямая продажа от застройщика - Фото 17
    Прямая продажа от застройщика - Фото 18
    Прямая продажа от застройщика - Фото 19
    Прямая продажа от застройщика - Фото 20
    полезная площадь 79.3м²

    Предлагается в продажу помещение свободного назначения, расположенное в ЖК 1-й Донской площадью 79.3 кв.м. Располагается на 1 этаже 24-этажного корпуса. Помещение идеально подойдет для магазина, кафе, офиса или другого бизнеса благодаря функциональной...
    • 79.3 м²
    • 1/24 эт.
    23 949 300 Р
    Агент
    +7 (495) Показать номер
    Посмотреть контакты

    Не нашли подходящего объявления?

    Оставьте заявку, и наши риэлторы подберут псн в районе Битцы

    (0)