231 700 000 Р 2 851 700 $ или 2 484 100

Информация об помещении

1
Этаж

Состояние и оснащение

Количество этажей
1
Развернуть
Агент
+7 (910) 550-27-44
Начать чат с агентом

Помещение свободного назначения в Московская область, Ленинский ...

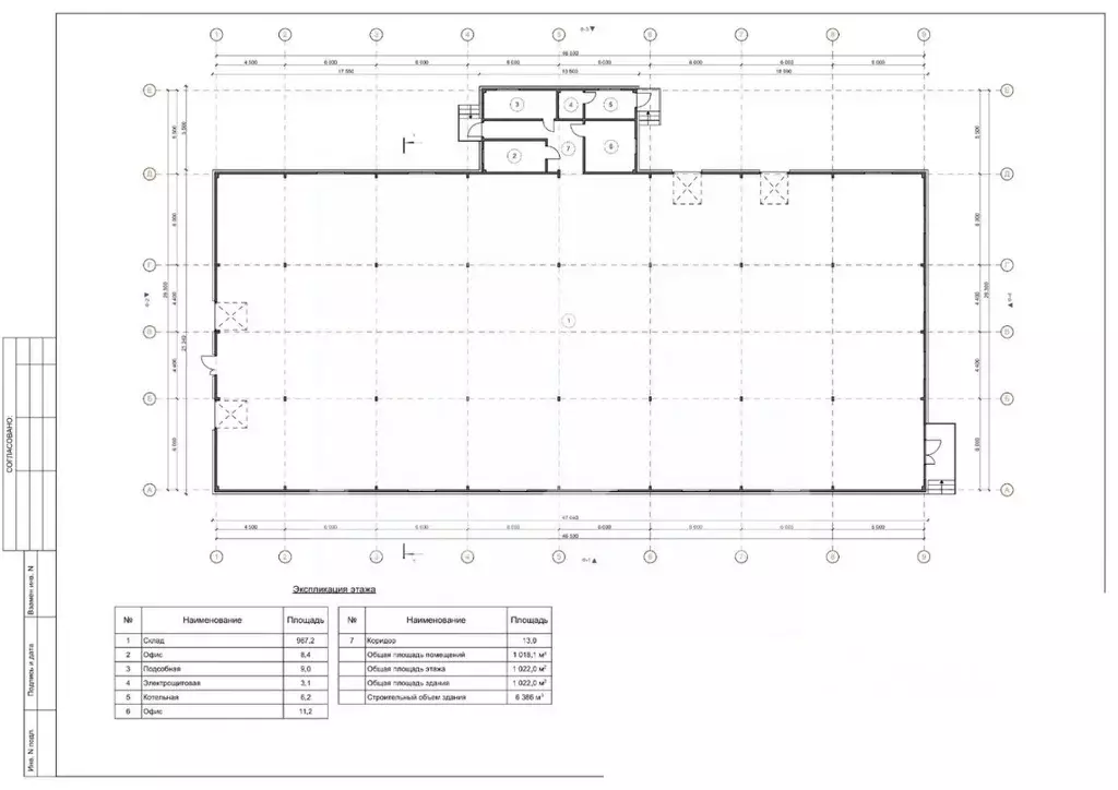
Сбер А предлагает к продаже складской комплекс общей площадью 2 190, 4 кв. м. расположенного на земельном участке площадью 1 557 кв. м. с кадастровым номером 50:21:0040102:237, по адресу: Московская область, Ленинский район, городское поселение Видное, вблизи д. Апаринки, уч. 5/2Продажа посредством проведения торгов на электронной площадке Сбербанк-АСТ.Собственник: ООО Ламинат-Трейд .Номер процедуры: SBRСсылка на процедуру: https://utp. sberbank-ast. ru/Property/NBT/PurchaseView/43/0/0/3876153Описание Лота:Складской комплекс класс А (64 000м2) находится по адресу Московская область, Ленинский городской округ, д. Апаринки, вл9, расположен недалеко от метро Домодедовская и Зябликово .Ключевое преимущество:- Современная инфраструктура (газ центральный, тепло от газовых теплогенераторов, вода и канализация центральные);- Выгодное расположение с - выгодное расположение с логистическим доступом к магистралям;- Техническая готовность к быстрому запуску бизнеса.Общая конфигурация и площади:- Общая площадь здания: 2 081 м;- 1 этаж (Складская зона): 1 453 м — высокая складская часть для хранения и паллетирования, высота 13 м. ;- 2 этаж (mezzanine): 288 m — зона для мелкоштучного хранения, pick-зона или административные склады;- 3 этаж Офисно-административная зона: 288 m — офисы, - 3 этаж Офисно-административная зона: 288 m — офисы; переговорная, приемная, санузлы и комнаты персонала, высота потолков 5 м;- Площадь участка: 1 557 m — стоянки для автомобилей и грузовиков, зоны манёвра, возможности расширения/стоянки контейнеров. Дополнительная информация и документация указаны на площадке в разделе Документы . По всем вопросам обращайтесь в рабочее время по телефону с 09:00 до 18:00 по МС.

Читать полностью
    Позвонить Написать
    231 700 000 Р2 851 700 $ или 2 484 100
    Агент
    +7 (910) 550-27-44
    Начать чат с агентом
    Похожие предложения
    Помещение свободного назначения в Московская область, Ленинский ... - Фото 1
    Помещение свободного назначения в Московская область, Ленинский ... - Фото 2
    Продажа производственно складского помещения 1363,69 м в 10 км от Москвы. Нагрузка на пол: 4 т/кв.мРабочая высота: 8 мСрок сдачи 4 квартал 2026ВАЖНОПрямая продажа от собственникаОСНОВНЫЕ ХАРАКТЕРИСТИКИ- Площадь: 1363,69 м- Температура: Сухой- Шаг колонн:...
    • 1/2 эт.
    224 895 000 Р
    Агент
    +7 (923) Показать номер
    Посмотреть контакты
    Помещение свободного назначения в Московская область, Апрелевка ... - Фото 1
    Помещение свободного назначения в Московская область, Апрелевка ... - Фото 2
    1099653. Предлагаем в продажу современный теплый склад общей площадью 1 018 кв. м. в Апрелевке.Преимущества:Удобная транспортная доступность 28 км от МКАД по Киевскому шоссе.Близость к ЦКАД и Новой Москве.Локация: Апрелевка, удобный подъезд с Киевского...
    • 1/1 эт.
    220 000 000 Р
    Агент
    +7 (938) Показать номер
    Посмотреть контакты
    Помещение свободного назначения в Московская область, Красногорск ул. ... - Фото 1
    Помещение свободного назначения в Московская область, Красногорск ул. ... - Фото 2
    1068232. Предлагаем помещение свободного назначения с арендатором Магнит в ЖК Sky Sputnik , площадью 305.8 кв. м, расположенное на первом этаже 31-этажного жилого дома. Стилобатная часть. Без комиссии для покупателя.Преимущества объекта:-первая линия...
    • 1/31 эт.
    220 000 000 Р
    Агент
    +7 (938) Показать номер
    Посмотреть контакты
    Помещение свободного назначения в Московская область, Одинцово ... - Фото 1
    Помещение свободного назначения в Московская область, Одинцово ... - Фото 2
    НОВОЕ ЗДАНИЕ СО ВСЕМИ СОВРЕМЕННЫМИ КОММУНИКАЦИЯМИ ПЛАТИМ БОНУС Объект расположен в городе Одинцово Московской области на территории ДСК Сельскохозяйственный. Здание находится вдоль Буденновского шоссе одной из ключевых транспортных артерий округа,...
    • 1/2 эт.
    230 000 000 Р
    Агент
    +7 (933) Показать номер
    Посмотреть контакты
    Помещение свободного назначения в Московская область, Химки Юбилейный ... - Фото 1
    Помещение свободного назначения в Московская область, Химки Юбилейный ... - Фото 2
    1058129. Предлагаем отдельно стоящее административное здание с надёжными арендаторами Fix Price , ресторан Река море , Винлаб и кальянная, площадью 762.3 кв. м. Без комиссии для покупателя.Преимущества объекта:-первая линия Юбилейного проспекта;-8...
    • 1/3 эт.
    230 000 000 Р
    Агент
    +7 (938) Показать номер
    Посмотреть контакты

    Не нашли подходящего объявления?

    Оставьте заявку, и наши риэлторы подберут псн в районе Апаринки

    (0)