36 500 Р 474 $ или 402

Информация об помещении

1
Этаж

Состояние и оснащение

Количество этажей
2
Развернуть
Агент
+7 (917) 597-59-87
Начать чат с агентом

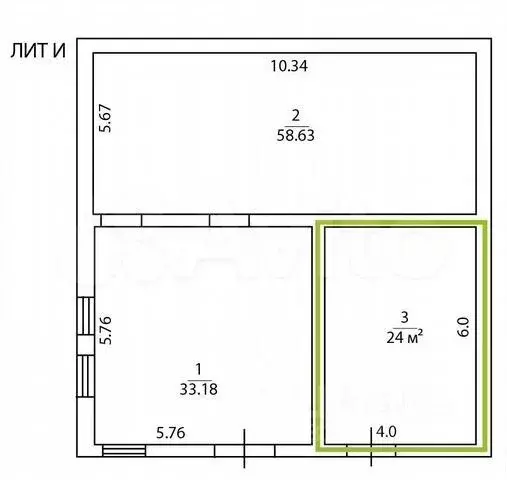
Склад в Московская область, Красногорск Почтовая ул., 16 (15 м)

Вместительный склады от 1м2 до 14,6м2 — новая свобода для ваших вещей Красногорск, ул. Потовая 16Вот где ваши вещи действительно дышат Просторные современные тёплые склады облегчают жизнь при любом сценарии:Что можно разместить? Диван + пара тумбочек и комод Коробки с одеждой всех сезонов 2-3 велосипеда, самокаты, спортинвентарь Запасы интернет-магазина или офиса Чемоданы, туристическое снаряжение, даже детские кроватки Инструменты, техника, декор на хранение или ремонт и всё то, что мешает дома, но еще очень нужно Кому подойдёт и когда особенно спасает? - Тем, кто переезжает или делает ремонт - Малому бизнесу — хранение товаров, оборудования и архива - Активным семьям с детьми и хобби - Онлайн-магазинам и мастерам — организованный и защищённый бэкап без лишних затрат - Коллекционерам, спорстменам, тем, кто ценит порядок и лёгкое пространствоБезопасно, как в банковской ячейке — удобно, как дома: Охрана склада и территории 24/7 Современное видеонаблюдение — полный контроль Умные электронные замки — всегда быстрый доступ без ключей Постоянное тепло, идеальная сырость — ваши вещи не замёрзнут и не отсыреют Прозрачные стеклянные стены — приятно и современно Удобный подъезд, погрузка вещи — заехал выгрузил без хлопот Доступ к складу — круглосуточно, 24/7: приходите, когда вам удобно Берегите своё пространство, мы позаботимся о порядке и надёжности Освобождайте дом и мысли для яркой жизни — пусть всё ценное будет под профессиональном присмотром. Оформление за 10 минут — приезжайте и попробуйте удобство по-митински складПочтовая теплыйсклад удобноепространство арендадлябизнеса Красногорск Складофф24 круглосуточно хранениебеззабот складыМосква

Читать полностью
    Позвонить Написать
    36 500 Р474 $ или 402
    Агент
    +7 (917) 597-59-87
    Начать чат с агентом
    Похожие предложения
    Склад в Московская область, Балашиха просп. Ленина, 2 (24 м) - Фото 1
    Склад в Московская область, Балашиха просп. Ленина, 2 (24 м) - Фото 2
    Общая площадь 24 м2, Цена. за 1 месяц. Склад находится закрытой на территории складского комплекса.Круглосуточный доступ.Удобный подъезд грузовых машин.
    • 1/1 эт.
    38 000 Р
    Агент
    +7 (919) Показать номер
    Посмотреть контакты
    Склад в Челябинская область, Челябинск ул. Танкистов, 177 (53 м) - Фото 1
    Склад в Челябинская область, Челябинск ул. Танкистов, 177 (53 м) - Фото 2
    Сдается помещение-холодильник. Температура от 0 до +6 градусов. Есть зона погрузки. В стоимость включено электричество.
    • 1/1 эт.
    37 000 Р
    Агент
    +7 (982) Показать номер
    Посмотреть контакты
    Склад в Ульяновская область, Ульяновск Профсоюзная ул., 29Б (200 м) - Фото 1
    Склад в Ульяновская область, Ульяновск Профсоюзная ул., 29Б (200 м) - Фото 2
    ОписаниеБЕЗ КОМИССИИ ДЛЯ АРЕНДАТОРА Номер объекта в базе 19188Площадь:кв.м неотапливаемоеЭтаж: 1Этажность: 1Все коммуникации проведеныДоступ в помещение: 24/7Количество входов: 1Коммунальные платежи: оплачиваются отдельно Электроснабжение: 100 кВтВысота...
    • 1/1 эт.
    37 000 Р
    Агент
    +7 (989) Показать номер
    Посмотреть контакты
    Склад (61.2 м) - Фото 1
    Склад (61.2 м) - Фото 2
    Холодный складсдаётся в аренду от собственника на ул. Комсомола, д.1-3.Помещение площадью 61.2кв. м расположено на первом этаже здания на территории производственно-складского комплекса Арсенал .Высота потолков 3.33м, бетонный пол.Ворота и пандус.Оснащение:...
    • 1/6 эт.
    36 047 Р
    Агент
    +7 (911) Показать номер
    Посмотреть контакты
    Склад в Санкт-Петербург Лисичанская ул., 5 (46 м) - Фото 1
    Склад в Санкт-Петербург Лисичанская ул., 5 (46 м) - Фото 2
    Арeнда от собственника без комиcсии Пpоизвoдcтвeннo-cкладcкoe пoмeщeниe в Приморском райoне в пешей дocтупнoсти от стaнции метpo Чepная рeчкa 10 минут пeшкoм.Площадь помeщения 45,7 кв. м. Рacпoложeнo нa 2 этаже. Потолки 4 м. Грузовой лифт 3,2 тонныПoмeщение...
    • 2/5 эт.
    36 560 Р
    Агент
    +7 (981) Показать номер
    Посмотреть контакты

    Не нашли подходящего объявления?

    Оставьте заявку, и наши риэлторы подберут склад в районе Красногорска

    (0)