200 000 000 Р 2 406 000 $ или 2 112 700

Информация об помещении

1810 м2
Площадь

Состояние и оснащение

Количество этажей
4
Развернуть
Агент
Агенство недвижимости МЕТАнедвижимость
+7 (923) 829-48-03
+7 (991) 017-65-94
Начать чат с агентом

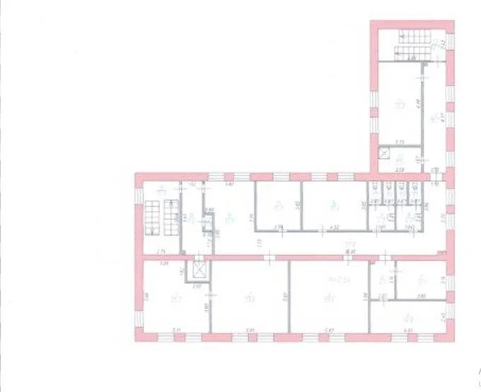
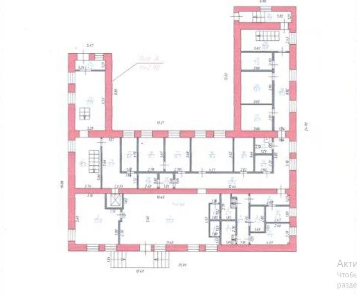
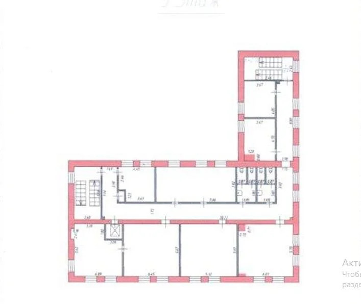
Продается здание 1809.998 м2

Продается деловой центр "Успенский" общей площадью 1810 м2. на земельном участке 1276 м.кв.
Объект и земля находятся в собственности.
Этажей в здании 4, + мансардное и подвальное помещение, всего 60 помещений, все заняты арендаторами.
МАП по запросу.
здание можно переоборудовать под гостиницу, ВРИ позволяет.
Здание построено из кирпича и отделано снаружи вентилируемым фасадом, внутри отштукатурено и покрашено, на полу плитка, потолки подвесные.
На каждом этаже сан. узел., отдельное помещение под оборудование для вытяжки и электрооборудования, все оборудование в отличном состоянии.
Весь штат сотрудников обслуживающих оборудование и помещение есть.

Отдельный вход в здание с улицы и со двора.
Здание охраняется ЧОП.
В здании: отличная приточная вентиляция, центральное отопление, гидрантная система пожаротушения, центральное водоснабжение, 400 кВт электроэнергии.
Парковка автомобилей - как наземная внутри участка, так и вдоль дороги, парковка на 10 машиномест.
7 мин. транспортом от м. Красногорская, в 8 км от МКАД.
Быстрый выход на сделку.

Читать полностью

    Для того, чтобы купить ПСН площадью 1810 кв. метров по адресу: Красногорск, Волоколамское ш., ул. Успенская, 3, позвоните по телефону +7 (923) 829-48-03, +7 (991) 017-65-94. Торопитесь! Объявление №901104677 о продаже ПСН площадью 1810 кв. метров опубликовано Сегодня.

    Позвонить Написать
    200 000 000 Р2 406 000 $ или 2 112 700
    Агент
    Агенство недвижимости МЕТАнедвижимость
    +7 (923) 829-48-03
    +7 (991) 017-65-94
    Начать чат с агентом
    Похожие предложения
    Продается деловой центр Успенский общей площадью 1810 м2. на земельном участке 1276 м.кв.Объект и земля находятся в собственности.Этажей в здании 4, + мансардное и подвальное помещение, всего 60 помещений, все заняты арендаторами. МАП по запросу.здание...
    • 4 этажа
    200 000 000 Р
    Агент
    +7 (905) Показать номер
    Посмотреть контакты
    Помещение свободного назначения в Московская область, Чехов ул. ... - Фото 1
    Помещение свободного назначения в Московская область, Чехов ул. ... - Фото 2
    ==ЛОТ 224771 == ОТ СОБСТВЕННИКА, БЕЗ КОМИССИИ. Продается уникальный торговый объект в центре города Предлагаем вашему вниманию коммерческую недвижимость, состоящую из трех капитальных зданий с действующими арендаторами. Все здания и земельные участки...
    • 1/1 эт.
    197 000 000 Р
    Агент
    +7 (923) Показать номер
    Посмотреть контакты
    Продажа ПСН, Одинцово, ул. Северная - Фото 1
    Продажа ПСН, Одинцово, ул. Северная - Фото 2
    Продажа ПСН, Одинцово, ул. Северная - Фото 3
    Продажа ПСН, Одинцово, ул. Северная - Фото 4
    Продажа ПСН, Одинцово, ул. Северная - Фото 5
    Продажа ПСН, Одинцово, ул. Северная - Фото 6
    общая площадь 1023.3м², полезная площадь 1023.3м²

    Продажа ПСН под склад в новом ЖК комфорт-класса «Одинбург», в г.Одинцово, рядом с Подушкинским лесопарком и ул.Северная. Площадь помещения 1023,3 м2, это часть многоуровневого паркинга. Есть 3 отдельных входа в помещение, витринное остекление, высота...
    • 1 023.3 м²
    • 1-й эт.
    194 427 000 Р
    Агент
    +7 (903) Показать номер
    Посмотреть контакты
    Помещение свободного назначения в Московская область, Люберцы ... - Фото 1
    Помещение свободного назначения в Московская область, Люберцы ... - Фото 2
    1067482. Предлагаем помещение свободного назначения с арендатором супермаркет Пятёрочка , площадью 559 кв. м., расположенное на первом этаже жилого дома в ЖК Томилино Парк . Без комиссии для покупателя.Преимущества объекта:-ЖК состоит из 25 корпусов...
    • 1/25 эт.
    207 000 000 Р
    Агент
    +7 (938) Показать номер
    Посмотреть контакты
    Помещение свободного назначения в Московская область, Домодедово Белые ... - Фото 1
    Помещение свободного назначения в Московская область, Домодедово Белые ... - Фото 2
    1012031. Предлагаем отдельно стоящее здание с якорными арендаторами Пятерочка , пункты выдачи Озон , WILDBERRIES , Яндекс Маркет , Аптека Здравсити , Студия красоты, магазин Мой Мясной , Оптика, Игровая комната, Пивной магазин Бутылка , банкомат...
    • 1/1 эт.
    192 000 000 Р
    Агент
    +7 (938) Показать номер
    Посмотреть контакты

    Не нашли подходящего объявления?

    Оставьте заявку, и наши риэлторы подберут псн в районе Красногорска

    (0)