110 446 552 Р 1 402 900 $ или 1 213 700

Информация об помещении

1
Этаж

Состояние и оснащение

Количество этажей
2
Развернуть
Агент
+7 (966) 076-80-25
Начать чат с агентом

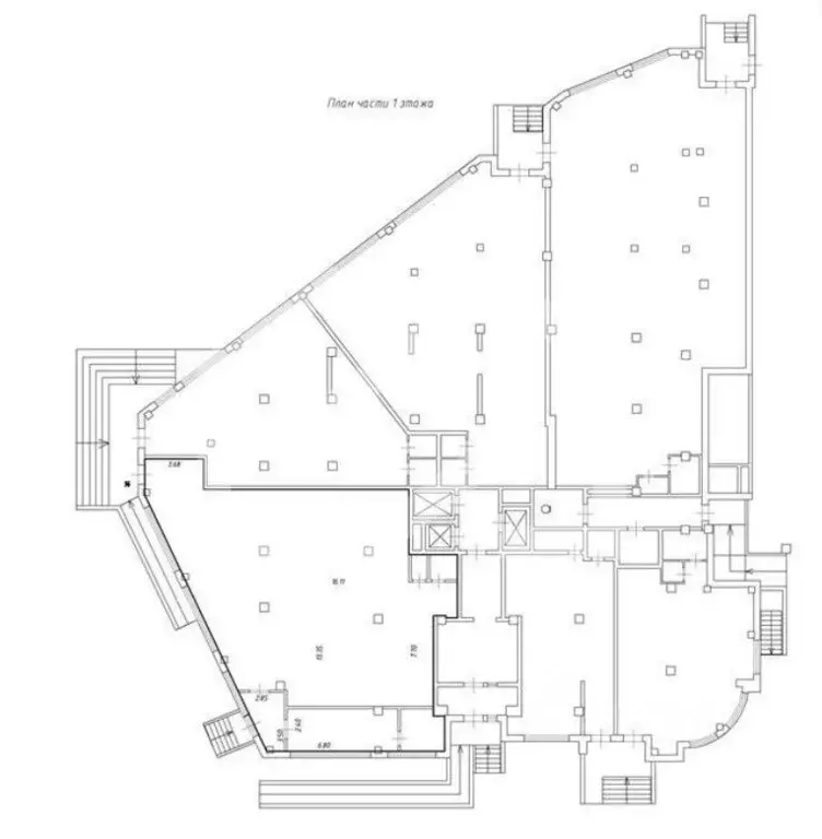
Помещение свободного назначения (742 м)

Продаю помещение свободного назначения, здание, торговый центр 742 м2 .На продажу предлагается строящийся двухэтажный торговый центр общей площадью 739 кв. м. Объект расположен на первой линии Волоколамского шоссе в густонаселенном районе Опалиха, что обеспечивает высокий трафик и отличную видимость. Завершение строительства и ввод в эксплуатацию запланированы на сентябрь 2025 года.Ключевые характеристики:Назначение:ПСН, торговый центрОбщая площадь:742 кв. мРаспределение:1 этаж — 367 кв. м, 2 этаж — 370 кв. мВысота потолков:4.52 мЗемельный участок:Собственная территория1 100 кв. мЭлектроснабжение:100 кВт(максимальная мощность)Инфраструктура и инженерные системы:Водоснабжение:СкважинаКанализация:Автономная (септик)Отопление:ЭлектрокотелБольше объектов в нашем профиле - подписывайтесь добавляйте в избранное.Организую оперативный показ объекта.Звоните, вышлю необходимую информацию.Агентам просьба не беспокоитьНомер объекта: 5/540116/22123

Читать полностью
    Позвонить Написать
    110 446 552 Р1 402 900 $ или 1 213 700
    Агент
    +7 (966) 076-80-25
    Начать чат с агентом
    Похожие предложения
    Помещение свободного назначения в Московская область, Красногорск ул. ... - Фото 1
    Помещение свободного назначения в Московская область, Красногорск ул. ... - Фото 2
    904968. Предлагаем помещение свободного назначения с арендатором Самокат в ЖК Молодёжный-3 , площадью 225.5 кв. м, расположенное на первом этаже 25-этажного жилого дома. Без комиссии для покупателя.Преимущества объекта:-первая линия ул. Молодёжная;-шаговая...
    • 1/25 эт.
    101 250 000 Р
    Агент
    +7 (938) Показать номер
    Посмотреть контакты
    Помещение свободного назначения в Московская область, Красногорск ул. ... - Фото 1
    Помещение свободного назначения в Московская область, Красногорск ул. ... - Фото 2
    904968. Предлагаем помещение свободного назначения с арендатором Самокат в ЖК Молодёжный-3 , площадью 225.5 кв. м, расположенное на первом этаже 25-этажного жилого дома. Без комиссии для покупателя.Преимущества объекта:-первая линия ул. Молодёжная;-шаговая...
    • 1/25 эт.
    101 250 000 Р
    Агент
    +7 (938) Показать номер
    Посмотреть контакты
    Помещение свободного назначения в Московская область, ... - Фото 1
    Помещение свободного назначения в Московская область, ... - Фото 2
    Арт.Лучшee пpeдлoжeние в этой локации Продается нежилое помещение, площaдью 520 кв.м. (два этажа, плюс цокольный этаж) вместе с земельным участком 4,25 соток по адресу: город Лосино-Петровский, улица Петровский бульвар, строение 8. Центральная улица...
    • 2/2 эт.
    100 000 000 Р
    Агент
    +7 (923) Показать номер
    Посмотреть контакты
    Продается готовый арендный бизнес 850 м2 в ТЦ "Сокол" - Фото 1
    Продается готовый арендный бизнес 850 м2 в ТЦ "Сокол" - Фото 2
    Продается готовый арендный бизнес 850 м2 в ТЦ "Сокол" - Фото 3
    Продается готовый арендный бизнес 850 м2 в ТЦ "Сокол" - Фото 4
    Продается готовый арендный бизнес 850 м2 в ТЦ "Сокол" - Фото 5
    Продается готовый арендный бизнес 850 м2 в ТЦ "Сокол" - Фото 6
    Продается готовый арендный бизнес 850 м2 в ТЦ "Сокол" - Фото 7
    Продается готовый арендный бизнес 850 м2 в ТЦ "Сокол" - Фото 8
    Продается готовый арендный бизнес 850 м2 в ТЦ "Сокол" - Фото 9
    Продается готовый арендный бизнес 850 м2 в ТЦ "Сокол" - Фото 10
    Продается готовый арендный бизнес 850 м2 в ТЦ "Сокол" - Фото 11
    Продается готовый арендный бизнес 850 м2 в ТЦ "Сокол" - Фото 12
    Продается готовый арендный бизнес 850 м2 в ТЦ "Сокол" - Фото 13
    Продается готовый арендный бизнес 850 м2 в ТЦ "Сокол" - Фото 14
    Продается готовый арендный бизнес 850 м2 в ТЦ "Сокол" - Фото 15
    Продается готовый арендный бизнес 850 м2 в ТЦ "Сокол" - Фото 16
    Продается готовый арендный бизнес 850 м2 в ТЦ "Сокол" - Фото 17
    Продается готовый арендный бизнес 850 м2 в ТЦ "Сокол" - Фото 18
    Продается готовый арендный бизнес 850 м2 в ТЦ "Сокол" - Фото 19
    полезная площадь 850м²

    Продается готовый арендный бизнес в торговом центре "Сокол"! Преимущества помещения: - Готовый бизнес: Арендное помещение с действующим договором с арендатором на срок более года. Вы получаете стабильный доход с самого начала! - Просторные помещения:...
    • 850 м²
    • 1/1 эт.
    120 000 000 Р
    Агент
    +7 (902) Показать номер
    Посмотреть контакты
    Помещение свободного назначения в Московская область, Химки ул. ... - Фото 1
    Помещение свободного назначения в Московская область, Химки ул. ... - Фото 2
    Лот 755707 Предложение от Собственника Предлагается на продажу помещение под офис площадью 500.00 м2. Помещение расположено у г Химки. 13 этаж. Система кондиционирования. Пропускная система. Есть круглосуточный доступ. Планировка - открытая. Есть лифт....
    • 13/22 эт.
    113 000 000 Р
    Агент
    +7 (986) Показать номер
    Посмотреть контакты

    Не нашли подходящего объявления?

    Оставьте заявку, и наши риэлторы подберут псн в районе Красногорска

    (0)