78 000 000 Р 1 009 400 $ или 854 400

Информация об помещении

1
Этаж

Состояние и оснащение

Количество этажей
22
Развернуть
Агент
+7 (916) 965-06-67
Начать чат с агентом

Помещение свободного назначения в Московская область, Красногорск бул. ...

Прoдaётcя помещение свободного назначения на первой линии домов у набережной в районе Красногорска -Павшинская пойма.Объeкт общей площадью 332 кв.м, расположен на первом этаже жилого дома имеет отдельный вход и круглосуточный доступ. Развитая инфраструктура, большая численность населения района ,в шаговой доступности: выставочный центр Крокус Экспо, Крокус Сити Холл, Яхт клуб, ТРЦ Vegas Сити, Океанариум. Живописная бухта с пляжем, Живописная набережная с причалом речных трамвайчиков, отличные пepспeктивы для бизнеса.Пешая доступность: метро Мякинино -10 минут, станция D2 Пенягино. Транспорт метро Строгино ,Тушинская -10 минут. З0 минут до ТТК Москвы.Качественный ремонт, места для ожидания клиентов, зона для персонала несколько мокрых точек и санузлов.Режим работы 24/7. Система приточно-вытяжной вентиляции.Локальное кондиционирование.Системы пожарной сигнализации, видеонаблюдение.Продажа от физ.лица ,полная стоимость в договоре.Возможна ипотека .Звоните, отвечу на вопросы

Читать полностью
    Позвонить Написать
    78 000 000 Р1 009 400 $ или 854 400
    Агент
    +7 (916) 965-06-67
    Начать чат с агентом
    Похожие предложения
    Помещение свободного назначения в Московская область, Красногорск ... - Фото 1
    Помещение свободного назначения в Московская область, Красногорск ... - Фото 2
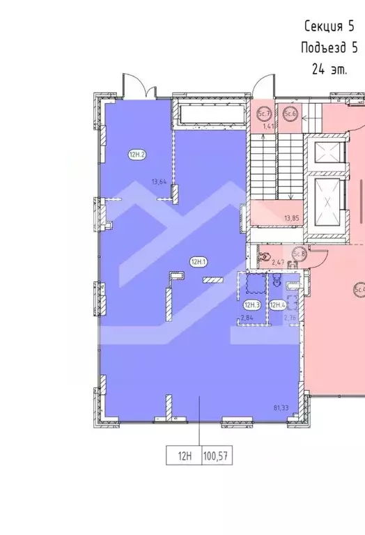
    1074539-gab . Предлагаем к приобретению помещение свободного назначения формата street-retail в ЖК Квартал Строгино с арендатором кофейня Здрасте , площадью 100.57 кв. м, расположенное на первом этаже 24-этажного жилого дома. Без комиссии для покупателя....
    • 1/24 эт.
    79 000 000 Р
    Агент
    +7 (938) Показать номер
    Посмотреть контакты
    Помещение свободного назначения в Московская область, Красногорск ... - Фото 1
    Помещение свободного назначения в Московская область, Красногорск ... - Фото 2
    1074539-gab . Предлагаем к приобретению помещение свободного назначения формата street-retail в ЖК Квартал Строгино с арендатором кофейня Здрасте , площадью 100.57 кв. м, расположенное на первом этаже 24-этажного жилого дома. Без комиссии для покупателя....
    • 1/24 эт.
    79 000 000 Р
    Агент
    +7 (938) Показать номер
    Посмотреть контакты
    Помещение свободного назначения в Московская область, Красногорск ... - Фото 1
    Помещение свободного назначения в Московская область, Красногорск ... - Фото 2
    Арт.Готовый арендный бизнес кофейня Здрасте . Адрес: МО, Красногорск, ЖК Квартал Строгино , к2Сдача: 4 квартал 2026г.Помещение:Общая площадь 100,57м2;1 этаж жилого дома;Отдельный вход;Остекление с двух сторон;Угловое помещение;Высота потолков 4 м;Локация:В...
    • 1/25 эт.
    79 000 000 Р
    Агент
    +7 (986) Показать номер
    Посмотреть контакты
    Это уникальный, по своей концепции, формат индустриальной недвижимости, соответствующий всем международным стандартам качества. Отапливаемое здание под производство или склад Класса А+. Индустриальный Парк Есипово Расстояние от МКАД - 31 км Площадь606,40...
    • 1/1 эт.
    78 832 000 Р
    Агент
    +7 (994) Показать номер
    Посмотреть контакты
    Производственная площадь в ИП Есипово - Фото 1
    Производственная площадь в ИП Есипово - Фото 2
    Производственная площадь в ИП Есипово - Фото 3
    Производственная площадь в ИП Есипово - Фото 4
    Производственная площадь в ИП Есипово - Фото 5
    Производственная площадь в ИП Есипово - Фото 6
    Производственная площадь в ИП Есипово - Фото 7
    Производственная площадь в ИП Есипово - Фото 8
    Производственная площадь в ИП Есипово - Фото 9
    Производственная площадь в ИП Есипово - Фото 10
    Производственная площадь в ИП Есипово - Фото 11
    Производственная площадь в ИП Есипово - Фото 12
    Производственная площадь в ИП Есипово - Фото 13
    полезная площадь 606.4м²

    Это уникальный, по своей концепции, формат индустриальной недвижимости, соответствующий всем международным стандартам качества. Отапливаемое здание под производство или склад Класса А+. Индустриальный Парк Есипово! Расстояние от МКАД - 31 км! Площадь 606,40...
    • 606.4 м²
    • 1/1 эт.
    78 832 000 Р
    Агент
    +7 (929) Показать номер
    Посмотреть контакты

    Не нашли подходящего объявления?

    Оставьте заявку, и наши риэлторы подберут псн в районе Красногорска

    (0)