12 900 000 Р 152 100 $ или 133 100

Информация о квартире

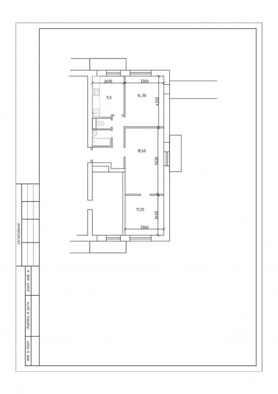
46 м2
Площадь
9 м2
Кухня
1
Комната
19
Этаж
25
Этажность

Дополнительная информация

Тип дома
монолит
Развернуть
Агент
+7 (923) 077-30-62
Начать чат с агентом

1-к кв. Московская область, Красногорск Ильинское ш., 14 (46.0 м)

Номер в базе:. Предлагаю Вашему вниманию просторную евро-двухкомнатную квартиру с продуманной планировкой в г.Красногорск В квартире: кухня 9,82 кв.м, просторная гостиная 18,17кв.м, спальня 14 кв. м, санузел 4,26 кв.м, лоджия 2,3 кв.м. Квартира оснащена всем необходимым для комфортной жизни. Все помещения оборудованы качественной мебелью и техникой. В квартире есть: стиральная машина, холодильник, электрическая плита, вытяжка, духовой шкаф, посудомоечная машина. Проведен теплый пол в санузле.Техническое состояние квартиры отличное: качественная отделка, современные инженерные коммуникации. При продаже остается вся мебель и техника После ремонта в квартире никто не жил.В доме: консьерж, охрана, диспетчерская. На первом этаже колясочная.Есть подземный паркинг, возможно арендовать место.Территория благоустроена, двор закрыт шлагбаумом, ведется видеонаблюдение — это обеспечивает безопасность для детей и комфорт для взрослых. В доме хорошие доброжелательные соседи Район обладает развитой транспортной доступностью: в 5 минутах ходьбы остановки автобусов и недалеко станция МЦД.Рядом с домом находится школа, два детских сада, различные магазины и кафе.Документы готовы к сделке. Полная стоимость в договоре.Подходит под ипотеку. Звоните Код пользователя: 186937

Читать полностью

    Для того, чтобы купить однокомнатную квартиру по адресу: Красногорск, Ильинское ш., 14, позвоните по телефону +7 (923) 077-30-62. Торопитесь! Объявление №30094039621 о продаже однокомнатной квартиры опубликовано 11 марта 2026.

    Позвонить Написать
    12 900 000 Р152 100 $ или 133 100
    Агент
    +7 (923) 077-30-62
    Начать чат с агентом
    Похожие предложения
    Продается 2-комнатная квартира - Фото 1
    Продается 2-комнатная квартира - Фото 2
    2-комнатная квартира, общая площадь 50м², жилая 30м², кухня 12м²

    Продаются 2-комнатные апартаменты в ЖК Спутник общей площадью 50 кв. м. Апартаменты обустроены всей необходимой мебелью: оборудованная гардеробная, шкаф-купе, кухонный гарнитур с встроенной техникой : холодильник, стиральная машина с сушкой, индукционная...
    • 50 м²
    • 2-ком
    • 18/34 эт.
    13 500 000 Р
    Агент
    +7 (936) Показать номер
    Посмотреть контакты
    Продается 1-комнатная квартира - Фото 1
    Продается 1-комнатная квартира - Фото 2
    1-комнатная квартира, общая площадь 43м², жилая 28м², кухня 9м²

    Арт.Предлагается к продаже просторная квартира в комфортном монолитном доме ЖК Спасский Мост . Всего в 10 минутах ходьбы от станции метро Мякинино и 15 минутах от станции МЦД Пенягино . В квартире выполнен стильный ремонт. Пол в прихожей, кухне и...
    • 43 м²
    • 1-ком
    • 14/30 эт.
    13 300 000 Р
    Агент
    +7 (499) Показать номер
    Посмотреть контакты
    Продается 2-комнатная квартира - Фото 1
    Продается 2-комнатная квартира - Фото 2
    2-комнатная квартира, общая площадь 60м², жилая 31м², кухня 14м²

    Продается двухкомнатная квартира общей площадью 60 кв м, просторная кухня-гостиная и две изолированные комнаты (спальня и детская). В квартире сделан ремонт, дополнительно разведена электрика и заменена сантехника. Квартира тихая, теплая, уютная, с комфортной...
    • 60 м²
    • 2-ком
    • 16/31 эт.
    13 500 000 Р
    Агент
    +7 (901) Показать номер
    Посмотреть контакты
    Продается 3-комнатная квартира - Фото 1
    Продается 3-комнатная квартира - Фото 2
    3-комнатная квартира, общая площадь 63м², жилая 44м², кухня 9м²

    Просторная трех комнатная квартира в экологически чистом районе, квартира чистая, можно заехать и жить, а в дальнейшем делать ремонт, светлая, теплая. Большая кухня с выходом на лоджию. Из средней комнаты выход на 2-ой балкон. Санузл совмещенный. Дом...
    • 63 м²
    • 3-ком
    • 3/12 эт.
    14 000 000 Р
    Агент
    +7 (926) Показать номер
    Посмотреть контакты
    Продается 3-комнатная квартира - Фото 1
    Продается 3-комнатная квартира - Фото 2
    3-комнатная квартира, общая площадь 63м², жилая 44м², кухня 9м²

    Просторная трех комнатная квартира в экологически чистом районе, квартира чистая, можно заехать и жить, а в дальнейшем делать ремонт, светлая, теплая. Большая кухня с выходом на лоджию. Из средней комнаты выход на 2-ой балкон. Санузл совмещенный. Дом...
    • 63 м²
    • 3-ком
    • 3/12 эт.
    13 500 000 Р
    Агент
    +7 (926) Показать номер
    Посмотреть контакты

    Не нашли подходящего объявления?

    Оставьте заявку, и наши риэлторы подберут квартиру в районе Красногорска

    (0)