Реализация объекта недвижимости приостановлена

Информация о квартире

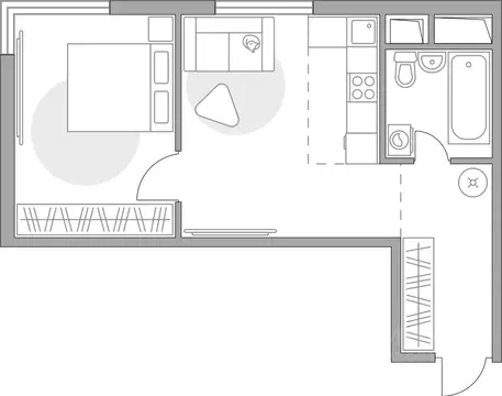
52.0 м2
Площадь
3
Комнаты
12
Этаж
14
Этажность

Дополнительная информация

Тип дома
монолит
Развернуть

3-к кв. Московская область, Красногорск Опалиха мкр, ул. Береговая, 1 ...

Продаётся 3-комнатная квартира в строящемся доме (Корпус 1.1), срок сдачи: IV-кв. 2026, общей площадью 52.61 кв.м., на 12 этаже. ЖК Аникеевский - жилой экокомплекс от ГК Гранель в г.о. Красногорск, всего в 15 минутах езды от МКАД, между Новорижским и Волоколамским шоссе. Малоэтажный квартал расположится вблизи деревни Николо-Урюпино, на берегу реки, в окружении реликтового хвойного леса. Это великолепное место для семей с детьми. Благоприятная экология, свежий воздух, наполненный ароматом сосен, ухоженная зеленая территория, благоустроенные прогулочные и игровые зоны, развитая социальная и коммерческая инфраструктура. На расстоянии 2 км от жилого комплекса находится станция МЦД-2 Аникеевка . Современные поезда курсируют каждые 5 минут, и за 15-20 минут на них можно с комфортом доехать до станций метро Волоколамская и Тушинская . В перспективе на Новорижском шоссе откроются станции метро Рублево-Архангельской ветки, и добираться до жилого комплекса будет еще удобнее.

Читать полностью

    Реализация объекта недвижимости приостановлена

    Не нашли подходящего объявления?

    Оставьте заявку, и наши риэлторы подберут квартиру в новостройке в районе Красногорска

    (0)