110 000 000 Р 1 296 600 $ или 1 135 000

Информация об помещении

1
Этаж

Состояние и оснащение

Количество этажей
18
Развернуть
Агент
+7 (938) 656-74-88
Начать чат с агентом

Помещение свободного назначения в Московская область, Люберцы ...

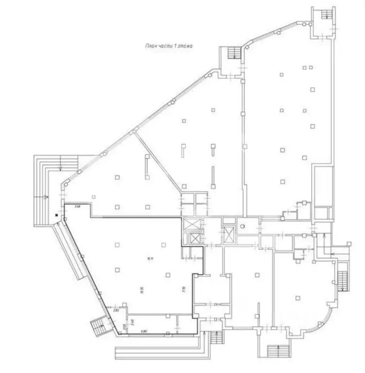
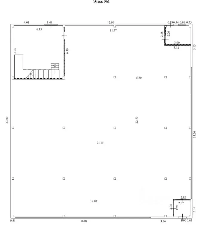
905402. Предлагаем помещение свободного назначения с якорным арендатором Дикси, площадью 450 кв. м., расположенное на первом этаже жилого дома в ЖК Красково-Олимпийский , г. Люберцы. Без комиссии для покупателя.Преимущества объекта:-комплекс состоит из 12-этажного жилого корпуса;-пешая доступность от станции МЦД-3 Красково (14 минут пешком);-объект отлично просматривается, находится в легком доступе для клиентов;-сложившееся торговое окружение;-надежный сетевой арендатор;-витринное остекление;-место для вывески;-зона разгрузки/погрузки;-рядом наземная парковка;-напротив помещения остановки общественного транспорта;-есть алкогольная лицензия.Технические параметры объекта:-6 отдельных входных групп;-электрическая мощность: 150 кВт;-высота потолков: от 3 до 3,5 м.Информация об арендаторе:-арендатор: супермаркет Дикси ;-прибыль:/мес.;-окупаемость: 9,2 лет;-доходность: 11 .Свяжитесь с нами для получения дополнительной информации

Читать полностью
    Позвонить Написать
    110 000 000 Р1 296 600 $ или 1 135 000
    Агент
    +7 (938) 656-74-88
    Начать чат с агентом
    Похожие предложения
    Помещение свободного назначения в Московская область, Люберцы ... - Фото 1
    Помещение свободного назначения в Московская область, Люберцы ... - Фото 2
    905402. Предлагаем помещение свободного назначения с якорным арендатором Дикси, площадью 450 кв. м., расположенное на первом этаже жилого дома в ЖК Красково-Олимпийский , г. Люберцы. Без комиссии для покупателя.Преимущества объекта:-комплекс состоит...
    • 1/18 эт.
    110 000 000 Р
    Агент
    +7 (938) Показать номер
    Посмотреть контакты
    Помещение свободного назначения в Московская область, Люберцы ул. ... - Фото 1
    Помещение свободного назначения в Московская область, Люберцы ул. ... - Фото 2
    944463. Предлагаем производственно-складские помещения общей площадью 1396.2 кв. м. на ул. Митрофанова. 5 этаж капитального ОСЗ и 1-о этажное складское здание.Преимущества: Объект расположен в густонаселенном районе одного из крупнейших городов московской...
    • 5/6 эт.
    102 646 213 Р
    Агент
    +7 (938) Показать номер
    Посмотреть контакты
    Помещение свободного назначения в Московская область, Люберцы ... - Фото 1
    Помещение свободного назначения в Московская область, Люберцы ... - Фото 2
    Компания УСПЕХ предлагает Вашему вниманию коммерческое здание, расположенное по адресу: Московская область, г.о. Люберцы, пгт. Томилино, ул Пушкина, д. 1/1.Общая площадь торгового центра 504 кв. м., на участке 5 соток (назначение земли - под ТЦ). Нежилое...
    • 1/2 эт.
    100 000 000 Р
    Агент
    +7 (985) Показать номер
    Посмотреть контакты
    Помещение свободного назначения в Московская область, Красногорск ул. ... - Фото 1
    Помещение свободного назначения в Московская область, Красногорск ул. ... - Фото 2
    904968. Предлагаем помещение свободного назначения с арендатором Самокат в ЖК Молодёжный-3 , площадью 225.5 кв. м, расположенное на первом этаже 25-этажного жилого дома. Без комиссии для покупателя.Преимущества объекта:-первая линия ул. Молодёжная;-шаговая...
    • 1/25 эт.
    101 250 000 Р
    Агент
    +7 (938) Показать номер
    Посмотреть контакты
    Помещение свободного назначения в Московская область, Раменский ... - Фото 1
    Помещение свободного назначения в Московская область, Раменский ... - Фото 2
    994064. Предлагаем отдельно стоящее здание с арендатором Пятёрочка , площадью 607.2 кв. м. Без комиссии для покупателя.Преимущества объекта:-первая линия ул. Школьная;-6 минут на автомобиле от станции МЦД-3 Отдых ;-удобная транспортная доступность:...
    • 1/1 эт.
    100 000 000 Р
    Агент
    +7 (938) Показать номер
    Посмотреть контакты

    Не нашли подходящего объявления?

    Оставьте заявку, и наши риэлторы подберут псн в районе Красково

    (0)