45 000 000 Р 544 700 $ или 464 600

Информация об помещении

1
Этаж

Состояние и оснащение

Количество этажей
26
Развернуть
Агент
Риелтор
+7 (915) 266-44-72
Начать чат с агентом

Торговая площадь в Московская область, Котельники Белая Дача мкр, ...

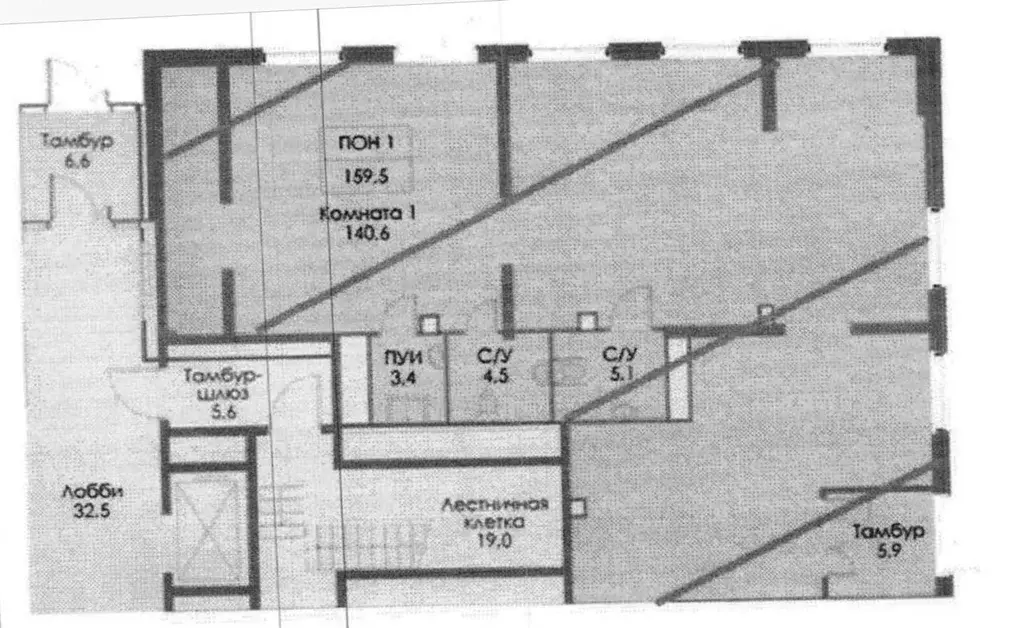
Продается нежилое помещение в жилом квартале Кузьминский лес, который находится в Московской области, в городе Котельники. Отсюда за 18 минут можно дойти до метро Котельники, а за 5 минут — доехать на машине до Мкад. Указанное нежилое помещение размещено на 1 (первом) этаже в многоквартирном доме (в настоящий момент, номер Корпус 10).С ООО Тандер заключен долгосрочный договор аренды, с ежемесячной арендной ставкой 368 тыс. Руб., также условиями договора аренды предусмотрена односторонняя индексация не более, чем на 5 .Из преимуществ объекта следует выделить:1) строительство Мкд осуществляет один из лучших застройщиков, — ПИК — технологическая компания и крупнейший девелопер в России, которая по состоянию на август 2025 г. Входит в 20-ку самых надежных застройщиков, с учетом того, что представительство компании представлено вегионах России, и ПИК было построено 137 жилых комплексов;2) нежилое помещение находится в густонаселенном жилом массиве.3) нежилое помещение обладает двумя входными группами, двумя санузлами, удобной планировкой;4) в отношении нежилого помещения заключен долгосрочный договор аренды с надежным федеральным арендатором, — магазин Магнит;5) наличие парковочных мест, а также зоны для разгрузки;6) близкое расположение метро, остановок общественного транспорта;7) развитая придомовая территория, которая даже на текущем этапе наполнена необходимой инфраструктурой для комфортной жизни в жилом комплексе Кузьминский лес.

Читать полностью
    Позвонить Написать
    45 000 000 Р544 700 $ или 464 600
    Агент
    Риелтор
    +7 (915) 266-44-72
    Начать чат с агентом
    Похожие предложения
    Продажа торгового помещения, Огуднево, Щелковский район, Полевая ул. - Фото 1
    Продажа торгового помещения, Огуднево, Щелковский район, Полевая ул. - Фото 2
    Продажа торгового помещения, Огуднево, Щелковский район, Полевая ул. - Фото 3
    Продажа торгового помещения, Огуднево, Щелковский район, Полевая ул. - Фото 4
    Продажа торгового помещения, Огуднево, Щелковский район, Полевая ул. - Фото 5
    общая площадь 637м², реализуемая площадь 637м²

    Арт. Продается отдельно стоящее здание, общей площадью 637 кв.м. Здание арендуется крупной сетевой федеральной компанией. Здание выполнено из сэндвич-панелей (толщина утеплителя - 150 мм). Высота потолков 3 - 4,5м. Полы - плитка. Два входа с улицы. Имеются...
    • 637 м²
    • 1/1 эт.
    44 000 000 Р
    PRO
    +7 (495) Показать номер
    Агентство
    ИП Захарова
    Посмотреть контакты
    Продажа торгового помещения 57,4 м2 с сетевым арендатором по адресу: г. Дедовск, ул. Железнодорожная, д. 15.Помещение площадью 57,4 масполагается на первом этаже торгового задания, имеет отдельный вход, открытую планировку, витринные окна по фасаду. Парковка...
    • 1/11 эт.
    45 648 640 Р
    Агент
    +7 (916) Показать номер
    Посмотреть контакты
    Продажа торгового помещения 57,4 м2 с сетевым арендатором по адресу: г. Дедовск, ул. Железнодорожная, д. 15.Помещение площадью 57,4 масполагается на первом этаже торгового задания, имеет отдельный вход, открытую планировку, витринные окна по фасаду. Парковка...
    • 1/11 эт.
    45 648 640 Р
    Агент
    +7 (916) Показать номер
    Посмотреть контакты
    Торговая площадь в Московская область, Красногорск ул. Липовой Рощи, 5 ... - Фото 1
    Торговая площадь в Московская область, Красногорск ул. Липовой Рощи, 5 ... - Фото 2
    Лот 154259.Продажа помещения свободного назначения с арендатором Цветы, на первой линии ЖК Спутник площадью 53 кв.м. в сердце крупного жилого массива. Объект расположен в Одинцовском Г.О., ул. Липовой Рощи, д. 1, корп. 1. 20 минут пешком от ст. м. Строгино,...
    • 1/1 эт.
    46 000 000 Р
    Агент
    +7 (916) Показать номер
    Посмотреть контакты
    Торговое помещение 929м по адресу Московская область, Ступино, просп. Победы, 63/24 продажа цех производство свободного назначения недорого от собственника. Помещение для кулинарии, выпечки, салона, доставки в продаже в ТЦ КБО на -1 этаже и для аренды...
    • -1/4 эт.
    45 000 000 Р
    Агент
    +7 (986) Показать номер
    Посмотреть контакты

    Не нашли подходящего объявления?

    Оставьте заявку, и наши риэлторы подберут торговое помещение в районе Котельников

    (0)