20 500 000 Р 263 200 $ или 224 300

Информация об помещении

1
Этаж

Состояние и оснащение

Количество этажей
17
Развернуть
Агент
+7 (984) 321-93-22
Начать чат с агентом

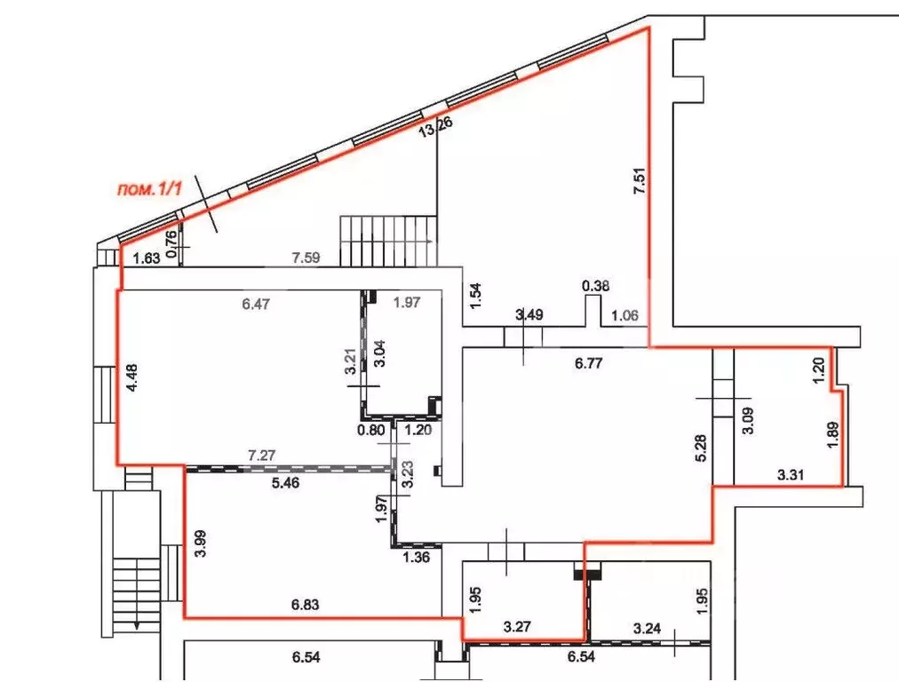
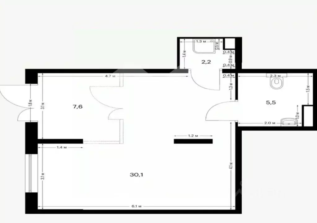
Помещение свободного назначения в Московская область, Котельники ул. ...

Id 26729. Продается помещение свободного назначения в ЖК Котельнические высотки . Первая линия домов и отдельный вход с улицы. Помещение правильной формы. Можно купить как готовый бизнес. Сейчас помещение сдается. До станции метро Котельники 15 минут пешком. Выезд на Новорязанское шоссе в 500 м. Интенсивный автомобильный и пешеходный трафик. Место для вывески есть. Оперативный показ Арт.

Читать полностью
    Позвонить Написать
    20 500 000 Р263 200 $ или 224 300
    Агент
    +7 (984) 321-93-22
    Начать чат с агентом
    Похожие предложения
    Помещение свободного назначения в Московская область, Котельники Белая ... - Фото 1
    Помещение свободного назначения в Московская область, Котельники Белая ... - Фото 2
    802927 . Предлагаем помещение свободного назначения формата Street Retail с арендатором Красное и Белое, площадью 95 кв. м., расположенное на первом этаже жилого дома в ЖК Кузьминский лес , микрорайон Белая Дача, г. Котельники. Без комиссии для покупателя....
    • 1/25 эт.
    20 900 000 Р
    Агент
    +7 (938) Показать номер
    Посмотреть контакты
    Помещение свободного назначения в Московская область, Ивантеевка ... - Фото 1
    Помещение свободного назначения в Московская область, Ивантеевка ... - Фото 2
    1068942 . Предлагаем помещение свободного назначения формата street-retail с арендатором Wildberries , площадью 167 кв. м, расположенное на первом этаже 15-этажного жилого дома. Без комиссии для покупателя.Преимущества объекта:-шаговая доступность от...
    • 1/15 эт.
    22 000 000 Р
    Агент
    +7 (938) Показать номер
    Посмотреть контакты
    Помещение свободного назначения в Московская область, Красногорск ... - Фото 1
    Помещение свободного назначения в Московская область, Красногорск ... - Фото 2
    1073759 . Предлагаем помещение свободного назначения формата street-retail с арендатором Ozon в ЖК Ильинские луга , площадью 45.4 кв. м, расположенное на первом этаже 9-этажного жилого дома. Корпус 2.13. Без комиссии для покупателя.Преимущества объекта:-ЖК...
    • 1/9 эт.
    22 000 000 Р
    Агент
    +7 (938) Показать номер
    Посмотреть контакты
    Помещение свободного назначения в Московская область, Мытищи Белый ... - Фото 1
    Помещение свободного назначения в Московская область, Мытищи Белый ... - Фото 2
    944331 . Предлагаем к приобретению помещение свободного назначения формата Street Retail с арендатором аптека Ригла в ЖК Белый Град , площадью 53.8 кв. м., расположенное на первом этаже 23-этажного жилого дома. Корпус: 11.3. Без комиссии для покупателя....
    • 1/23 эт.
    20 000 000 Р
    Агент
    +7 (938) Показать номер
    Посмотреть контакты
    Помещение свободного назначения в Московская область, Звенигород ... - Фото 1
    Помещение свободного назначения в Московская область, Звенигород ... - Фото 2
    946694 . Предлагаем помещение свободного назначения формата street-retail с арендатором Горздрав в ЖК Восточный , площадью 69.7 кв. м, расположенное на первом этаже 17-этажного жилого дома. Без комиссии для покупателя.Преимущества объекта:-ЖК состоит...
    • 1/17 эт.
    21 900 000 Р
    Агент
    +7 (938) Показать номер
    Посмотреть контакты

    Не нашли подходящего объявления?

    Оставьте заявку, и наши риэлторы подберут псн в районе Котельников

    (0)