Россия, Подмосковье, Котельники, Дюна жилой комплекс
13 130 000 Р 167 800 $ или 142 600

Информация о помещении и здании

27
Этаж
27
Этажность
Развернуть
Агент
+7 (967) 845-17-23
Начать чат с агентом

Офис в Московская область, Котельники Дюна жилой комплекс (40 м)

РАССРОЧКА ПЛАТЕЖА НА 24 МЕСЯЦА Бизнес-Центр класса А ДЮНА-СИТИ , Новорязанское шоссе вл.6.- Офисы от 20 до 200 кв.м.- Инвестиции от .- 10 минут от метро-27 этажейБизнес-центр ДЮНА-СИТИ это технологичные и функциональные офисные пространства для развития Вашего бизнеса и инвестиций.- это сочетание инновационных технологий, экологичности и эстетики минималистичного дизайна. За четкими геометрическими линиями элегантного фасада скрывается функциональность офисных пространств.На первых этажах предусмотрены сервисы, которые будут полезны как резидентами, так и всем посетителям бизнес-центра- Конференц-зал, Переговорные, Зоны коворкинга, Рестораны, Лаунж зоны, Гранд лобби.В здании будут точки подключения к высокоскоростному интернету, умные системы управления зданием: контроль освещения, отопления, вентиляции и кондиционирования, атакже современные системы безопасности: видеонаблюдение, контроль доступа, охрана.К бизнес-центру примыкает здание многоэтажного паркинга на 499 мест. Кроме этого есть надземная автостоянка на 16 мест и подземный паркинг на 28 автомобилей, куда можноспуститься на двух пассажирских лифтах прямо из офиса.Бизнес-центр ДЮНА-СИТИ - это уникальная возможность приобретениясобственного пространства для развития бизнеса или высоколиквидной недвижимости.Покупка офиса в ДЮНА-СИТИ - это стратегия инвестирования со стабильнымдоходом и минимальными рисками.до 5 лет Срок окупаемостиот 50 Ориентировочный рост стоимостипомещения за период строительства.от 12 Средняя доходность от сдачи помещений в арендуБизнес-центр находится в периметре жилого квартала класса бизнес-лайт ДЮНА с двумядетскими садами, школой и другими сервисами для решения всего спектра жизненных сценариев.Офисные помещения площадью от 20,3 до 197, 03 кв.м. и высотой потолков 3 метрах находятся с 3 по 27 этаж.Помещения продаются без отделки.Возможна перепланировка и объединение помещений вплоть до целого этажа.В офисном блоке предусмотрено 4 скоростных современных лифта,которые обеспечат повышенную комфортность и высокий пассажиропоток.Плановый срок сдачи IV квартал 2027 г.Рассрочка, 100 оплата, Ипотека.

Читать полностью
    Позвонить Написать
    13 130 000 Р167 800 $ или 142 600
    Агент
    +7 (967) 845-17-23
    Начать чат с агентом
    Похожие предложения
    Офис в Московская область, Котельники Дюна жилой комплекс (40 м) - Фото 1
    Офис в Московская область, Котельники Дюна жилой комплекс (40 м) - Фото 2
    27-й этаж, всего 27 этажей

    Бизнес-центр Дюна Сити —Технологичные пространства в новой бизнес-среде на юго-востоке Москвы созданы как для роста вашего бизнеса, так и для надежного вложения капитала.Доступен к покупке по выгодным условиям.Суть актива:* Лот: 39,79 м2, умное пространство...
    • 27/27 эт.
    13 130 700 Р
    Агент
    +7 (915) Показать номер
    Посмотреть контакты
    Купить офис 39.79м Московская область, Котельники, Дюна жилой комплекс ... - Фото 1
    Купить офис 39.79м Московская область, Котельники, Дюна жилой комплекс ... - Фото 2
    Купить офис 39.79м Московская область, Котельники, Дюна жилой комплекс ... - Фото 3
    Купить офис 39.79м Московская область, Котельники, Дюна жилой комплекс ... - Фото 4
    Купить офис 39.79м Московская область, Котельники, Дюна жилой комплекс ... - Фото 5
    Купить офис 39.79м Московская область, Котельники, Дюна жилой комплекс ... - Фото 6
    реализуемая площадь 39.8м², 27-й этаж, всего 27 этажей, коридорно-кабинетная планировка, помещение готово под чистовую отделку и планировку

    РАССРОЧКА ПЛАТЕЖА НА 24 МЕСЯЦА! Бизнес-Центр класса А "ДЮНА-СИТИ", Новорязанское шоссе вл. 6. - Офисы от 20 до 200 кв.м. - Инвестиции от . - 10 минут от метро -27 этажей Бизнес-центр ДЮНА-СИТИ это технологичные и функциональные офисные пространства...
    • 39.8 м²
    • A
    • 27/27 эт.
    • 1 пом.
    13 130 000 Р
    PRO
    +7 (919) Показать номер
    Посмотреть контакты
    Офис в Московская область, Люберцы Городок Б мкр, ул. 3-е Почтовое ... - Фото 1
    Офис в Московская область, Люберцы Городок Б мкр, ул. 3-е Почтовое ... - Фото 2
    25-й этаж, всего 25 этажей

    Код объекта: 1945927.Уникальное предложение для вашего бизнеса: продаём офис на 25-м этаже в Люберцах, улица 3-е Почтовое Отделение, 65. Это идеальный выбор для компаний, стремящихся к успеху и высокому статусу.Офис площадью 60 кв. м с евроремонтом и...
    • 25/25 эт.
    13 750 000 Р
    Агент
    +7 (933) Показать номер
    Посмотреть контакты
    Офис в Московская область, Химки ул. Энгельса, 27 (68 м) - Фото 1
    Офис в Московская область, Химки ул. Энгельса, 27 (68 м) - Фото 2
    2-й этаж, всего 16 этажей

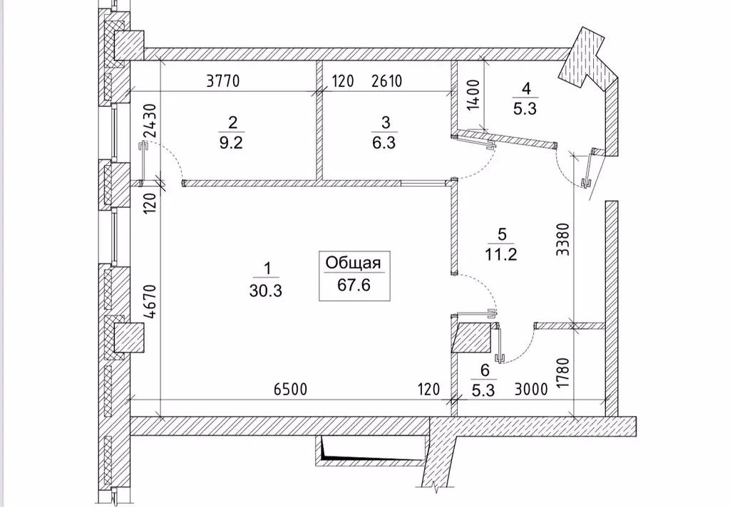
    Продаю офис 67,6 кв.м на 2 этаже офисной пристройки жилого дома бизнес-класса по адресу: Московская область, город Химки, улицаЭнгельса, дом 27.Кабинетная планировка: холл, зал, 2 кабинета, кухня и подсобное помещение (серверная). Выполнен качественный...
    • 2/16 эт.
    13 500 000 Р
    Агент
    +7 (919) Показать номер
    Посмотреть контакты
    Продается офис в Люберцах 132 кв.м. - Фото 1
    Продается офис в Люберцах 132 кв.м. - Фото 2
    Продается офис в Люберцах 132 кв.м. - Фото 3
    Продается офис в Люберцах 132 кв.м. - Фото 4
    Продается офис в Люберцах 132 кв.м. - Фото 5
    Продается офис в Люберцах 132 кв.м. - Фото 6
    Продается офис в Люберцах 132 кв.м. - Фото 7
    Продается офис в Люберцах 132 кв.м. - Фото 8
    Продается офис в Люберцах 132 кв.м. - Фото 9
    Продается офис в Люберцах 132 кв.м. - Фото 10
    Продается офис в Люберцах 132 кв.м. - Фото 11
    Продается офис в Люберцах 132 кв.м. - Фото 12
    Продается офис в Люберцах 132 кв.м. - Фото 13
    Продается офис в Люберцах 132 кв.м. - Фото 14
    Продается офис в Люберцах 132 кв.м. - Фото 15
    Продается офис в Люберцах 132 кв.м. - Фото 16
    Продается офис в Люберцах 132 кв.м. - Фото 17
    Продается офис в Люберцах 132 кв.м. - Фото 18
    Продается офис в Люберцах 132 кв.м. - Фото 19
    Продается офис в Люберцах 132 кв.м. - Фото 20
    реализуемая площадь 132м², 2-й этаж, всего 3 этажа, коридорно-кабинетная планировка, стандартная офисная отделка

    Московская область, Люберцы, микрорайон Городок Б, улица 3-е Почтовое Отделение, 54А, продается помещение (офис) площадью 132 кв.м., две смежные комнаты площадью 42.5 и 47.5 кв.м.,( плюс пропорционально места общего пользования) расположенные на 2/3 этажного...
    • 132 м²
    • 2/3 эт.
    • 2 пом.
    • интернет
    13 200 000 Р
    PRO
    +7 (919) Показать номер
    Посмотреть контакты

    Не нашли подходящего объявления?

    Оставьте заявку, и наши риэлторы подберут офис в районе Котельников

    (0)