Россия, Подмосковье, Котельники, Белая Дача мкр, 11к1
15 500 000 Р 195 100 $ или 165 200

Информация о квартире

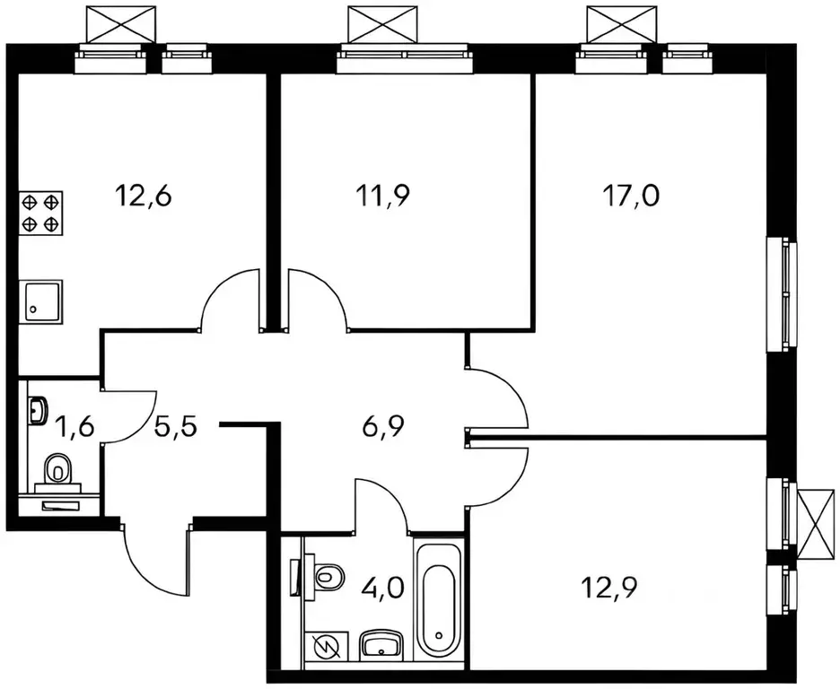
72 м2
Площадь
42 м2
Жилая
12 м2
Кухня
3
Комнаты
12
Этаж
25
Этажность

Дополнительная информация

Тип дома
панельный
Развернуть
Агент
+7 (915) 426-98-94
Начать чат с агентом

3-к кв. Московская область, Котельники Белая Дача мкр, 11к1 (72.0 м)

Продаётся просторная 3-х комнатная квартира общей площадью 71.7 квадратных метра с тремя изолированными комнатами в микрорайоне Белая Дача, дом 11 корпус 1 ( до метро Котельники 15 мин. пешком). Жилая площадь составляет 42 квадратных метра, а кухня размером 12 квадратных метров станет отличным местом для семейных ужинов и встреч с друзьями и возможностью любоваться изумительными закатами Благодаря продуманной планировке в квартире предусмотрено более одного санузла, что значительно повышает удобство проживания для большой семьи. Для жителей и их детей во дворе обустроены детская и спортивная площадки, где можно активно проводить время на свежем воздухе. Рядом находятся школа и детский сад, а также фитнес-центр, что делает местоположение особенно привлекательным для семей с детьми. В квартире остается следующая мебель и техника: встроенная кухня, варочная панель, духовой шкаф, посудомойка, мебель в санузлах, стиральная и сушильная машины, 4 кондиционера (в каждой комнате и на кухне). В квартире выполнен ремонт : стены - обои под покраску; пол- ламинат(комнаты), плитка(санузлы, кухня, прихожая); натяжной потолок. Один взрослый собственник, квартира приобреталась без материнского капитала, обременений нет, зарегистрированных нет. Приглашаем вас оценить все преимущества данной квартиры лично. Она ждет своих новых владельцев, готовых наполнить её теплом и уютом. Просмотры по договоренности

Читать полностью

    Для того, чтобы купить трехкомнатную квартиру по адресу: Котельники, Белая Дача мкр, 11к1, позвоните по телефону +7 (915) 426-98-94. Торопитесь! Объявление №30092228858 о продаже трехкомнатной квартиры опубликовано 11 декабря 2025.

    Позвонить Написать
    15 500 000 Р195 100 $ или 165 200
    Агент
    +7 (915) 426-98-94
    Начать чат с агентом
    Похожие предложения
    Продается 2-комнатная квартира - Фото 1
    Продается 2-комнатная квартира - Фото 2
    2-комнатная квартира, общая площадь 64м², жилая 34м², кухня 12м²

    Предлагается на продажу 2- ком кв в новом доме 2013 года постройки, в 5( пяти ) мин от м. Котельники , дизайнерский ремонт, кухня объединенная с залом, меблирована, с/у совмещенный. Развитая инфраструктура,школы,дет сады,магазины, поликлиника. Показы...
    • 64 м²
    • 2-ком
    • 4/23 эт.
    15 100 000 Р
    Агент
    +7 (963) Показать номер
    Посмотреть контакты
    Продается 2-комнатная квартира - Фото 1
    Продается 2-комнатная квартира - Фото 2
    2-комнатная квартира, общая площадь 65м², жилая 45м², кухня 17м²

    Код объекта: 1847194.Уникальное предложение Продается просторная двухкомнатная квартира площадью 66 кв. м на 3-м этаже 17 этажного дома по адресу: Сосновая, 1к2.Дом 2018 года постройки, окна выходят на две стороны дома. Тихий, зеленый двор.Отличная планировка...
    • 65 м²
    • 2-ком
    • 3/17 эт.
    15 300 000 Р
    Агент
    +7 (499) Показать номер
    Посмотреть контакты
    Продается 3-комнатная квартира - Фото 1
    Продается 3-комнатная квартира - Фото 2
    3-комнатная квартира, общая площадь 81м², жилая 46м², кухня 10м²

    Арт.За объект принят аванс до 15.12.2025 г. Продам просторную видовую квартиру на 10 этаже монолитного 24-х этажного дома в ЖК Белые Росы . Квартира имеет удобную планировку: три изолированные комнаты, просторная кухня, два санузла, гардеробная, застекленная...
    • 81 м²
    • 3-ком
    • 10/24 эт.
    16 000 000 Р
    Агент
    +7 (499) Показать номер
    Посмотреть контакты
    Продается 3-комнатная квартира - Фото 1
    Продается 3-комнатная квартира - Фото 2
    3-комнатная квартира, общая площадь 99м², жилая 64м², кухня 15м²

    Арт.Вашему вниманию продается просторная 3х комнатная квартира на 13 этаже 14 этажного дома (последний этаж технический). Полная стоимость в договоре, 2 взрослых собственника, никто не прописан, быстрый выход на сделку и оперативный показ. Квартира общей...
    • 99 м²
    • 3-ком
    • 13/14 эт.
    16 580 000 Р
    Агент
    +7 (499) Показать номер
    Посмотреть контакты
    Продается 2-комнатная квартира - Фото 1
    Продается 2-комнатная квартира - Фото 2
    2-комнатная квартира, общая площадь 63м², жилая 29м², кухня 12м²

    ОН 22587. Вашему вниманию предлагается прекрасная, светлая, уютная трёхкомнатная квартира, с дизайнерским ремонтом. В квартире сделана удобная для проживания перепланировка ( узаконена ). В квартире, остаются встроенные шкафы-купе, кухонный гарнитур,...
    • 63 м²
    • 2-ком
    • 10/17 эт.
    15 950 000 Р
    Агент
    +7 (495) Показать номер
    Посмотреть контакты

    Не нашли подходящего объявления?

    Оставьте заявку, и наши риэлторы подберут квартиру в районе Котельников

    (0)