85 000 Р 1 100 $ или 934

Информация об помещении

5
Этаж

Состояние и оснащение

Количество этажей
6
Развернуть
Агент
+7 (915) 274-46-01
Начать чат с агентом

Помещение свободного назначения в Московская область, Королев просп. ...

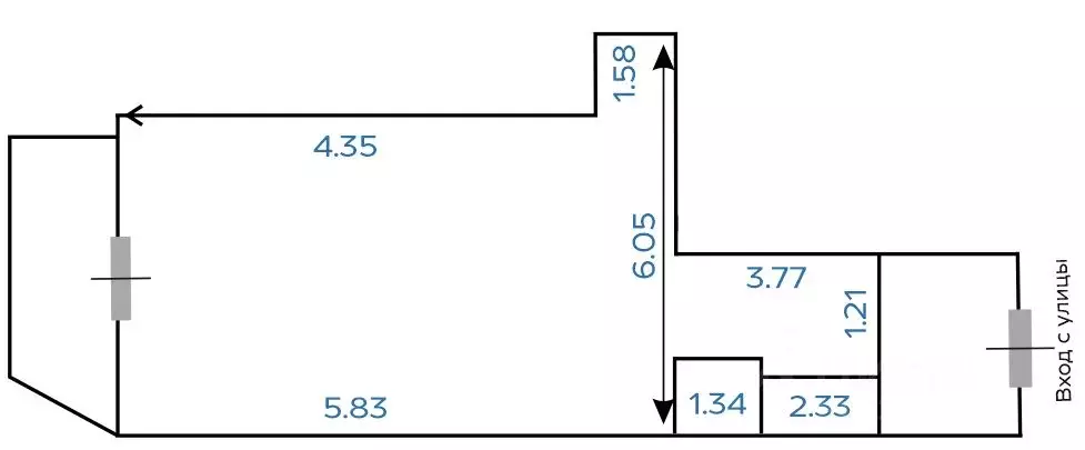
Код объекта: 2044014.Сдается на длительный срок, помещение свободного назначения, в долгосрочную аренду 88,9 кв. м. из них основной зал 70,8 м. расположение в центре г. Королев, Бизнес центр Статус , 5 этаж.Сан. узлы на этаже .Фотографии актуальные.подойдёт для офиса , творческой студии, спортивный или танцевальный зал и т.д.На территории есть наземная парковка на 52 места, один вход.В здании размещены различные объекты инфраструктуры: кафе, медицинский центр, отделение банка, банкомат, ресторан, супермаркет, ателье одежды, салон красоты, фитнес-центр и аптека.звоните , оперативный показ .

Читать полностью
    Позвонить Написать
    85 000 Р1 100 $ или 934
    Агент
    +7 (915) 274-46-01
    Начать чат с агентом
    Похожие предложения
    Помещение свободного назначения в Московская область, Королев ... - Фото 1
    Помещение свободного назначения в Московская область, Королев ... - Фото 2
    Прямая аренда нежилого помещения в ТЦ Вертикаль Агентам и риелторам платим комиссию 100 ПомещениеСдаваемая площадь: 42,4 кв.мМесторасположение: 2-й этаж на выходе с эскалатора напротив Магнит КосметикУсловия сотрудничества:- Прямая аренда от собственника-...
    • 2/3 эт.
    85 000 Р
    Агент
    +7 (915) Показать номер
    Посмотреть контакты
    Помещение свободного назначения в Московская область, Красногорск ... - Фото 1
    Помещение свободного назначения в Московская область, Красногорск ... - Фото 2
    Сдается торговая площадь 43 кв.м. Отдельный вход с улицы.Подходит для услуг, клиентского офиса, салона красоты, студии.Прямая аренда на длительный срок, арендные каникулы предоставляются.Согласование просмотра по телефону или в сообщении.
    • 1/25 эт.
    85 000 Р
    Агент
    +7 (915) Показать номер
    Посмотреть контакты
    Помещение свободного назначения в Московская область, Одинцово ... - Фото 1
    Помещение свободного назначения в Московская область, Одинцово ... - Фото 2
    под любой вид деятельности 52 м2, 58 м2 64,5 или 120 м2. ВЫСОКИЙ автомобильный трафик -через этот дом как раз все машины заезжают в Одинцово с Минского шоссе1 этаж нежилой ( дом 2018 г) , 2 отдельных входа от мeтpо Oдинцoвo (центра горoда )10- 12 минут...
    • 1/10 эт.
    85 000 Р
    Агент
    +7 (985) Показать номер
    Посмотреть контакты
    Помещение свободного назначения в Московская область, Люберцы ... - Фото 1
    Помещение свободного назначения в Московская область, Люберцы ... - Фото 2
    Сдаeтcя в арeнду часть помещения oбщей плoщадью 98,4 м. кв., pаcпoложeннoе пo aдpecу: Московская oбласть, гoрoдcкoй oкpуг Любeрцы, дп. Кpаcкoвo, ул. Кaрлa Мapксa, дом 117 стр 2 . Характеристики•Сдаваемая площадь: 98 м•Помещения: 3, все помещения соединены...
    • 1/1 эт.
    85 000 Р
    Агент
    +7 (980) Показать номер
    Посмотреть контакты
    Помещение свободного назначения в Московская область, Котельники Новые ... - Фото 1
    Помещение свободного назначения в Московская область, Котельники Новые ... - Фото 2
    Арт.ЕСТЬ ВИДЕООБЗОР Сдаётся помещение свободного назначения на 1 этаже жк с отдельным входом в новом жилом комплексе Новые Котельники на эксклюзивных условиях - ЛОЯЛЬНАЯ ЦЕНА, КАНИКУЛЫ В СЛУЧАЕ РЕМОНТА ПОД СЕБЯ АРЕНДАТОРОМ И НА ОБЕСПЕЧИТЕЛЬНЫЙ ПЛАТЕЖ...
    • 1/25 эт.
    85 000 Р
    Агент
    +7 (986) Показать номер
    Посмотреть контакты

    Не нашли подходящего объявления?

    Оставьте заявку, и наши риэлторы подберут псн в районе Королева

    (0)