674 500 Р 8 030 $ или 6 930

Информация об помещении

1
Этаж

Состояние и оснащение

Количество этажей
2
Развернуть
Агент
+7 (938) 656-74-88
Начать чат с агентом

Производственное помещение в Московская область, Королев Канальный ...

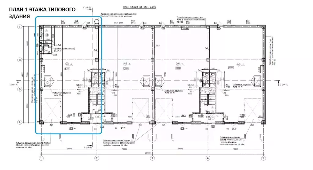
1136175. Предлагается блок общей площадью 355 кв. м. в современном проекте формата Лайт индастриал в г. Королёве.Преимущества:Расположен в центральной части города Королёва, рядом с жилыми кварталами и ТЦ Глобус.Заезд с Калининградской улицы.Развитая инфраструктура, рядом остановки общественного транспорта.Удобная логистика для любых видов транспорта, 8 км от МКАД.Огороженная охраняемая территория, пропускная система, видеонаблюдение, круглосуточный доступ.Профессиональная управляющая компания.Склад + шоурум + производство в одном пространстве, собственная наземная парковка на территории комплекса.Полы с антипылевым покрытием.Грузовой подъемник на 2 этаж.Автоматические подъемно-секционные ворота на уровне 0 (3*4,3 метра).Центральные городские системы водоснабжения и водоотведения.Отопление от собственной газовой котельной.Доступ в помещение - май 2026 года.Технические характеристики:Общая площадь блока - 355 кв. м, из которых:на 1 этаже - 177,5 кв. м, на 2 этаже - 177,5 кв. м.Рабочая высота потолка: 1 этаж - 5.6 м, 2 этаж - 5,4 метра.Нагрузка на пол: 5 т/кв. м на 1 этаже и 1 т/кв. м. на 2 этаже.Выделенная электрическая мощность: 50 ватт на 1 кв. м.Так как корректный адрес отсутствует на Яндекс.Картах, введен ближайший.

Читать полностью
    Позвонить Написать
    674 500 Р8 030 $ или 6 930
    Агент
    +7 (938) 656-74-88
    Начать чат с агентом
    Похожие предложения
    Производственное помещение в Московская область, Королев Канальный ... - Фото 1
    Производственное помещение в Московская область, Королев Канальный ... - Фото 2
    1136175. Предлагается блок общей площадью 355 кв. м. в современном проекте формата Лайт индастриал в г. Королёве.Преимущества:Расположен в центральной части города Королёва, рядом с жилыми кварталами и ТЦ Глобус.Заезд с Калининградской улицы.Развитая...
    • 1/2 эт.
    674 500 Р
    Агент
    +7 (938) Показать номер
    Посмотреть контакты
    Производственное помещение в Московская область, Солнечногорск ... - Фото 1
    Производственное помещение в Московская область, Солнечногорск ... - Фото 2
    Сдается в аренду новое готовое производственно-складское помещение вблизи ЦКАД в промышленном парке INDUSTRIAL CITY -ICPARK Есипово-4. Планировочное решение включает в себя пространство для производства, склад или логистику 440,34 кв.м, а также офисную...
    • 1/2 эт.
    676 561 Р
    Агент
    +7 (916) Показать номер
    Посмотреть контакты
    Производственное помещение в Московская область, Богородский городской ... - Фото 1
    Производственное помещение в Московская область, Богородский городской ... - Фото 2
    980771. Предлагается склад класса В общей площадью 750 кв.м. в пгт Обухово . 1, 2, этаж. Преимущества:Удобный выезд на Горьковское и Кудиновское шоссе.25 км от МКАД.Высокие потолки, прочный бетонный пол с антипылевым покрытием.Открытая планировка,...
    • 1/2 эт.
    675 000 Р
    Агент
    +7 (938) Показать номер
    Посмотреть контакты
    Производственное помещение в Московская область, Электросталь ... - Фото 1
    Производственное помещение в Московская область, Электросталь ... - Фото 2
    ЛотПредложение от Собственника Сдается отапливаемое помещение под склад, производство, пищевое производство. г.Электросталь. 1500 кв. 3 этаж. Потолки-4.8. Пол-бетон с антипылевым покрытием. Колонны 6Х6. 4 лифта по 3.5 тонны. Загрузка через пандус. Мощности...
    • 3/4 эт.
    675 000 Р
    Агент
    +7 (986) Показать номер
    Посмотреть контакты
    Производственное помещение в Московская область, Солнечногорск Красная ... - Фото 1
    Производственное помещение в Московская область, Солнечногорск Красная ... - Фото 2
    Номер ЛОТА: 2002. Новое производственное помещение 900кв.м. Высота потолка 8 метров до балки. Полы антипыль. Бытовая канализация (септик) и водоснабжение. Электричество 150-200кВт. Двое ворот одни докового типа, вторые в ноль. Огороженная охраняемая территория....
    • 1/1 эт.
    675 000 Р
    Агент
    +7 (980) Показать номер
    Посмотреть контакты

    Не нашли подходящего объявления?

    Оставьте заявку, и наши риэлторы подберут производственное помещение в районе Королева

    (0)