213 000 000 Р 2 693 900 $ или 2 316 800

Информация об помещении

1420 м2
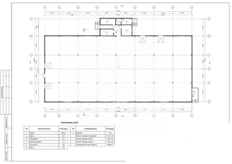
Площадь
1
Этаж

Состояние и оснащение

Общая площадь складского комплекса, м2
1420
Развернуть
Захарова Зинаида Владимировна
PRO
+7 (495) 532-41-14
Профессионал AFY.ru с 2021 г.
Начать чат с агентом

Продажа склада, Королев, Канальный проезд

Арт.
Продаются производственно-складские помещения общая площадь 5 680 кв.м.
Комплекс включает 4 здания по 1 420 м, каждое делится на 4 блока по 355 м.
Возможна гибкая конфигурация помещений при раннем бронировании от 355 до 1420 м.

Каждое здание состоит из 4 двухэтажных блоков.
Функциональные блоки от 355 м:
177 м на первом этаже: Высота потолков — 5,4 м на каждом этаже. 177 м на втором этаже.
Подъемно-секционные ворота 3 х 4,3 м.
Нагрузка на пол: 5 тн (1 этаж), 1 тн (2 этаж).
Встроенный грузовой подъемник на 2й этаж.
Витражное и панорамное остекление (возможность организации офисной части и шоу-рума).

Автономная система теплоснабжения на базе собственной газовой котельной с эффективным тепловым режимом.

Центральные инженерные коммуникации: водоснабжение и канализация с подведением непосредственно к каждому юниту.

Естественная вентиляция в общих зонах, вытяжная система в санитарно-технических помещениях.
Видеонаблюдение.
Интернет.

Система пожаротушения с размещением пожарных шкафов в каждом отдельном юните для оперативного реагирования.

8 км от МКАД, удобные заезды, пешая и транспортная доступность.

Центральная часть города Королёв, рядом с жилыми кварталами и ТЦ «Globus».

Безопасность, управление от профессиональной управляющей компании.

Cклад + шоу-рум + производство + офис в одном пространстве, собственная наземная парковка на территории комплекса. Идеально под инвестиции или собственный бизнес.

Рассрочка и лизинг.

Подробности по телефону. Оперативный показ.

Читать полностью

    Для того, чтобы купить склад площадью 1420 кв. метров по адресу: Королев, Ярославское ш., Канальный проезд, 6, позвоните по телефону +7 (495) 532-41-14. Торопитесь! Объявление №901104533 о продаже склада площадью 1420 кв. метров опубликовано Сегодня.

    Позвонить Написать
    213 000 000 Р2 693 900 $ или 2 316 800
    Захарова Зинаида Владимировна
    PRO
    +7 (495) 532-41-14
    Профессионал AFY.ru с 2021 г.
    Начать чат с агентом
    Похожие предложения
    Склад (1420 м) - Фото 1
    Склад (1420 м) - Фото 2
    Арт.Продаются производственно-складские помещения общая площадь 5 680 кв.м.Комплекс включает 4 здания по 1 420 м, каждое делится на 4 блока по 355 м. Возможна гибкая конфигурация помещений при раннем бронировании от 355 до 1420 м.Каждое здание состоит...
    • 1/1 эт.
    213 000 000 Р
    Агент
    +7 (926) Показать номер
    Посмотреть контакты
    Склад в Московская область, Щелково городской округ, Транспортная тер. ... - Фото 1
    Склад в Московская область, Щелково городской округ, Транспортная тер. ... - Фото 2
    Продаются 2 современных складских комплекса с офисным блоками в Щелково.Площадь участка 67 соток.Высота потолков 8 метров.Сетка колонн 9*3Отапливаемые помещения 1250+1052 из них 100 метров офисов (отопление газгольдер - хватает на 2 месяца зимой по 10...
    • 1/1 эт.
    200 000 000 Р
    Агент
    +7 (980) Показать номер
    Посмотреть контакты
    Продажа склада, Химки - Фото 1
    Продажа склада, Химки - Фото 2
    Продажа склада, Химки - Фото 3
    Продажа склада, Химки - Фото 4
    Продажа склада, Химки - Фото 5
    Продажа склада, Химки - Фото 6
    Продажа склада, Химки - Фото 7
    Продажа склада, Химки - Фото 8
    Продажа склада, Химки - Фото 9
    Продажа склада, Химки - Фото 10
    Продажа склада, Химки - Фото 11
    Продажа склада, Химки - Фото 12
    Продажа склада, Химки - Фото 13
    Продажа склада, Химки - Фото 14
    Продажа склада, Химки - Фото 15
    Продажа склада, Химки - Фото 16
    общая площадь 1670м², полезная площадь 1670м²

    Арт. Продается производственно-складская база (слад и АБК) на участке в 0,5Га. Комплекс базы, включает в себя: -склад 1470кв.м. -офис 200кв.м. -открытая площадка 2000 кв.м. Теплый склад площадью 1460 кв.м., подходит для хранения или небольшого производства....
    • 1 670 м²
    • 1-й эт.
    217 100 000 Р
    PRO
    +7 (495) Показать номер
    Агентство
    ИП Захарова
    Посмотреть контакты
    Продажа склада, Заболотье, Домодедово г. о., Дорожная ул. - Фото 1
    Продажа склада, Заболотье, Домодедово г. о., Дорожная ул. - Фото 2
    Продажа склада, Заболотье, Домодедово г. о., Дорожная ул. - Фото 3
    Продажа склада, Заболотье, Домодедово г. о., Дорожная ул. - Фото 4
    Продажа склада, Заболотье, Домодедово г. о., Дорожная ул. - Фото 5
    Продажа склада, Заболотье, Домодедово г. о., Дорожная ул. - Фото 6
    Продажа склада, Заболотье, Домодедово г. о., Дорожная ул. - Фото 7
    Продажа склада, Заболотье, Домодедово г. о., Дорожная ул. - Фото 8
    Продажа склада, Заболотье, Домодедово г. о., Дорожная ул. - Фото 9
    Продажа склада, Заболотье, Домодедово г. о., Дорожная ул. - Фото 10
    Продажа склада, Заболотье, Домодедово г. о., Дорожная ул. - Фото 11
    Продажа склада, Заболотье, Домодедово г. о., Дорожная ул. - Фото 12
    Продажа склада, Заболотье, Домодедово г. о., Дорожная ул. - Фото 13
    общая площадь 1440м², полезная площадь 1440м²

    Арт. Продается производственно-складское помещение общая площадь 1440 кв.м. (возможно увеличение*2) Рабочая высота 8 м. Полы антипыль. Мощность электроэнергии 30 Квт. (возможно увеличение) Шаг колон 12 х 24 Нагрузка на пол 6 т./ кв. м. Ворота,...
    • 1 440 м²
    • 1-й эт.
    211 680 000 Р
    PRO
    +7 (495) Показать номер
    Агентство
    ИП Захарова
    Посмотреть контакты
    МО, Подольск, Железнодорожная ул., 3930 м2, Производственно-складской ... - Фото 1
    МО, Подольск, Железнодорожная ул., 3930 м2, Производственно-складской ... - Фото 2
    МО, Подольск, Железнодорожная ул., 3930 м2, Производственно-складской ... - Фото 3
    МО, Подольск, Железнодорожная ул., 3930 м2, Производственно-складской ... - Фото 4
    МО, Подольск, Железнодорожная ул., 3930 м2, Производственно-складской ... - Фото 5
    МО, Подольск, Железнодорожная ул., 3930 м2, Производственно-складской ... - Фото 6
    МО, Подольск, Железнодорожная ул., 3930 м2, Производственно-складской ... - Фото 7
    МО, Подольск, Железнодорожная ул., 3930 м2, Производственно-складской ... - Фото 8
    МО, Подольск, Железнодорожная ул., 3930 м2, Производственно-складской ... - Фото 9
    МО, Подольск, Железнодорожная ул., 3930 м2, Производственно-складской ... - Фото 10
    МО, Подольск, Железнодорожная ул., 3930 м2, Производственно-складской ... - Фото 11
    МО, Подольск, Железнодорожная ул., 3930 м2, Производственно-складской ... - Фото 12
    МО, Подольск, Железнодорожная ул., 3930 м2, Производственно-складской ... - Фото 13
    МО, Подольск, Железнодорожная ул., 3930 м2, Производственно-складской ... - Фото 14
    МО, Подольск, Железнодорожная ул., 3930 м2, Производственно-складской ... - Фото 15
    МО, Подольск, Железнодорожная ул., 3930 м2, Производственно-складской ... - Фото 16
    МО, Подольск, Железнодорожная ул., 3930 м2, Производственно-складской ... - Фото 17
    МО, Подольск, Железнодорожная ул., 3930 м2, Производственно-складской ... - Фото 18
    МО, Подольск, Железнодорожная ул., 3930 м2, Производственно-складской ... - Фото 19
    МО, Подольск, Железнодорожная ул., 3930 м2, Производственно-складской ... - Фото 20
    общая площадь 3930м², полезная площадь 3930м²

    Производственно-складская комплекс 3930 масположен на участке 1,72 га в собственности. ВРИ участка: для складских целей. Комплекс состоит из: 1. холодный склад 850 м2, стены - сэндвич-панели, высота потолков 6,5 метров; 2. холодный склад 850 м2, стены...
    • 3 930 м²
    220 000 000 Р
    Агент
    +7 (926) Показать номер
    Агентство
    Телус
    Посмотреть контакты

    Не нашли подходящего объявления?

    Оставьте заявку, и наши риэлторы подберут склад в районе Королева

    (0)